Bildegalleri

Christer Sebbah ved EIE Løren ønsker velkommen til Valdresgata 25C!
Solgt
Grünerløkka
Flott 3-roms leilighet med markterrasse og hagedel - Garasje - Sentralt, samtidig stille og tilbaketrukket - VV inkl.
Prisantydning5 650 000 kr
Nøkkelinfo
- Boligtype
- Leilighet
- Eieform
- Andel
- Soverom
- 2
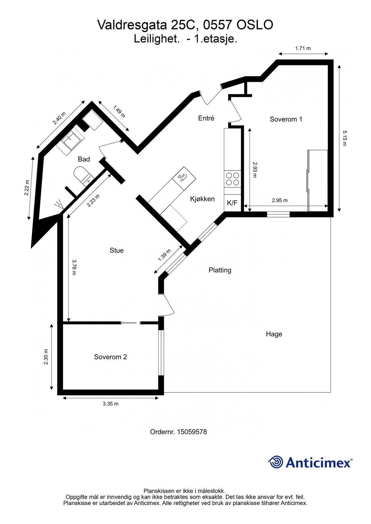
- Internt bruksareal
- 64 m² (BRA-i)
- Bruksareal
- 68 m²
- Eksternt bruksareal
- 4 m² (BRA-e)
- Balkong/Terrasse
- 17 m² (TBA)
- Etasje
- 1
- Byggeår
- 1980
- Energimerking
- F - Rød
- Rom
- 3
- Tomteareal
- 16 774 m² (eiet)
Fasiliteter
Barnevennlig
Balkong/Terrasse
Garasje/P-plass
Kabel-TV
Offentlig vann/kloakk
Turterreng
Vaktmester-/vektertjeneste
Bredbåndstilknytning
Moderne
Rolig
Om boligen
Velkommen til Valdresgata 25C!
Dette er en innbydende og sjarmerende 3-roms leilighet. Leiligheten består av entré, kjøkken, bad, to soverom og stue. Fra stuen er det utgang til boligens fantastiske uteplass. Her får du gleden av en treplatting på 17 kvm, samt en idyllisk hagedel. Her er du omkranset av frodige busker som gir en skjermet og usjenert beliggenhet. Leiligheten fremstår som en tidsriktig og pent vedlikeholdt bolig med flere gode kvaliteter.
Det medfølger en garasjeplass i felles garasjeanlegg. Av ekstern lagring medfølger en bod i samme etasje på 4 kvm.
Varmtvann og TV/internett er inkludert i felleskostnadene.
Leiligheten har en meget attraktiv beliggenhet i et populært og veldrevet borettslag. Her bor man stille og tilbaketrukket, samtid som det er nærhet til alt av servicetilbud, kollektivtilbud og andre fasiliteter som Grünerløkka har å tilby.
Denne boligen kan kjøpes med Finit Deleie. Med Finit kan du kjøpe bolig selv om du mangler egenkapital.
Velkommen!
Dette er en innbydende og sjarmerende 3-roms leilighet. Leiligheten består av entré, kjøkken, bad, to soverom og stue. Fra stuen er det utgang til boligens fantastiske uteplass. Her får du gleden av en treplatting på 17 kvm, samt en idyllisk hagedel. Her er du omkranset av frodige busker som gir en skjermet og usjenert beliggenhet. Leiligheten fremstår som en tidsriktig og pent vedlikeholdt bolig med flere gode kvaliteter.
Det medfølger en garasjeplass i felles garasjeanlegg. Av ekstern lagring medfølger en bod i samme etasje på 4 kvm.
Varmtvann og TV/internett er inkludert i felleskostnadene.
Leiligheten har en meget attraktiv beliggenhet i et populært og veldrevet borettslag. Her bor man stille og tilbaketrukket, samtid som det er nærhet til alt av servicetilbud, kollektivtilbud og andre fasiliteter som Grünerløkka har å tilby.
Denne boligen kan kjøpes med Finit Deleie. Med Finit kan du kjøpe bolig selv om du mangler egenkapital.
Velkommen!
NB: Knappen for å vise hele beskrivelsen har kun en visuell effekt.
NB: Knappen for å vise hele beskrivelsen har kun en visuell effekt.
Salgsoppgaven beskriver vesentlig og lovpålagt informasjon om eiendommen
Se komplett salgsoppgaveNyttige lenker
Nærområdet
EIE eiendomsmegling Løren
Annonseinformasjon
| FINN-kode | 368150815 |
|---|---|
| Sist endret | 02. mars 2025 13:49 |
| Referanse | 71240231 |
Annonsene kan være mangelfulle i forhold til lovpålagt opplysningsplikt. Før bindende avtale inngås oppfordres interessenter til å innhente komplett informasjon fra meglerforetaket, selger eller utleier.






































