Bildegalleri

Velkommen til Jarlsøveien 64, presentert av Aktiv Eiendomsmegling v/Kaia Hostvedt Dahle. Fotograf: Paul Thürmer.
Jarlsø
Lekker, ny leilighet med super intern beliggenhet. Skjermet uteplass. Felles spa-anlegg og gjesteleil.
Prisantydning4 890 000 kr
Nøkkelinfo
- Boligtype
- Leilighet
- Eieform
- Eier (Selveier)
- Soverom
- 1
- Internt bruksareal
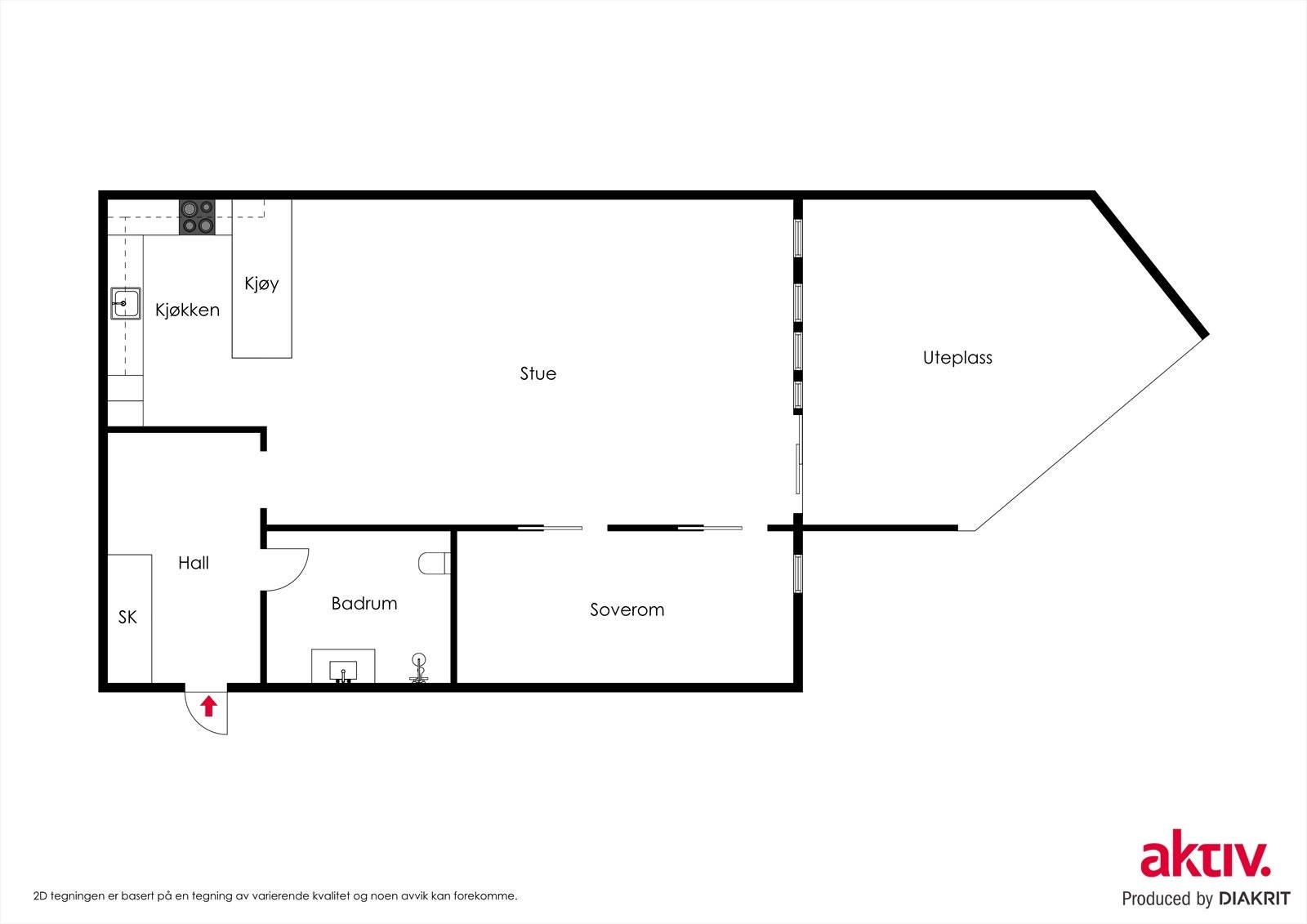
- 76 m² (BRA-i)
- Bruksareal
- 81 m²
- Eksternt bruksareal
- 5 m² (BRA-e)
- Balkong/Terrasse
- 12 m² (TBA)
- Etasje
- 1
- Byggeår
- 2024
- Energimerking
- B - Mørkegrønn
- Rom
- 2
- Tomteareal
- 4 103 m² (eiet)
Fasiliteter
Takterrasse
Balkong/Terrasse
Barnevennlig
Bredbåndstilknytning
Garasje/P-plass
Hage
Heis
Offentlig vann/kloakk
Parkett
Rolig
Sentralt
Utsikt
Bademulighet
Fiskemulighet
Turterreng
Balansert ventilasjon
Visning
Husk å melde deg på visningen innen kl 12 visningsdagen. Visninger uten påmeldte deltakere kan bli avlyst.
Kontakt megler for å avtale visning dersom oppsatt tidspunkt ikke passer. Ring Kaia Hostvedt Dahle, 90982998.
VisningspåmeldingOm boligen
Velkommen til Jarlsøveien 64, en moderne leilighet i 1. etasje med skjermet veranda som nyter godt av kveldssolen. Leiligheten tilbyr en romslig stue med åpen kjøkkenløsning og et lekkert helfliset bad med vegghengt toalett og dusjhjørne. Stor skyvedørsgarderobe i gangen gir rikelig med oppbevaringsmuligheter. Vannbåren varme og balansert ventilasjon sikrer et behagelig inneklima året rundt.
Sameiet skiller seg ut med fantastiske fellesfasiliteter:
- takterrasse med imponerende utsikt og gode solforhold,
- treningsrom og spaavdeling med badstue,
- gjesteleilighet tilgjengelig for en symbolsk sum.
Boligen inkluderer en garasjeplass, med mulighet for å kjøpe en ekstra samt en romslig sportsbod.
Dette er den ideelle boligen for deg som verdsetter kvalitet og komfort i vakre omgivelser.
Sameiet skiller seg ut med fantastiske fellesfasiliteter:
- takterrasse med imponerende utsikt og gode solforhold,
- treningsrom og spaavdeling med badstue,
- gjesteleilighet tilgjengelig for en symbolsk sum.
Boligen inkluderer en garasjeplass, med mulighet for å kjøpe en ekstra samt en romslig sportsbod.
Dette er den ideelle boligen for deg som verdsetter kvalitet og komfort i vakre omgivelser.
NB: Knappen for å vise hele beskrivelsen har kun en visuell effekt.
NB: Knappen for å vise hele beskrivelsen har kun en visuell effekt.
Salgsoppgaven beskriver vesentlig og lovpålagt informasjon om eiendommen
Se komplett salgsoppgaveNyttige lenker
Nærområdet
Aktiv Tønsberg og Re
Annonseinformasjon
| FINN-kode | 368064106 |
|---|---|
| Sist endret | 02. feb. 2026 13:06 |
| Referanse | 1312240046 |
Annonsene kan være mangelfulle i forhold til lovpålagt opplysningsplikt. Før bindende avtale inngås oppfordres interessenter til å innhente komplett informasjon fra meglerforetaket, selger eller utleier.
















































