Bildegalleri

Krogsveen Sunnmmøre v/Daglig leder/Eiendomsmegler Preben Willmann har gleden av å presentere en flott nyere og tiltalende eierleilighet beliggende i Blindheimsvegen 20. Dette bildet er digitalt stylet.
Solgt
Blindheim
Tiltalende eierleilighet med flott utsikt mot fjord og fjell| Terrasse mot vest | Garasje | Heis
Prisantydning4 990 000 kr
Pris på lån: fra 20 196 kr/mnd
Eff.rente 5,00 %. 3 493 000 o/25 år. Kostnad: 2 565 800 kr. Totalt 6 058 800 kr.
LånekalkulatorNøkkelinfo
- Boligtype
- Leilighet
- Eieform
- Eier (Selveier)
- Soverom
- 2
- Internt bruksareal
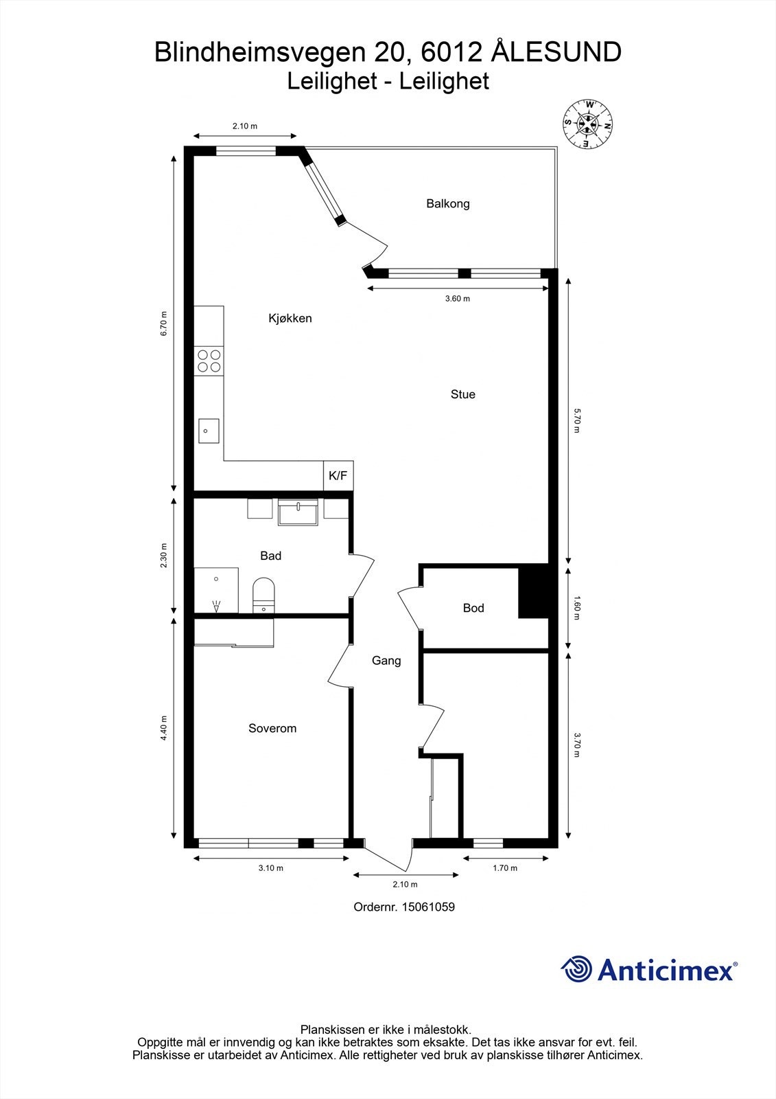
- 90 m² (BRA-i)
- Bruksareal
- 97 m²
- Eksternt bruksareal
- 7 m² (BRA-e)
- Balkong/Terrasse
- 10 m² (TBA)
- Etasje
- 3
- Byggeår
- 2018
- Energimerking
- B - Rød
- Rom
- 3
- Tomteareal
- 3 669 m² (eiet)
Fasiliteter
Balkong/Terrasse
Bredbåndstilknytning
Garasje/P-plass
Heis
Kjæledyr tillatt
Kabel-TV
Offentlig vann/kloakk
Parkett
Rolig
Sentralt
Utsikt
Turterreng
Balansert ventilasjon
Om boligen
Krogsveen Sunnmøre v/Daglig leder/Eiendomsmegler Preben Willmann har gleden av å presentere en nyere tiltalende eierleilighet
* Flott utsikt mot Borgundfjorden, Breisundet og Sukkertoppen i vest.
* Stue/kjøkken i åpen løsning med gode lysforhold
* 2 soverom
* Vannbåren varme i alle gulv med app styring og displayer
* Biloppstillingsplass og bod i kjeller
* Heis
* Kort vei til buss og butikk
* Ca. 5 min. med bil til handelssentrum på Moa
* Kort vei til flot turterreng
Velkommen til påmeldingsvisning!
* Flott utsikt mot Borgundfjorden, Breisundet og Sukkertoppen i vest.
* Stue/kjøkken i åpen løsning med gode lysforhold
* 2 soverom
* Vannbåren varme i alle gulv med app styring og displayer
* Biloppstillingsplass og bod i kjeller
* Heis
* Kort vei til buss og butikk
* Ca. 5 min. med bil til handelssentrum på Moa
* Kort vei til flot turterreng
Velkommen til påmeldingsvisning!
NB: Knappen for å vise hele beskrivelsen har kun en visuell effekt.
NB: Knappen for å vise hele beskrivelsen har kun en visuell effekt.
Salgsoppgaven beskriver vesentlig og lovpålagt informasjon om eiendommen
Se komplett salgsoppgaveNyttige lenker
Nærområdet
Krogsveen Ålesund
Velkommen til en enklere boligreise.
Annonseinformasjon
| FINN-kode | 368051514 |
|---|---|
| Sist endret | 25. aug. 2025 10:54 |
| Referanse | KR76.24162 |
Annonsene kan være mangelfulle i forhold til lovpålagt opplysningsplikt. Før bindende avtale inngås oppfordres interessenter til å innhente komplett informasjon fra meglerforetaket, selger eller utleier.
































