Bildegalleri

Eiendomsmegler 1 ved Stine Nielsen har gleden av å presentere Valgrindvegen 22. Toppleilighet med moderne standard og balkong.
Inaktiv
Lerkendal
2-roms selveierleilighet i 3.etasje - Balkong - Takterrasse og treningsrom - Moderne bygg fra 2010 - God takhøyde.
Prisantydning2 990 000 kr
Nøkkelinfo
- Boligtype
- Leilighet
- Eieform
- Eier (Selveier)
- Soverom
- 1
- Internt bruksareal
- 40 m² (BRA-i)
- Bruksareal
- 46 m²
- Eksternt bruksareal
- 6 m² (BRA-e)
- Balkong/Terrasse
- 7 m² (TBA)
- Etasje
- 3
- Byggeår
- 2010
- Energimerking
- D - Mørkegrønn
- Rom
- 2
- Tomteareal
- 469 m² (eiet)
Fasiliteter
Barnevennlig
Balkong/Terrasse
Kabel-TV
Offentlig vann/kloakk
Parkett
Sentralt
Bredbåndstilknytning
Moderne
Om boligen
Velkommen til Valgrindvegen 22!
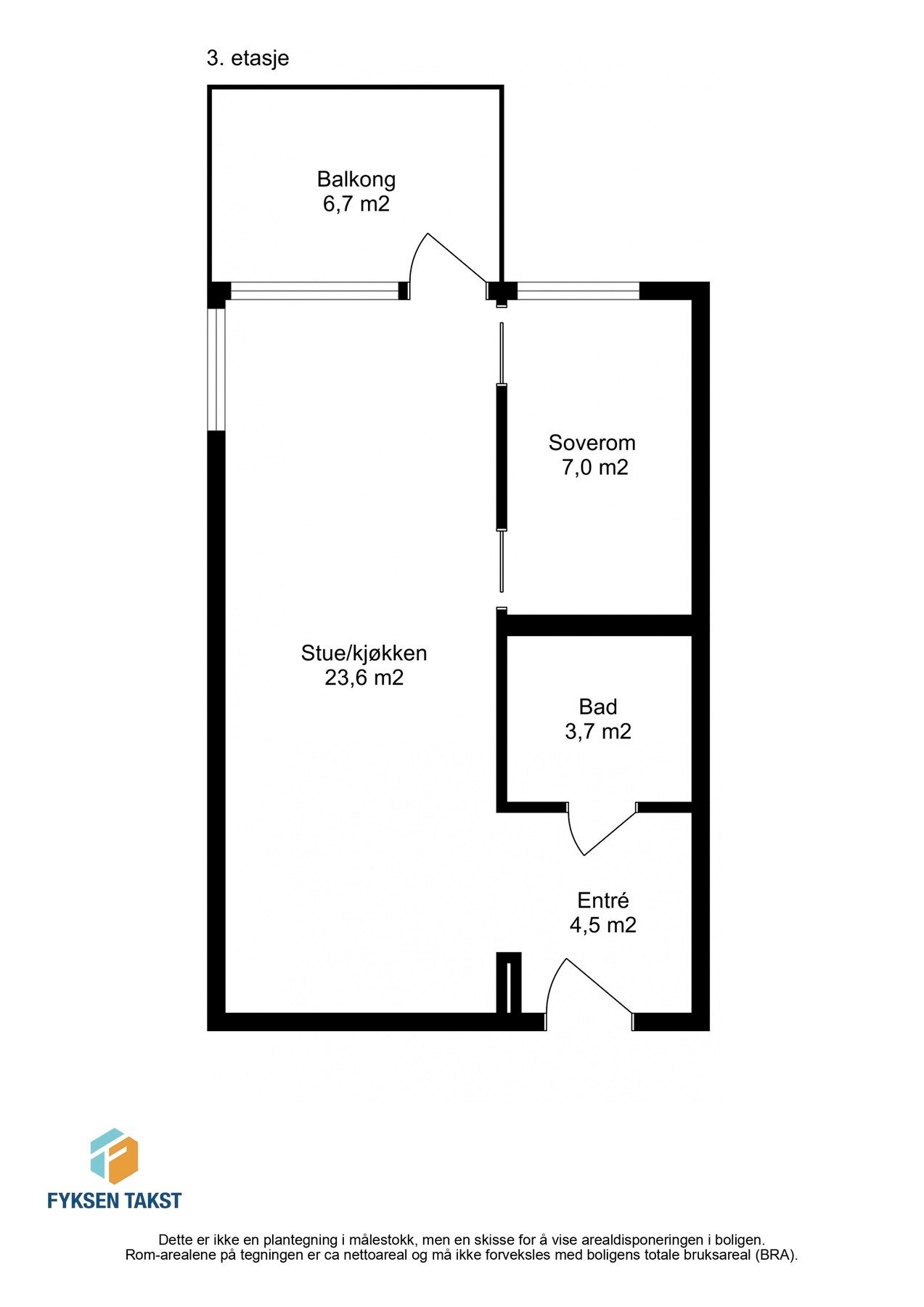
Leiligheten består av entre, soverom, bad, stue og kjøkken med utgang til balkong.
Kvaliteter ved leiligheten:
- Flislagt bad med opplegg for vaskemaskin.
- Flott kjøkken med integrerte hvitevarer.
- Fjernvarme og friskluftanlegg.
- Medfølger 2 boder.
- God takhøyde.
- Felles treningsrom og takterrasse som beboerne kan bruke.
- Utvendig felles parkeringsplass for beboerne.
- Veldrevet sameie.
- Gangavstand til Lerkendal Stadion, St. Olavs Hospital, Handelshøyskolen og NTNU Gløshaugen.
- Godt kollektivtilbud rett utenfor inngangsdøren.
Velkommen til en hyggelig visning!
Leiligheten består av entre, soverom, bad, stue og kjøkken med utgang til balkong.
Kvaliteter ved leiligheten:
- Flislagt bad med opplegg for vaskemaskin.
- Flott kjøkken med integrerte hvitevarer.
- Fjernvarme og friskluftanlegg.
- Medfølger 2 boder.
- God takhøyde.
- Felles treningsrom og takterrasse som beboerne kan bruke.
- Utvendig felles parkeringsplass for beboerne.
- Veldrevet sameie.
- Gangavstand til Lerkendal Stadion, St. Olavs Hospital, Handelshøyskolen og NTNU Gløshaugen.
- Godt kollektivtilbud rett utenfor inngangsdøren.
Velkommen til en hyggelig visning!
NB: Knappen for å vise hele beskrivelsen har kun en visuell effekt.
NB: Knappen for å vise hele beskrivelsen har kun en visuell effekt.
Salgsoppgaven beskriver vesentlig og lovpålagt informasjon om eiendommen
Se komplett salgsoppgaveNyttige lenker
Nærområdet
EiendomsMegler 1 Trondheim sentrum, Kongens gate
Vi loser deg trygt gjennom hele boligsalget
Annonseinformasjon
| FINN-kode | 367306325 |
|---|---|
| Sist endret | 22. nov. 2024 09:02 |
| Referanse | 32240160 |
Annonsene kan være mangelfulle i forhold til lovpålagt opplysningsplikt. Før bindende avtale inngås oppfordres interessenter til å innhente komplett informasjon fra meglerforetaket, selger eller utleier.


















