Bildegalleri

Kontakt Frode Bergheim Koppergård: 99 48 88 22 | f.koppergard@nordvikbolig.no
Solgt
ST. HANSHAUGEN
Meget attraktiv studioleilighet | God takhøyde, hems og store vinduer | Kjøkken fra 2018
Prisantydning3 700 000 kr
Nøkkelinfo
- Boligtype
- Leilighet
- Eieform
- Andel
- Soverom
- 0
- Internt bruksareal
- 26 m² (BRA-i)
- Bruksareal
- 26 m²
- Etasje
- 3
- Byggeår
- 1892
- Rom
- 1
- Tomteareal
- 380 m²
Fasiliteter
Bredbåndstilknytning
Kabel-TV
Sentralt
Om boligen
Ønsker du å bo sentralt, men rolig? Rimelig, men romslig? Her er et perfekt førstegangskjøp med romslig oppholdsrom midt i hjertet av Oslo.
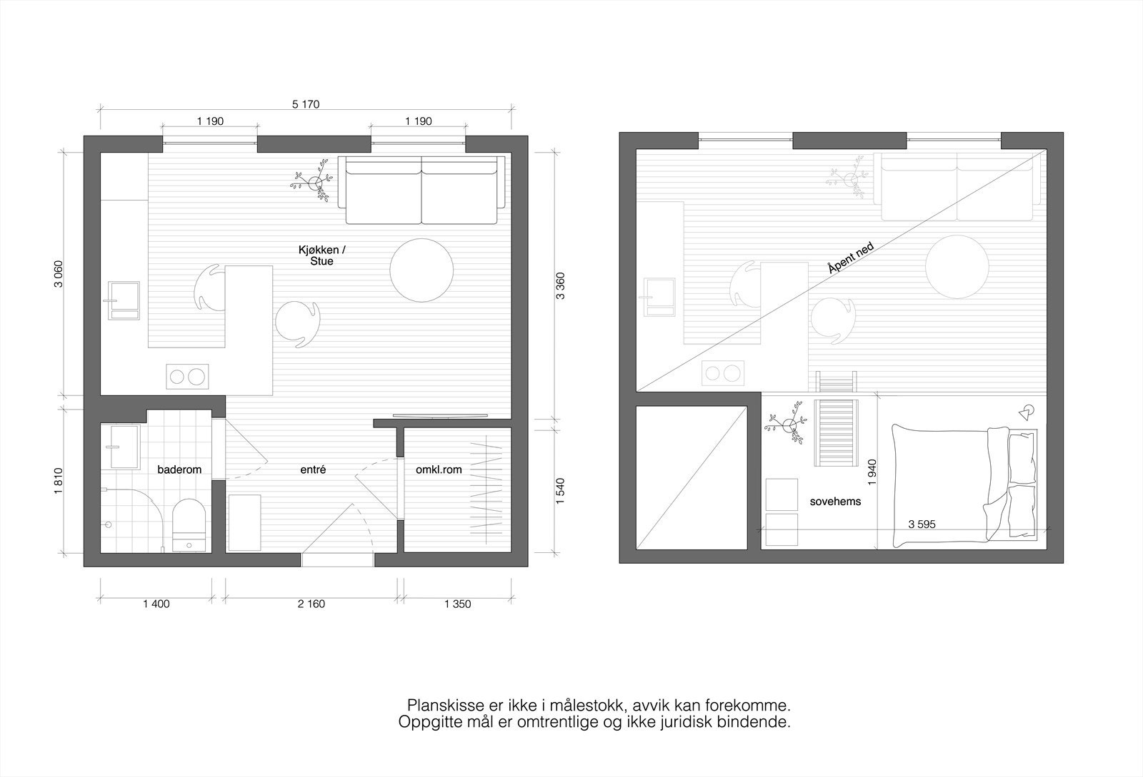
Boligen er en flott og lys studioleilighet med generøs takhøyde og store vinduer. Leiligheten har en åpen planløsning med sovehems. Det velutstyrte kjøkkenet har rikelig med både skap- og benkeplass, samt en halvøy med sittegruppe. Walk-in closet i kombinasjon med tre boder i kjeller sørger for god og praktisk oppbevaringsplass.
Nøkkelinformasjon:
- Varmtvann, internett og tv inkludert i felleskostnadene
- Strømutgifter på ca. 200-500,- pr måned.
- Takhøyde på 3,20 meter
- Kjøkken fra 2018
- Sentral beliggenhet, men stille og rolig sidegate
- Kort vei til ALT
Boligen er en flott og lys studioleilighet med generøs takhøyde og store vinduer. Leiligheten har en åpen planløsning med sovehems. Det velutstyrte kjøkkenet har rikelig med både skap- og benkeplass, samt en halvøy med sittegruppe. Walk-in closet i kombinasjon med tre boder i kjeller sørger for god og praktisk oppbevaringsplass.
Nøkkelinformasjon:
- Varmtvann, internett og tv inkludert i felleskostnadene
- Strømutgifter på ca. 200-500,- pr måned.
- Takhøyde på 3,20 meter
- Kjøkken fra 2018
- Sentral beliggenhet, men stille og rolig sidegate
- Kort vei til ALT
NB: Knappen for å vise hele beskrivelsen har kun en visuell effekt.
NB: Knappen for å vise hele beskrivelsen har kun en visuell effekt.
Salgsoppgaven beskriver vesentlig og lovpålagt informasjon om eiendommen
Se komplett salgsoppgaveNyttige lenker
Nærområdet
Nordvik Ullevål
Annonseinformasjon
| FINN-kode | 367156367 |
|---|---|
| Sist endret | 02. nov. 2024 11:09 |
| Referanse | 23-0214/24 |
Annonsene kan være mangelfulle i forhold til lovpålagt opplysningsplikt. Før bindende avtale inngås oppfordres interessenter til å innhente komplett informasjon fra meglerforetaket, selger eller utleier.
































