Bildegalleri

Svaleveien 35F formidles av Krogsveen.
Solgt
Refsnes
Delikat renovert og ombygget enderekkehus, nederst på Refsnes. Flott fjordutsikt fra 2. etasje. Solrikt dagen gjennom.
Prisantydning5 490 000 kr
Nøkkelinfo
- Boligtype
- Rekkehus
- Eieform
- Andel
- Soverom
- 2
- Internt bruksareal
- 99 m² (BRA-i)
- Bruksareal
- 103 m²
- Eksternt bruksareal
- 4 m² (BRA-e)
- Balkong/Terrasse
- 29 m² (TBA)
- Etasje
- 2
- Byggeår
- 1963
- Rom
- 3
- Tomteareal
- 27 719 m² (eiet)
Fasiliteter
Balkong/Terrasse
Barnevennlig
Bredbåndstilknytning
Hage
Kabel-TV
Offentlig vann/kloakk
Rolig
Utsikt
Om boligen
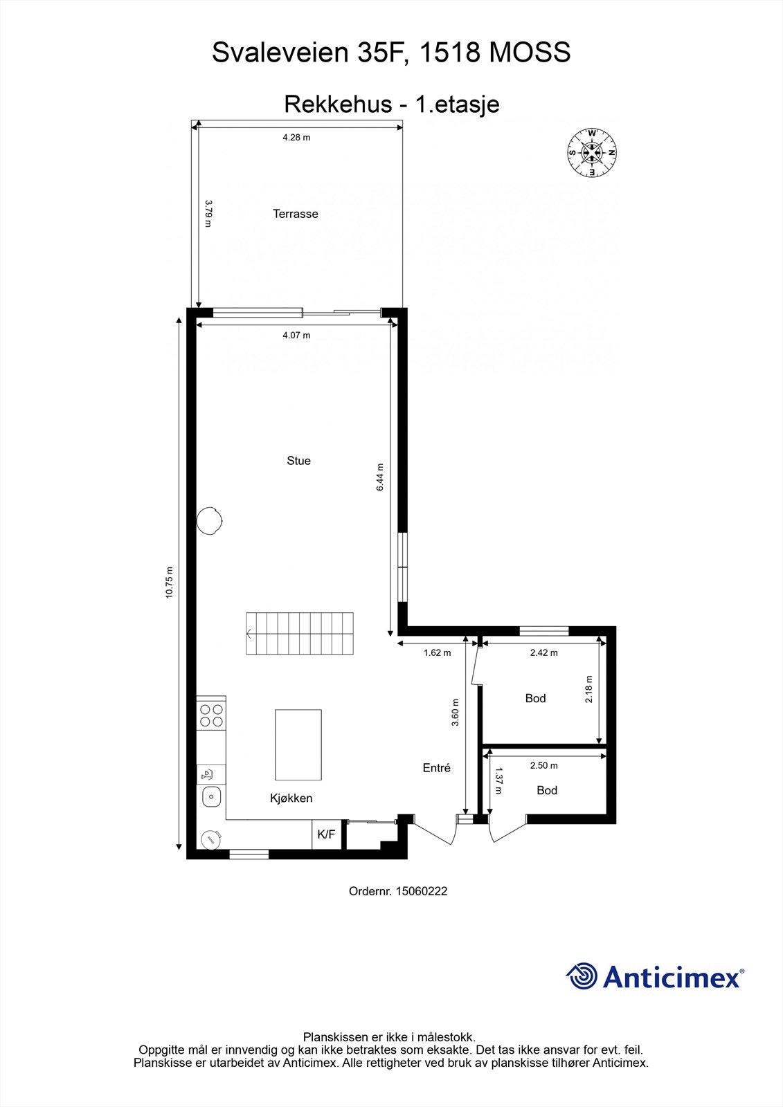
Enderekkehus nederst på Refsnes, renovert og ombygget rundt 2021
- Vestvendt terrasse og takaltan med vid utsikt til Oslofjorden
- Stue, kjøkken og entré samlet i åpen aktiv sone i første etasje
- Stilsikker innredning fra Sørlandskjøkken med integrerte hvitevarer
- Moderne, utvidet bad med skandinavisk stilpreg og Schmidt Bad innredninger
- To soverom av generøst størrelse - mulighet for tre
- Bod i første etasje innredet uten godkjenning
- Elektrisk anlegg fornyet i 2021, innfelte spotter i de fleste rom
- Vinduer og terrassedør skiftet ut av borettslaget i 2008
- Ny taktekking i regi av borettslaget i 2019
- Felles ladere til EL-biler er satt opp av borettslaget på parkeringsplass
- Kun få meter å gå til idylliske Refsnesstranda
NB: Knappen for å vise hele beskrivelsen har kun en visuell effekt.
NB: Knappen for å vise hele beskrivelsen har kun en visuell effekt.
Salgsoppgaven beskriver vesentlig og lovpålagt informasjon om eiendommen
Se komplett salgsoppgaveNyttige lenker
Nærområdet
Krogsveen Moss
Verdien av en god megler.
Prisstatistikk
Svaleveien 35F
11 442 klikk
på annonsen
57 890 kr
prisantydning per kvadratmeter
Prisfordeling
Pris per m² ligger 20 890 kr over snittet for rekkehus i Moss.
Grafen viser antall rekkehus solgt i Moss siste året fordelt på pris per m² - totalt 146 rekkehus
Antall boliger
Kvadratmeterpris tilsvarer prisantydning pluss fellesgjeld per kvadratmeter (p-rom eller BRA-i). Prisene i grafen er avrundet til nærmeste 1000 kr.
Annonseinformasjon
| FINN-kode | 367100946 |
|---|---|
| Sist endret | 29. mars 2025 15:59 |
| Referanse | KR30.24158 |
Annonsene kan være mangelfulle i forhold til lovpålagt opplysningsplikt. Før bindende avtale inngås oppfordres interessenter til å innhente komplett informasjon fra meglerforetaket, selger eller utleier.








































