Bildegalleri

HAMAR - Ny og lekker enebolig med sentral beliggenhet i Hamar. Herlige uteplasser med nydelige sol- og utsiktsforhold.
Nøkkelinfo
- Boligtype
- Enebolig
- Eieform
- Selveier
- Soverom
- 4
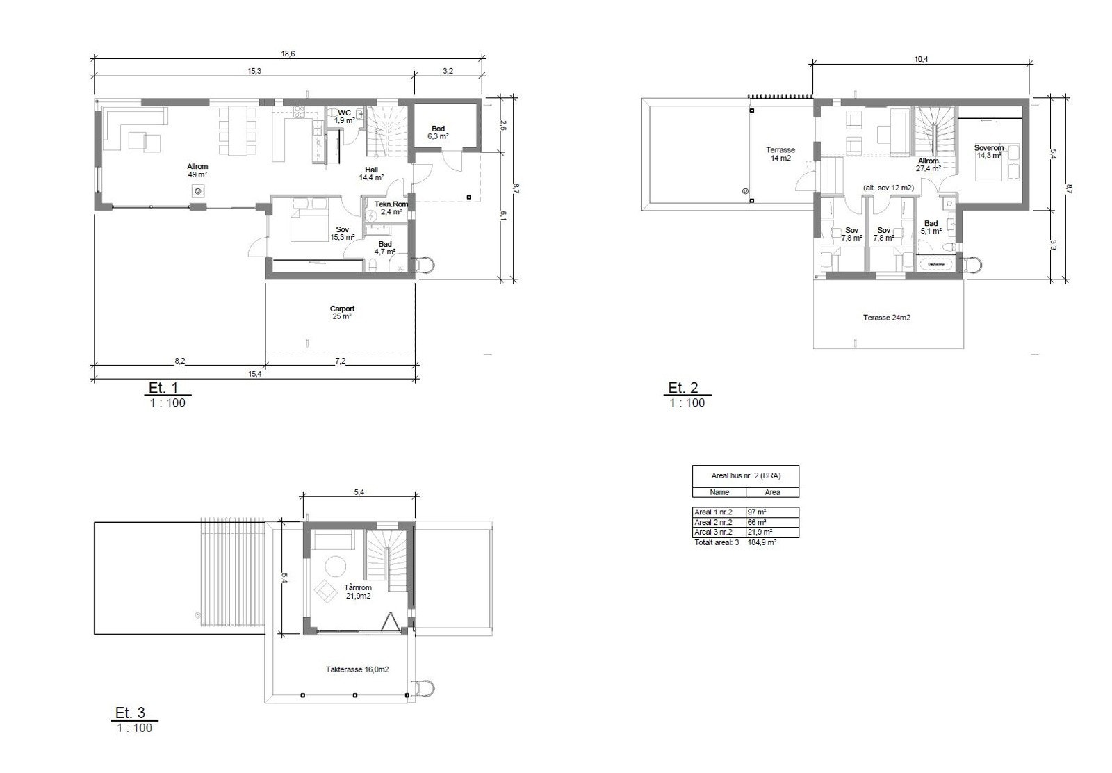
- Internt bruksareal
- 180 m² (BRA-i)
- Bruksareal
- 186 m²
- Eksternt bruksareal
- 6 m² (BRA-e)
- Balkong/Terrasse
- 85 m² (TBA)
- Byggeår
- 2022
- Energimerking
- B - Mørkegrønn
- Tomteareal
- 3 310 m² (eiet)
Fasiliteter
Om boligen
EIE har gleden av å presentere denne nye eneboligen i kjede med sentral beliggenhet!
Boligen går over tre plan og har uteplass i alle tre etasjene. Her nyter du sol gjennom hele dagen og fantastiske utsiktsforhold. Boligen har en god planløsning hvor alt ligger til rette for en sosial, lettstelt og aktiv hverdag. Den har 1. etasje med entré, åpen stue- og kjøkkenløsning, soverom med eget bad og ekstra toalettrom. 2. etasjen har tre soverom, bad og stue, og toppetasjen har tårnrom med utgang til takterrasse. Boligen har en gjennomgående fin standard med lekre farger og materialvalg som vil falle i smak hos de fleste. Den har gode kvaliteter med vannbåren gulvvarme i flere rom og gjennomtenkte løsninger. Her kan du flytte rett inn!
Velkommen til en hyggelig visning!
Salgsoppgaven beskriver vesentlig og lovpålagt informasjon om eiendommen
Se komplett salgsoppgaveNærområdet
EIE eiendomsmegling Innlandet
Annonseinformasjon
| FINN-kode | 366640127 |
|---|---|
| Sist endret | 14. sep. 2025 02:44 |
| Referanse | 72200260 |
Annonsene kan være mangelfulle i forhold til lovpålagt opplysningsplikt. Før bindende avtale inngås oppfordres interessenter til å innhente komplett informasjon fra meglerforetaket, selger eller utleier.



















































