Bildegalleri

- Velkommen til Åsenhagen 68E -
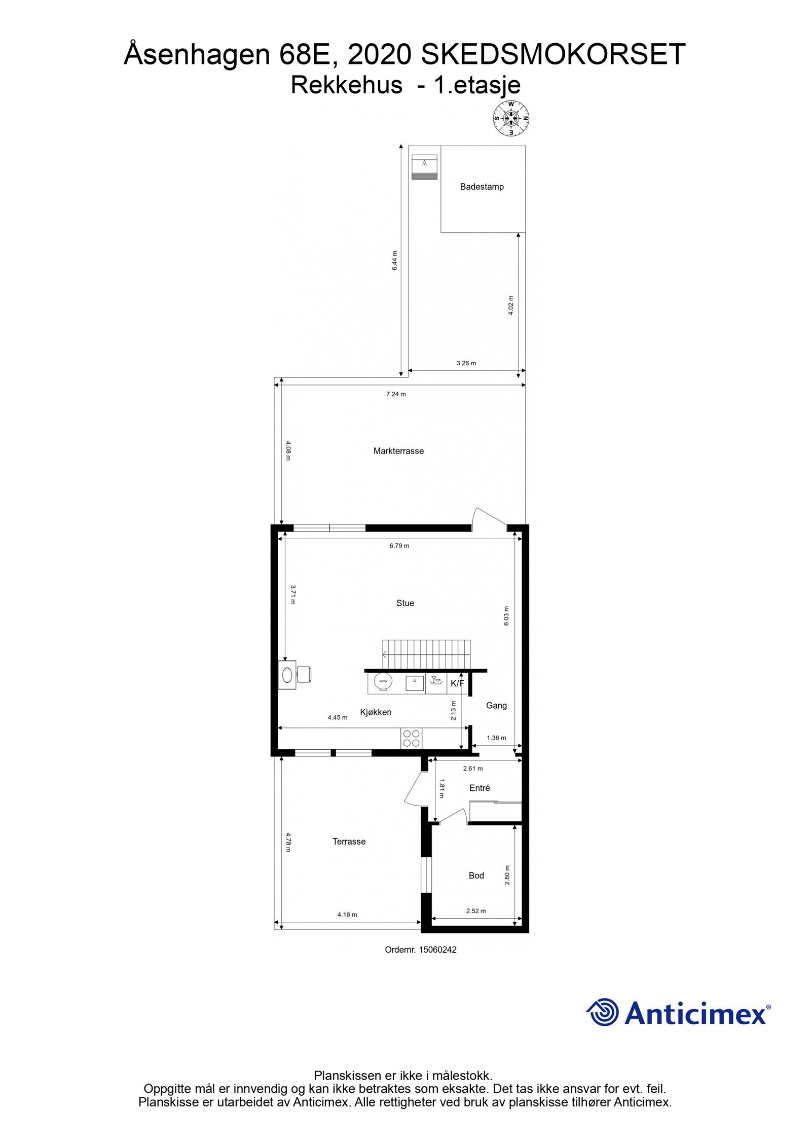
Enderekkehus med god planløsning - Garasje - Pent opparbeidet hage terrasser/hage med spabad - Barnevennlig & sentralt
Nøkkelinfo
- Boligtype
- Rekkehus
- Eieform
- Andel
- Soverom
- 3
- Internt bruksareal
- 95 m² (BRA-i)
- Bruksareal
- 95 m²
- Eksternt bruksareal
- 15 m² (BRA-e)
- Byggeår
- 1969
- Energimerking
- F - Oransje
- Tomt
- Eiet
Fasiliteter
Om boligen
EIE Eiendomsmegling har gleden til å presentere Åsenhagen 68E - Enderekkehus o/ 2 plan med 3 soverom, garasje og pent opparbeidet hage/terrasse. Boligen er sentralt plassert på Åsenhagen/Skedsmokorset
Solrike terrasser på hver side av boligen, samt inngjerdet hage med spabad på baksiden. Det medfølger fast garasjeplass i felles rekke med lader for elbil. Det er pent opparbeidete fellesområder, og det er umiddelbar nærhet til lekeplasser. Videre er det gangavstand til både barnehager og skoler, fritidsaktiviteter i fleng, samt buss, butikker, kjøpesenter og øvrige servicetilbud. Marka (Tæruddalen) ligger også i gangavstand fra eiendommen, og et yndet rekreasjonssted for både små og store - året rundt.
-Velkommen til visning-
Salgsoppgaven beskriver vesentlig og lovpålagt informasjon om eiendommen
Se komplett salgsoppgaveNærområdet
ROMERIKSMEGLEREN AS
Annonseinformasjon
| FINN-kode | 366240366 |
|---|---|
| Sist endret | 29. aug. 2024 11:29 |
| Referanse | 77240158 |
Annonsene kan være mangelfulle i forhold til lovpålagt opplysningsplikt. Før bindende avtale inngås oppfordres interessenter til å innhente komplett informasjon fra meglerforetaket, selger eller utleier.







































