Bildegalleri

Nordvik eiendomsmegling v/ Hevin Güven har gleden av å presentere Wergelands gate 2A!
Solgt
Sentral 2-roms leilighet i Gjøvik! | Mulighet for P-plass | Perfekt førstegangskjøp | Kort vei til "Alt"!
Prisantydning1 990 000 kr
Nøkkelinfo
- Boligtype
- Leilighet
- Eieform
- Andel
- Soverom
- 1
- Internt bruksareal
- 54 m² (BRA-i)
- Bruksareal
- 62 m²
- Eksternt bruksareal
- 8 m² (BRA-e)
- Etasje
- 1
- Byggeår
- 1958
- Energimerking
- G - Rød
- Rom
- 2
- Tomteareal
- 968 m² (eiet)
Fasiliteter
Bredbåndstilknytning
Fellesvaskeri
Kjæledyr tillatt
Kabel-TV
Offentlig vann/kloakk
Parkett
Rolig
Sentralt
Vaktmester-/vektertjeneste
Om boligen
Nordvik eiendomsmegling v/Hevin Güven har gleden av å presentere Wergelands gate 2A!
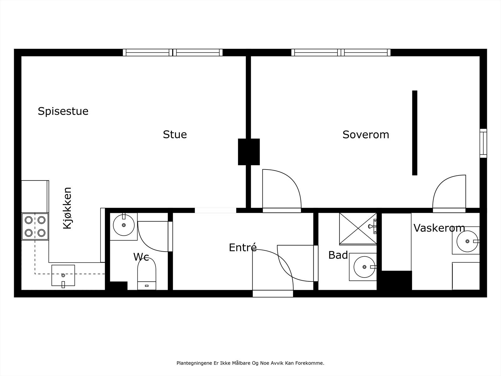
Denne sentrale 2-roms leiligheten ligger i 1. etasje og har en god planløsning. Den romslige stuen og kjøkkenet er utformet i en åpen løsning, perfekt for både avslapning og samvær. Leiligheten har et praktisk toalettrom, separat bad, eget vaskerom, og et soverom med walk-in garderobe. Her får du alt du trenger innenfor rekkevidde, skysstasjon er kun få minutters gange fra leiligheten, med buss og tog forbindelser. NTNU og fagskolen er også innen rimelig gangavstand.
Høydepunkter:
Denne sentrale 2-roms leiligheten ligger i 1. etasje og har en god planløsning. Den romslige stuen og kjøkkenet er utformet i en åpen løsning, perfekt for både avslapning og samvær. Leiligheten har et praktisk toalettrom, separat bad, eget vaskerom, og et soverom med walk-in garderobe. Her får du alt du trenger innenfor rekkevidde, skysstasjon er kun få minutters gange fra leiligheten, med buss og tog forbindelser. NTNU og fagskolen er også innen rimelig gangavstand.
Høydepunkter:
- Kort vei til "Alt"
- Mulighet for P-plass
- Luftig soverom med walk-in
- 2 boder i kjeller og 1 i loft
- Freshe farger på vegger
- Bad, toalett og vaskerom/teknisk rom
- Praktisk planløsning
NB: Knappen for å vise hele beskrivelsen har kun en visuell effekt.
NB: Knappen for å vise hele beskrivelsen har kun en visuell effekt.
Salgsoppgaven beskriver vesentlig og lovpålagt informasjon om eiendommen
Se komplett salgsoppgaveNyttige lenker
Nærområdet
Nordvik Gjøvik
Vi vet hva det er verdt!
Annonseinformasjon
| FINN-kode | 366233607 |
|---|---|
| Sist endret | 29. jan. 2025 17:09 |
| Referanse | 71-0140/24 |
Annonsene kan være mangelfulle i forhold til lovpålagt opplysningsplikt. Før bindende avtale inngås oppfordres interessenter til å innhente komplett informasjon fra meglerforetaket, selger eller utleier.














