Bildegalleri

Velkommen til visning i Neptunveien 42
Solgt
Krokstadelva
Pent og innbydende rekkehus med 2 etasjer. Vannbåren varme. Solrik balkong med flott elveutsikt. Parkering. Rett v/marka
Prisantydning3 190 000 kr
Nøkkelinfo
- Boligtype
- Rekkehus
- Eieform
- Andel
- Soverom
- 2
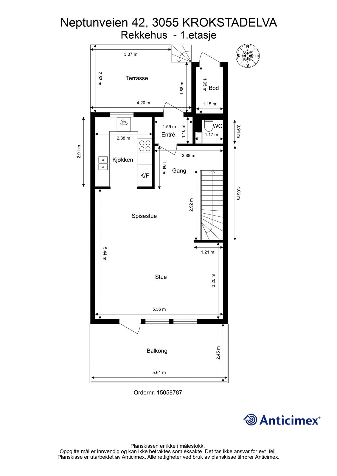
- Internt bruksareal
- 93 m² (BRA-i)
- Bruksareal
- 95 m²
- Eksternt bruksareal
- 2 m² (BRA-e)
- Balkong/Terrasse
- 37 m² (TBA)
- Etasje
- 2
- Byggeår
- 1976
- Energimerking
- E - Mørkegrønn
- Rom
- 3
- Tomteareal
- 14 254 m² (eiet)
Fasiliteter
Balkong/Terrasse
Barnevennlig
Bredbåndstilknytning
Garasje/P-plass
Kabel-TV
Offentlig vann/kloakk
Rolig
Utsikt
Om boligen
Pent og innbydende rekkehus med 2 etasjer.
- Fin stue med store vinduer og varmepumpe
- Pent kjøkken fra 2008 med delvis integrerte hvitevarer
- Delikat og velutstyrt bad fra 2008 med ny dusj og dobbelservant
- Praktisk wc-rom fra 2008 og separat vaskerom fra 2008
- Vannbåren gulvvarme i alle rom og sentralstøvsuger i boligen
- Boligen har blitt betydelig oppgradert i 2008
- Dører + vinduer fra 2002 og yttertaktekke fra 2007
- Solrik sydvendt balkong på ca. 14 kvm med markise
- Balkongen har flott utsikt mot elva og skogen
- Markterrasse og hage i u. etg samt terrasse ved inngangsparti
- Disponibel parkeringsplass - mulighet for leie av garasje etter liste
- Umiddelbar nærhet til barneskole og marka
- Kort gangavstand til buss, barnehage og matbutikk
NB: Knappen for å vise hele beskrivelsen har kun en visuell effekt.
NB: Knappen for å vise hele beskrivelsen har kun en visuell effekt.
Salgsoppgaven beskriver vesentlig og lovpålagt informasjon om eiendommen
Se komplett salgsoppgaveNyttige lenker
Nærområdet
Krogsveen Drammen
Verdien av en god megler.
Prisstatistikk
Neptunveien 42
4 916 klikk
på annonsen
37 412 kr
prisantydning per kvadratmeter
Prisfordeling
Pris per m² ligger 5 412 kr over snittet for rekkehus i Nedre Eiker.
Grafen viser antall rekkehus solgt i Nedre Eiker siste året fordelt på pris per m² - totalt 46 rekkehus
Antall boliger
Kvadratmeterpris tilsvarer prisantydning pluss fellesgjeld per kvadratmeter (p-rom eller BRA-i). Prisene i grafen er avrundet til nærmeste 1000 kr.
Annonseinformasjon
| FINN-kode | 365969986 |
|---|---|
| Sist endret | 07. juni 2025 09:54 |
| Referanse | KR20.24210 |
Annonsene kan være mangelfulle i forhold til lovpålagt opplysningsplikt. Før bindende avtale inngås oppfordres interessenter til å innhente komplett informasjon fra meglerforetaket, selger eller utleier.

































