Bildegalleri

DNB Eiendom v/ Michael A. Meyer har gleden av å presentere Regimentveien 54!
Begbyåsen
Moderne og påkostet endeleilighet fra 2024 i 1. etasje | To soverom | Gulvvarme | Gode solforhold | Carport
Prisantydning4 300 000 kr
Nøkkelinfo
- Boligtype
- Leilighet
- Eieform
- Eier (Selveier)
- Soverom
- 2
- Internt bruksareal
- 77 m² (BRA-i)
- Bruksareal
- 77 m²
- Balkong/Terrasse
- 21 m² (TBA)
- Etasje
- 1
- Byggeår
- 2024
- Tomteareal
- 7 722 m² (eiet)
Fasiliteter
Balkong/Terrasse
Barnevennlig
Garasje/P-plass
Kjæledyr tillatt
Kabel-TV
Offentlig vann/kloakk
Parkett
Peis/Ildsted
Rolig
Sentralt
Turterreng
Balansert ventilasjon
Visning
Ta kontakt for visning - vi finner en tid som passer deg! Ring 48 06 28 70 eller send sms
VisningspåmeldingOm boligen
Velkommen til Regimentveien 54!
Dette er en helt ny og ubebodd 3-roms selveierleilighet beliggende i et meget attraktivt område i Begbyåsen. Dette er et rolig og barnevennlig område med bl.a. gangavstand til Begby skole, barnehage og Begbysenter med matvarebutikk, apotek, frisør m.m. Lysløype, flotte tur- og rekreasjonsmuligheter, samt golfbane i umiddelbar nærhet.
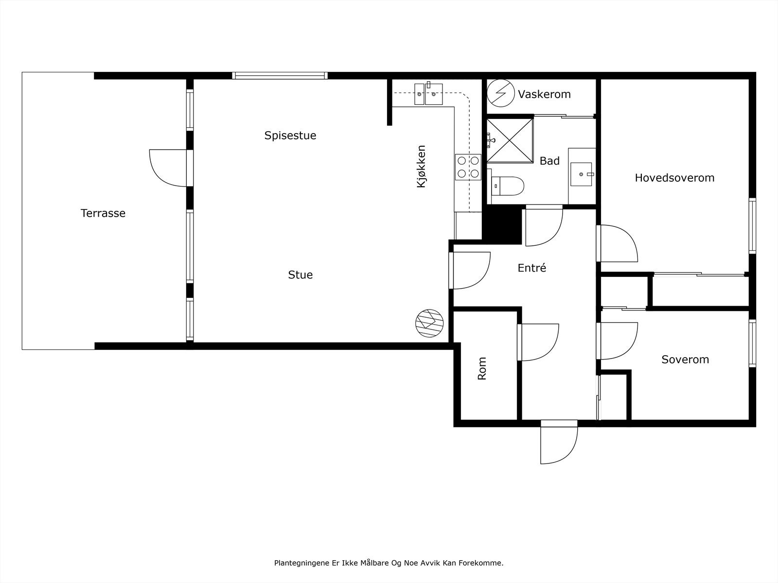
Leiligheten sto ferdig i 2024 og fremstår som meget moderne med god standard. Leiligheten ligger i 1. etasje og passer for beboere i alle aldre. Leiligheten har balansert ventilasjon og varmekabler i gulv på gang, bad og stue/kjøkken. Leiligheten består av entré/gang, stue, kjøkken, bad, to soverom og en innvendig bod. En romslig terrasse med meget gode solforhold.
Egen parkeringsplass i carport med tilhørende sportsbod.
Dette er en helt ny og ubebodd 3-roms selveierleilighet beliggende i et meget attraktivt område i Begbyåsen. Dette er et rolig og barnevennlig område med bl.a. gangavstand til Begby skole, barnehage og Begbysenter med matvarebutikk, apotek, frisør m.m. Lysløype, flotte tur- og rekreasjonsmuligheter, samt golfbane i umiddelbar nærhet.
Leiligheten sto ferdig i 2024 og fremstår som meget moderne med god standard. Leiligheten ligger i 1. etasje og passer for beboere i alle aldre. Leiligheten har balansert ventilasjon og varmekabler i gulv på gang, bad og stue/kjøkken. Leiligheten består av entré/gang, stue, kjøkken, bad, to soverom og en innvendig bod. En romslig terrasse med meget gode solforhold.
Egen parkeringsplass i carport med tilhørende sportsbod.
NB: Knappen for å vise hele beskrivelsen har kun en visuell effekt.
NB: Knappen for å vise hele beskrivelsen har kun en visuell effekt.
Salgsoppgaven beskriver vesentlig og lovpålagt informasjon om eiendommen
Se komplett salgsoppgaveNyttige lenker
Nærområdet
DNB Eiendom AS
Fra hjem til hjem
Annonseinformasjon
| FINN-kode | 365946227 |
|---|---|
| Sist endret | 27. jan. 2026 09:00 |
| Referanse | 217240151 |
Annonsene kan være mangelfulle i forhold til lovpålagt opplysningsplikt. Før bindende avtale inngås oppfordres interessenter til å innhente komplett informasjon fra meglerforetaket, selger eller utleier.



























