Bildegalleri

Silje Dammen ved EIE Løren har gleden av å ønske velkommen til Turbinveien 7!
Solgt
Kværnerbyen
Lys & tiltalende 2-roms med vestvendt balkong på 7 kvm. Heis. IN-lån og avdragsfrihet til 2038* Heis. V.v/fyring inkl.
Prisantydning3 300 000 kr
Nøkkelinfo
- Boligtype
- Leilighet
- Eieform
- Andel
- Soverom
- 1
- Internt bruksareal
- 41 m² (BRA-i)
- Bruksareal
- 46 m²
- Eksternt bruksareal
- 5 m² (BRA-e)
- Balkong/Terrasse
- 7 m² (TBA)
- Etasje
- 5
- Byggeår
- 2008
- Energimerking
- B - Lysegrønn
- Tomteareal
- 1 113 m² (eiet)
Fasiliteter
Balkong/Terrasse
Kabel-TV
Heis
Offentlig vann/kloakk
Parkett
Turterreng
Vaktmester-/vektertjeneste
Sentralt
Bredbåndstilknytning
Moderne
Rolig
Om boligen
Silje Dammen ved EIE Løren har gleden av å ønske velkommen til Turbinveien 7!
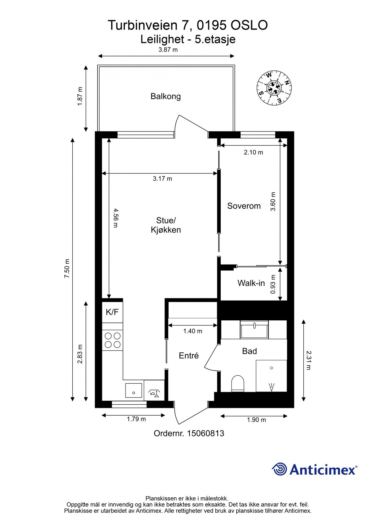
Dette er en lys og pen 2-roms andelsleilighet i 5. etasje fra 2008 med flott beliggenhet i et attraktivt boligområde. Her får du gleden av en vestvendt balkong på 7 kvm samt felles takterrasse. Leiligheten har en godt utnyttet planløsning og store vindusflater som slipper inn godt med naturlig lys og skaper en god romfølelse.
Boligen inneholder et lyst kjøkkenhjørne i åpen løsning mot stuen og et romslig soverom med walk-in-closet. Videre er det et flislagt bad med opplegg for vaskemaskin og en innbydende entré.
Oppvarming og varmtvann (A-konto) samt tv og bredbånd er inkludert. Det medfølger en kjellerbod på 5 kvm.
Store deler av fellesgjelden er avdragsfri til 2038!
Ved innfrielse av fellesgjelden går felleskostnadene ned til kr. 3.299,-/mnd. p.t.
Boligen har energimerke B som kvalifiserer til Grønt boliglån i flere banker!
Lave omkostninger ved kjøp!
Velkommen!
Dette er en lys og pen 2-roms andelsleilighet i 5. etasje fra 2008 med flott beliggenhet i et attraktivt boligområde. Her får du gleden av en vestvendt balkong på 7 kvm samt felles takterrasse. Leiligheten har en godt utnyttet planløsning og store vindusflater som slipper inn godt med naturlig lys og skaper en god romfølelse.
Boligen inneholder et lyst kjøkkenhjørne i åpen løsning mot stuen og et romslig soverom med walk-in-closet. Videre er det et flislagt bad med opplegg for vaskemaskin og en innbydende entré.
Oppvarming og varmtvann (A-konto) samt tv og bredbånd er inkludert. Det medfølger en kjellerbod på 5 kvm.
Store deler av fellesgjelden er avdragsfri til 2038!
Ved innfrielse av fellesgjelden går felleskostnadene ned til kr. 3.299,-/mnd. p.t.
Boligen har energimerke B som kvalifiserer til Grønt boliglån i flere banker!
Lave omkostninger ved kjøp!
Velkommen!
NB: Knappen for å vise hele beskrivelsen har kun en visuell effekt.
NB: Knappen for å vise hele beskrivelsen har kun en visuell effekt.
Salgsoppgaven beskriver vesentlig og lovpålagt informasjon om eiendommen
Se komplett salgsoppgaveNyttige lenker
Nærområdet
EIE eiendomsmegling Løren
Annonseinformasjon
| FINN-kode | 365812367 |
|---|---|
| Sist endret | 03. mars 2025 14:14 |
| Referanse | 71240203 |
Annonsene kan være mangelfulle i forhold til lovpålagt opplysningsplikt. Før bindende avtale inngås oppfordres interessenter til å innhente komplett informasjon fra meglerforetaket, selger eller utleier.













































