Bildegalleri

Velkommen til Vestre Vadmyra 6!
Solgt
Bergen Vest
Fin 3-roms med innglasset balkong. Solrikt. Moderne kjøkken fra 2016. Varmt vann og sentralvarme inkl. i felleskostnader
Prisantydning2 600 000 kr
Nøkkelinfo
- Boligtype
- Leilighet
- Eieform
- Andel
- Soverom
- 2
- Internt bruksareal
- 73 m² (BRA-i)
- Bruksareal
- 94 m²
- Eksternt bruksareal
- 15 m² (BRA-e)
- Innglasset balkong
- 6 m² (BRA-b)
- Etasje
- 2
- Byggeår
- 1971
- Energimerking
- E - Rød
- Rom
- 3
- Tomteareal
- 46 772 m² (eiet)
Fasiliteter
Balkong/Terrasse
Barnevennlig
Bredbåndstilknytning
Kjæledyr tillatt
Kabel-TV
Offentlig vann/kloakk
Rolig
Sentralt
Vaktmester-/vektertjeneste
Turterreng
Lademulighet
Om boligen
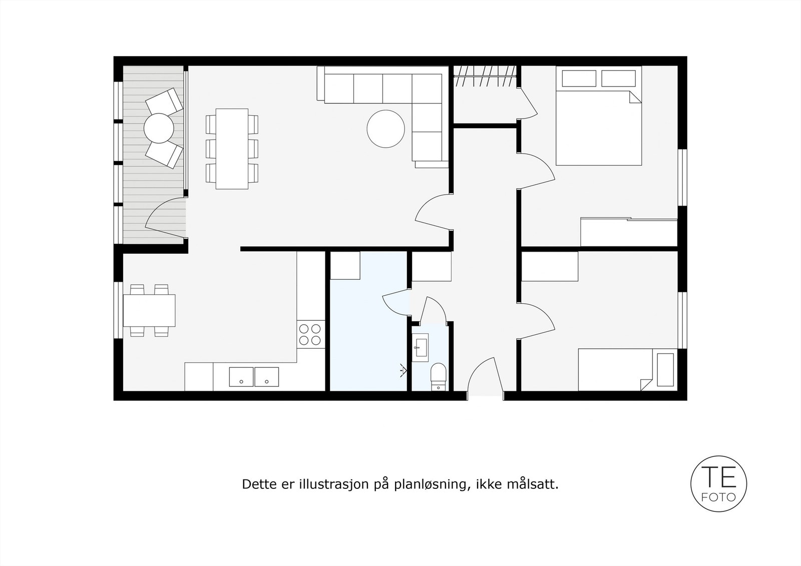
Fin leilighet med gode kvaliteter på kjøkken. Kjøkkenet fra 2016 har integrert induksjonstopp, stekeovn, oppvaskmaskin og kjøle- og fryseskap. Spiseplass ved kjøkkenvindu. Innglasset balkong i fin forlengelse av stuen med gode solforhold og usjenert beliggende ved skogholtet mot Hetlevikåsen. God plass til oppbevaring med skyvedørsgarderobe i hovedsoverom, innvendig bod, garderobeskap i soverom 2 og stor kjellerbod på ca. 15 kvm. Leiligheten ligger i et attraktivt borettslag, rolig og sentralt boligområde uten gjennomgangstrafikk. Fine fellesarealer som er tilpasset alle aldersgrupper. Korte avstander til buss, skoler, barnehager, butikk, flott turterreng, mange gode aktivitetstilbud mm. Få min. til Vestkanten Storsenter, som i tillegg byr på badeland, bowling, ishall, div spisesteder mm.
NB: Knappen for å vise hele beskrivelsen har kun en visuell effekt.
NB: Knappen for å vise hele beskrivelsen har kun en visuell effekt.
Salgsoppgaven beskriver vesentlig og lovpålagt informasjon om eiendommen
Se komplett salgsoppgaveNyttige lenker
Nærområdet
Krogsveen Bergen Vest
Verdien av en god megler.
Annonseinformasjon
| FINN-kode | 365780054 |
|---|---|
| Sist endret | 15. nov. 2024 09:52 |
| Referanse | KR69.2459 |
Annonsene kan være mangelfulle i forhold til lovpålagt opplysningsplikt. Før bindende avtale inngås oppfordres interessenter til å innhente komplett informasjon fra meglerforetaket, selger eller utleier.








































