Bildegalleri

Jonas Ekse Hovland v/ Eiendomsmegler Krogsveen presenterer en strøken 2-roms i Helgesens gate 42F!
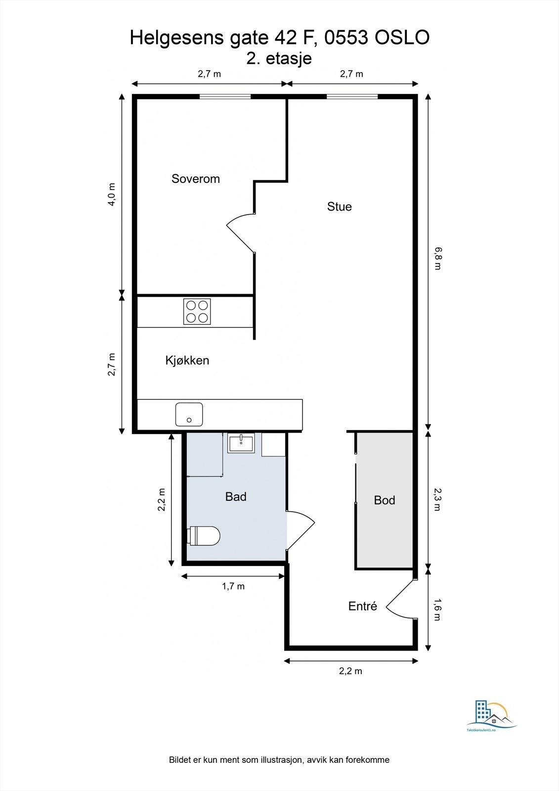
Lys, romslig & moderne 2-roms fabrikkleilighet fra 2014. God takhøyde. Stille og tilbaketrukket. Varmtvann & fyring inkl
Nøkkelinfo
- Boligtype
- Leilighet
- Eieform
- Andel
- Soverom
- 1
- Internt bruksareal
- 54 m² (BRA-i)
- Bruksareal
- 58 m²
- Eksternt bruksareal
- 4 m² (BRA-e)
- Etasje
- 2
- Byggeår
- 1887
- Energimerking
- F - Mørkegrønn
- Rom
- 2
- Tomteareal
- 1 640 m²
Fasiliteter
Om boligen
Kvaliteter:
- God standard fra da borettslaget ble etablert i et tidligere fabrikkbygg i 2014
- Ingen forkjøpsrett og lave kjøpsomkostninger
- Samtlige punkter vurdert til TG1 og TG0
- Generøs takhøyde og store vindusflater
- Praktisk planløsning og arealfordeling
- Fyring, varmtvann og internett inkl.
- Sentralt, men likevel rolig
- Vannbåren gulvvarme
- 1-stavs parkett
- Boder
Velkommen!
Salgsoppgaven beskriver vesentlig og lovpålagt informasjon om eiendommen
Se komplett salgsoppgaveNyttige lenker
Nærområdet
Krogsveen Hasle
Prisstatistikk
Helgesens gate 42F
på annonsen
prisantydning per kvadratmeter
Prisfordeling
Pris per m² ligger 18 852 kr under snittet for leiligheter i Grünerløkka - Sofienberg.
Grafen viser antall leiligheter solgt i Grünerløkka - Sofienberg siste året fordelt på pris per m² - totalt 2 434 leiligheter
Antall boliger
Kvadratmeterpris tilsvarer prisantydning pluss fellesgjeld per kvadratmeter (p-rom eller BRA-i). Prisene i grafen er avrundet til nærmeste 1000 kr.
Annonseinformasjon
| FINN-kode | 365520733 |
|---|---|
| Sist endret | 25. nov. 2024 07:28 |
| Referanse | KR37.24320 |
Annonsene kan være mangelfulle i forhold til lovpålagt opplysningsplikt. Før bindende avtale inngås oppfordres interessenter til å innhente komplett informasjon fra meglerforetaket, selger eller utleier.
































