Bildegalleri

OTTESTAD - Innbydende enebolig pusset opp i nyere tid, på meget romslig tomt. Store uteplasser og gode solforhold.
Nøkkelinfo
- Boligtype
- Enebolig
- Eieform
- Eier (Selveier)
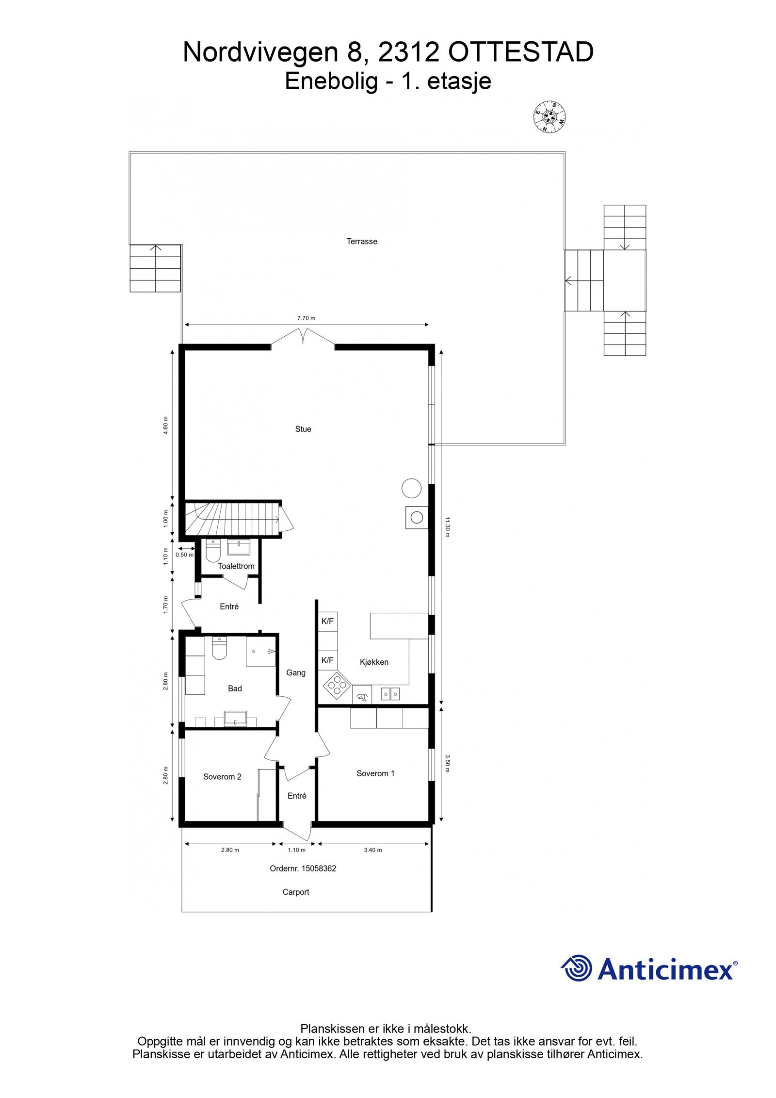
- Soverom
- 2
- Internt bruksareal
- 220 m² (BRA-i)
- Bruksareal
- 220 m²
- Eksternt bruksareal
- 39 m² (BRA-e)
- Balkong/Terrasse
- 67 m² (TBA)
- Byggeår
- 1983
- Energimerking
- E - Oransje
- Tomteareal
- 3 530 m² (eiet)
Fasiliteter
Om boligen
Velkommen til Nordivegen 8 og denne hyggelige boligen!
Eiendommen består av enebolig, smie/uthus og en romslig tomt. Huset er vesentlig pusset opp med bla. Aubo-kjøkken, nye overflater og vinduer, etterisolering og kledning m.m. Alle funksjoner er i husets 1. etasje, så her kan man få en lettstelt hverdag. I tillegg er det kjeller hvor det er fin takhøyde og det er byttet til rømningsvinduer på to rom. Utvendig har boligen store uteplasser med gode solforhold, og hagen er opparbeidet med støttemurer, gressplen og belegningsstein. Gårdsplassen er av meget raus størrelse, her er mulighetene mange!
Ønsker velkommen til visning!
Salgsoppgaven beskriver vesentlig og lovpålagt informasjon om eiendommen
Se komplett salgsoppgaveNærområdet
EIE eiendomsmegling Innlandet
Annonseinformasjon
| FINN-kode | 364765773 |
|---|---|
| Sist endret | 17. des. 2024 14:34 |
| Referanse | 72230258 |
Annonsene kan være mangelfulle i forhold til lovpålagt opplysningsplikt. Før bindende avtale inngås oppfordres interessenter til å innhente komplett informasjon fra meglerforetaket, selger eller utleier.




































