Bildegalleri

Velkommen til Andreas Grøttings veg 17C!
Solgt
Nordleiret - BUD INNE! Lettstelt, 2-roms endeleilighet i høy 1.etasje med innglasset veranda og utsikt. Heis.
Prisantydning1 290 000 kr
Nøkkelinfo
- Boligtype
- Leilighet
- Eieform
- Andel
- Soverom
- 1
- Internt bruksareal
- 62 m² (BRA-i)
- Bruksareal
- 76 m²
- Innglasset balkong
- 14 m² (BRA-b)
- Etasje
- 1
- Byggeår
- 1967
- Energimerking
- Rom
- 2
- Tomt
- Eiet
Fasiliteter
Balkong/Terrasse
Barnevennlig
Bredbåndstilknytning
Fellesvaskeri
Garasje/P-plass
Hage
Heis
Kabel-TV
Offentlig vann/kloakk
Rolig
Sentralt
Utsikt
Bademulighet
Turterreng
Lademulighet
Om boligen
Velkommen til Nordleiret og Andreas Grøttingsveg 17C!
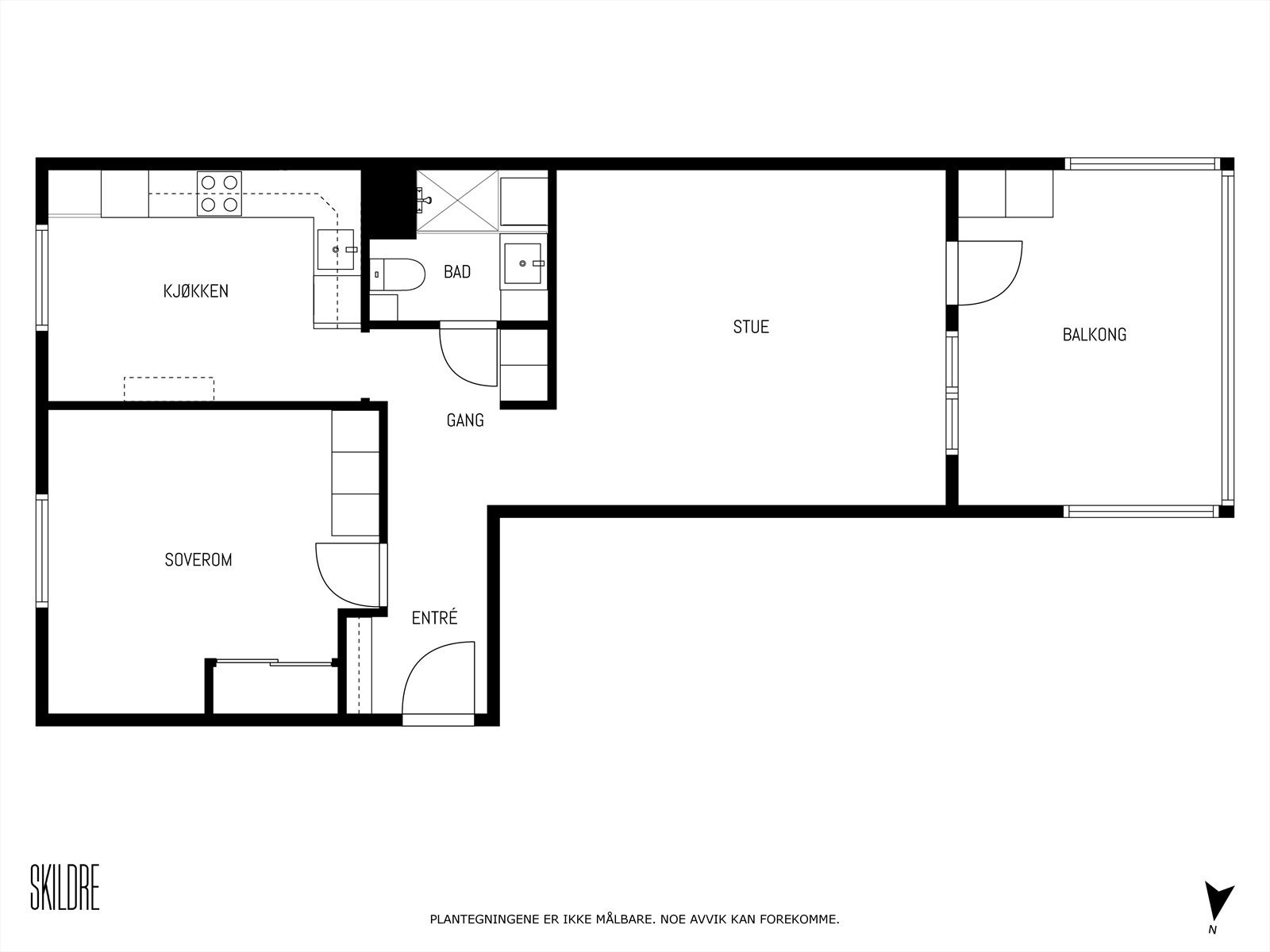
Her har vi gleden av å presentere en lys og lettstelt 2-roms andelsleilighet med meget sentral beliggenhet. Leiligheten har stue, kjøkken, soverom og bad, samt innglasset veranda. Privat bod i felles kjeller. Blokken har heis, og det er mulighet for leie av garasjeplass dersom det er ledige plasser. Oppvarming med vannbåren varme til radiatorer. Pent uteområde med blant annet grillplass og flere sittebenker.
Gangavstand til Elverum sentrum, med alt av fasiliteter. Kort vei til Sagtjernet, Stavåsen og idrettsplass/skøytebane.
Velkommen til visning!
Meld deg på via påmeldingsknappen eller ta kontakt med Hans Petter Carlsson, eiendomsmegler MNEF på tlf. 911 25 518.
Her har vi gleden av å presentere en lys og lettstelt 2-roms andelsleilighet med meget sentral beliggenhet. Leiligheten har stue, kjøkken, soverom og bad, samt innglasset veranda. Privat bod i felles kjeller. Blokken har heis, og det er mulighet for leie av garasjeplass dersom det er ledige plasser. Oppvarming med vannbåren varme til radiatorer. Pent uteområde med blant annet grillplass og flere sittebenker.
Gangavstand til Elverum sentrum, med alt av fasiliteter. Kort vei til Sagtjernet, Stavåsen og idrettsplass/skøytebane.
Velkommen til visning!
Meld deg på via påmeldingsknappen eller ta kontakt med Hans Petter Carlsson, eiendomsmegler MNEF på tlf. 911 25 518.
NB: Knappen for å vise hele beskrivelsen har kun en visuell effekt.
NB: Knappen for å vise hele beskrivelsen har kun en visuell effekt.
Salgsoppgaven beskriver vesentlig og lovpålagt informasjon om eiendommen
Se komplett salgsoppgaveNyttige lenker
Nærområdet
Meglerhuset Østlandet AS
Prisstatistikk
Andreas Grøttings veg 17C
6 508 klikk
på annonsen
26 854 kr
prisantydning per kvadratmeter
Prisfordeling
Pris per m² ligger 6 146 kr under snittet for leiligheter i Elverum.
Grafen viser antall leiligheter solgt i Elverum siste året fordelt på pris per m² - totalt 170 leiligheter
Antall boliger
Kvadratmeterpris tilsvarer prisantydning pluss fellesgjeld per kvadratmeter (p-rom eller BRA-i). Prisene i grafen er avrundet til nærmeste 1000 kr.
Annonseinformasjon
| FINN-kode | 363567563 |
|---|---|
| Sist endret | 24. apr. 2026 11:29 |
| Referanse | GAR14.2472 |
Annonsene kan være mangelfulle i forhold til lovpålagt opplysningsplikt. Før bindende avtale inngås oppfordres interessenter til å innhente komplett informasjon fra meglerforetaket, selger eller utleier.































