Bildegalleri

Riihimækiveien 21 er en romslig 3-roms andelsleilighet i andre etasje.
Solgt
Skjetten
Romslig 3-roms med god planløsning. Vestvendt, innglasset balkong og garasjeplass. Barnevennlig!
Prisantydning3 750 000 kr
Nøkkelinfo
- Boligtype
- Leilighet
- Eieform
- Andel
- Soverom
- 2
- Internt bruksareal
- 83 m² (BRA-i)
- Bruksareal
- 98 m²
- Eksternt bruksareal
- 15 m² (BRA-e)
- Balkong/Terrasse
- 14 m² (TBA)
- Etasje
- 2
- Byggeår
- 1975
- Energimerking
- F - Rød
- Rom
- 3
- Tomteareal
- 6 581 m² (eiet)
Fasiliteter
Balkong/Terrasse
Barnevennlig
Garasje/P-plass
Rolig
Sentralt
Utsikt
Turterreng
Lademulighet
Om boligen
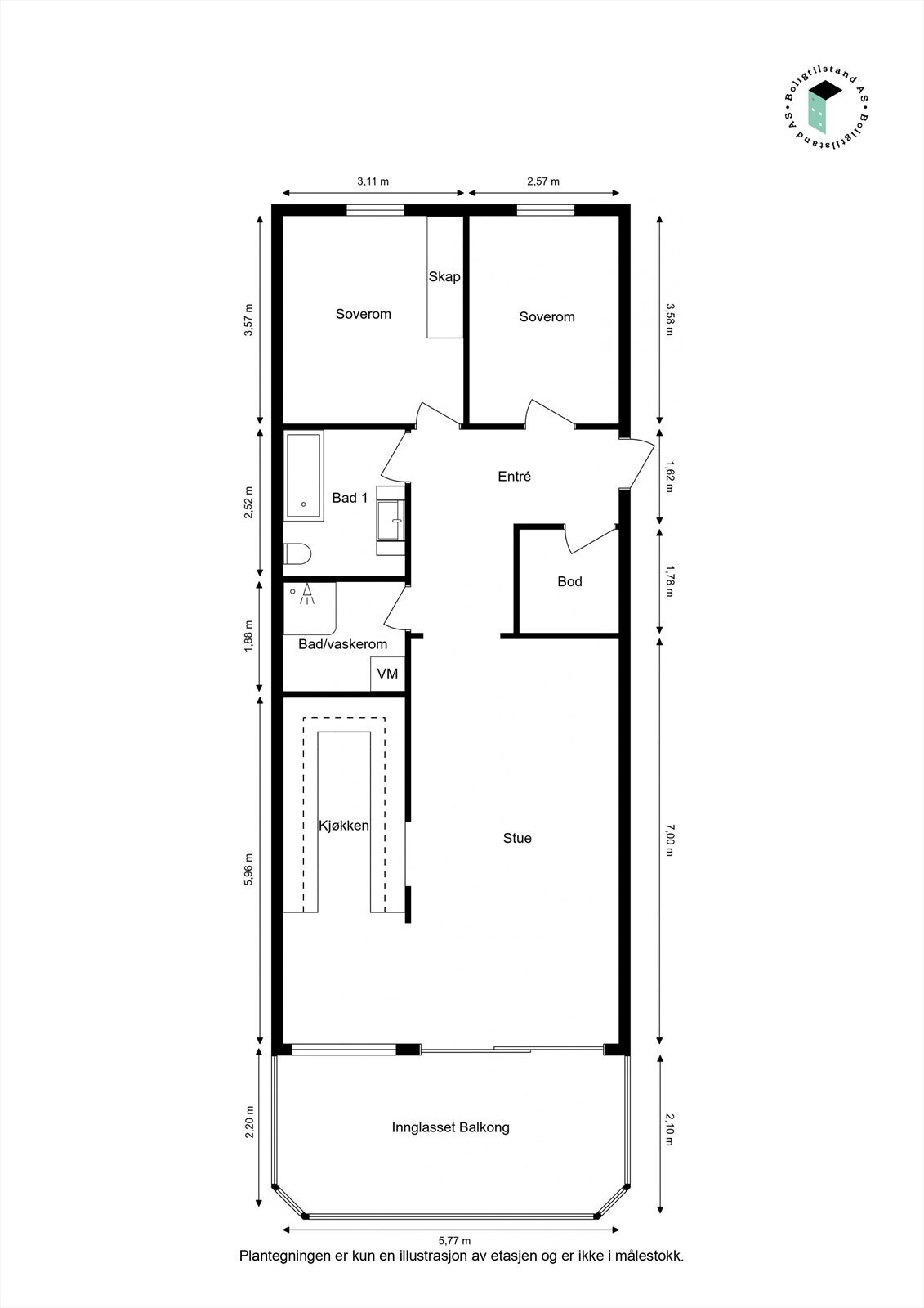
Riihimækiveien 21 er en romslig 3-roms andelsleilighet i andre etasje. Leiligheten er gjennomgående og har utgang fra stuen til en vestvendt balkong på ca. 14 kvm med innglassing. Den herlige uteplassen ligger helt usjenert og har fin utsikt til grønne fellesarealer og skogholt. På utsiden av bygget er det felles terrasser, lekeplass og garasjeplass.
Leiligheten har en familievennlig og praktisk planløsning, god romstørrelse. Stuen ligger i en delvis åpen løsning med kjøkkenet, men arbeidssonen er godt skjermet. Leiligheten har to gode soverom med østvendte vinduer, et delikat baderom med badekar, et vaskerom med dusjkabinett og en romslig entré med bod/garderobe.
Velkommen til visning!
Leiligheten har en familievennlig og praktisk planløsning, god romstørrelse. Stuen ligger i en delvis åpen løsning med kjøkkenet, men arbeidssonen er godt skjermet. Leiligheten har to gode soverom med østvendte vinduer, et delikat baderom med badekar, et vaskerom med dusjkabinett og en romslig entré med bod/garderobe.
Velkommen til visning!
NB: Knappen for å vise hele beskrivelsen har kun en visuell effekt.
NB: Knappen for å vise hele beskrivelsen har kun en visuell effekt.
Salgsoppgaven beskriver vesentlig og lovpålagt informasjon om eiendommen
Se komplett salgsoppgaveNyttige lenker
Nærområdet
Aktiv Oslo Nord
Prisstatistikk
Riihimækiveien 21
3 098 klikk
på annonsen
47 717 kr
prisantydning per kvadratmeter
Prisfordeling
Pris per m² ligger 24 283 kr under snittet for leiligheter i Skedsmo.
Grafen viser antall leiligheter solgt i Skedsmo siste året fordelt på pris per m² - totalt 989 leiligheter
Antall boliger
Kvadratmeterpris tilsvarer prisantydning pluss fellesgjeld per kvadratmeter (p-rom eller BRA-i). Prisene i grafen er avrundet til nærmeste 1000 kr.
Annonseinformasjon
| FINN-kode | 363441549 |
|---|---|
| Sist endret | 24. okt. 2024 05:20 |
| Referanse | 1104240054 |
Annonsene kan være mangelfulle i forhold til lovpålagt opplysningsplikt. Før bindende avtale inngås oppfordres interessenter til å innhente komplett informasjon fra meglerforetaket, selger eller utleier.






























