Bildegalleri

Nordvik v/Morten Hannestad har gleden av å presentere Marcus Thranes gate 8
Inaktiv
Torshov
Sjarmerende og romslig 2(3)-roms med balkong, peis og god takhøyde - Rosett og tregulv - IN-Ordning - Vinduer fra 18
Prisantydning4 600 000 kr
Nøkkelinfo
- Boligtype
- Leilighet
- Eieform
- Andel
- Soverom
- 1
- Internt bruksareal
- 55 m² (BRA-i)
- Bruksareal
- 59 m²
- Eksternt bruksareal
- 4 m² (BRA-e)
- Etasje
- 3
- Byggeår
- 1915
- Energimerking
- G - Oransje
- Rom
- 2
- Tomteareal
- 229 m² (eiet)
Fasiliteter
Balkong/Terrasse
Barnevennlig
Bredbåndstilknytning
Ingen gjenboere
Kabel-TV
Offentlig vann/kloakk
Peis/Ildsted
Rolig
Sentralt
Utsikt
Turterreng
Visning
Alle våre visninger har påmelding. På denne måten sikrer vi at megler har god oversikt og tid til å gi alle interessenter god oppfølging. Meld deg på visning ved å trykke på lenken visningspåmelding. Passer ikke tidspunktet, send megler en e-post og undersøk muligheten for privatvisning.
VisningspåmeldingOm boligen
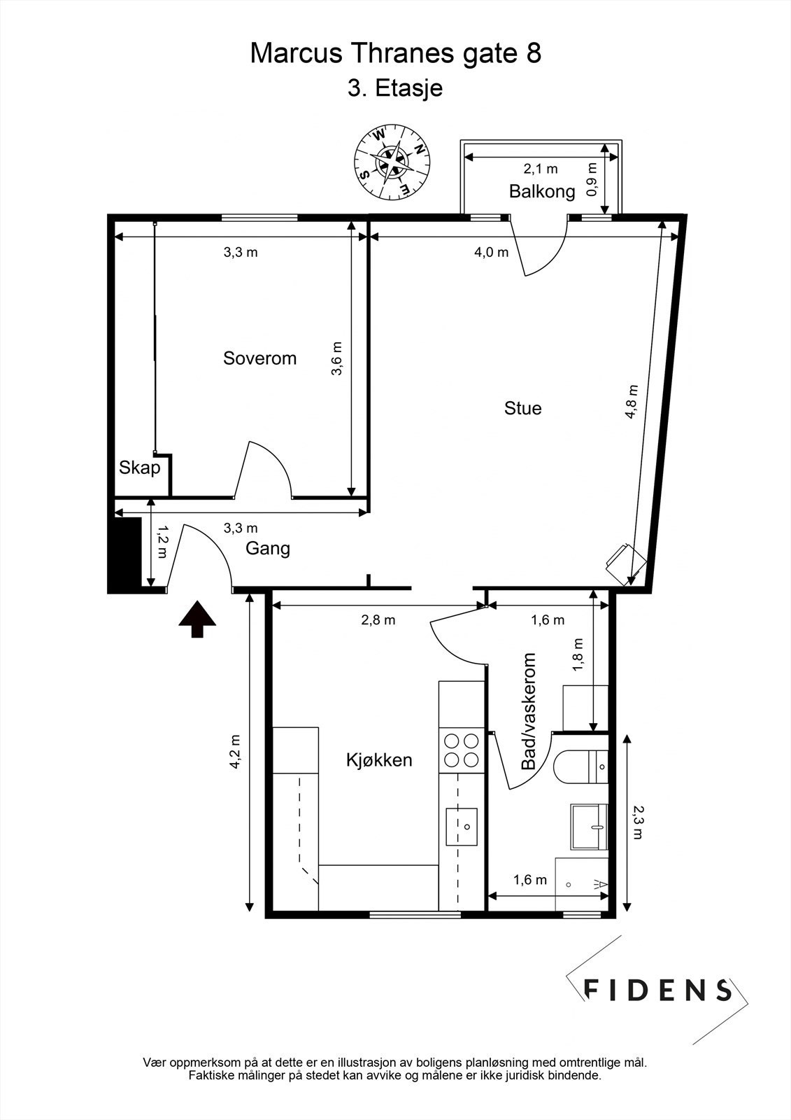
Nordvik v/Morten Hannestad har gleden av å presentere Marcus Thranes gate 8 - En sjarmerende, romslig og gjennomgående 2-roms med balkong. Leiligheten har en god beliggenhet i byggets 3. etasje, med store og funksjonelle rom. Her har du praktisk entrè, separat kjøkken med spiseplass, hyggelig stue med peisovn, romslig soverom og stort bad/vaskerom med nyere innredning.
Leiligheten ligger i en velholdt bygård på grensen mellom Øvre Grünerløkka og Torshov. Her bor du midt i smørøyet - med alt rett utenfor døren.
Leiligheten ligger i en velholdt bygård på grensen mellom Øvre Grünerløkka og Torshov. Her bor du midt i smørøyet - med alt rett utenfor døren.
- Vestvendt balkong
- Frodig og skjermet bakgård
- Vinduer fra 2018
- Veldrevet borettslag med god vedlikeholdshistorikk
- Varmtvann og internett ink
- IN-ordning
- Ved innfrielse av fellesgjelden, reduseres felleskostnadene til kr. 4.489,-
Velkommen!
NB: Knappen for å vise hele beskrivelsen har kun en visuell effekt.
NB: Knappen for å vise hele beskrivelsen har kun en visuell effekt.
Salgsoppgaven beskriver vesentlig og lovpålagt informasjon om eiendommen
Se komplett salgsoppgaveNyttige lenker
Nærområdet
Nordvik St.Hanshaugen
Annonseinformasjon
| FINN-kode | 362755090 |
|---|---|
| Sist endret | 31. okt. 2024 11:40 |
| Referanse | 5-0178/24 |
Annonsene kan være mangelfulle i forhold til lovpålagt opplysningsplikt. Før bindende avtale inngås oppfordres interessenter til å innhente komplett informasjon fra meglerforetaket, selger eller utleier.








































