Bildegalleri

Velkommen til Risør!
Moderne og praktisk 2-romsleilighet på bryggekanten i Risør med heis og fantastisk sjøutsikt
Prisantydning2 650 000 kr
Nøkkelinfo
- Boligtype
- Leilighet
- Eieform
- Eier (Selveier)
- Soverom
- 1
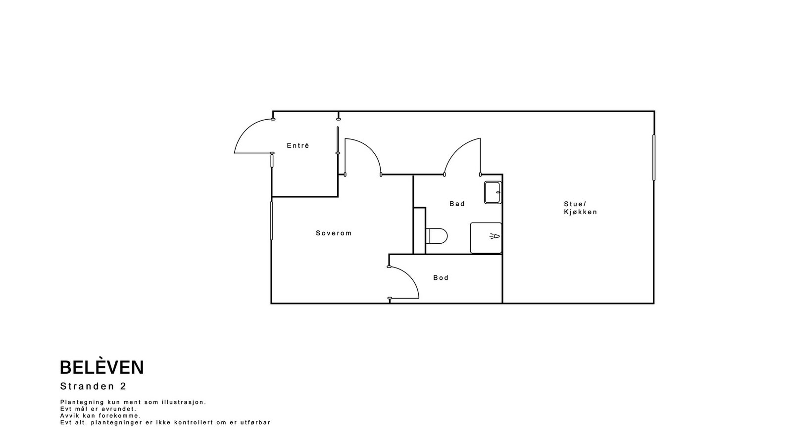
- Internt bruksareal
- 49 m² (BRA-i)
- Bruksareal
- 49 m²
- Etasje
- 2
- Byggeår
- 2016
- Energimerking
- C - Oransje
- Rom
- 2
- Tomteareal
- 136 m² (eiet)
Fasiliteter
Barnevennlig
Balkong/Terrasse
Fiskemulighet
Heis
Offentlig vann/kloakk
Ingen gjenboere
Parkett
Turterreng
Utsikt
Sentralt
Moderne
Rolig
Bademulighet
Balansert ventilasjon
Om boligen
Velkommen til denne sjønære 2-roms leiligheten i vakre og idylliske Risør. Her bor du med vakker utsikt mot Risørs skjærgård og et bredt utvalg av restauranter, kaféer og butikker rett utenfor døren.
Åpen kjøkken og stueløsning med et pent og lyst kjøkken. Fra de store vinduene kan du nyte den fantastiske utsikten mot skjærgården. Leiligheten er utstyrt med downlights i himlingen som skaper en behagelig atmosfære. Det flislagte badet har toalett, servant, dusj med glassvegger og speil med integrert belysning. Soverommet er romslig og gir god plass til oppbevaring. Man har også godt med oppbevaringsplass i innvendig bod, samt utvendig sportsbod. Det er heis i bygget. Det er opparbeidet en hyggelig felles uteplass hvor man kan nyte late dager i solen.
Dette er en drømmebolig for deg som ønsker en sentral og sjønær beliggenhet i idylliske Risør. Det er heis og varmekabler i oppgangen. Ingen boplikt.
Åpen kjøkken og stueløsning med et pent og lyst kjøkken. Fra de store vinduene kan du nyte den fantastiske utsikten mot skjærgården. Leiligheten er utstyrt med downlights i himlingen som skaper en behagelig atmosfære. Det flislagte badet har toalett, servant, dusj med glassvegger og speil med integrert belysning. Soverommet er romslig og gir god plass til oppbevaring. Man har også godt med oppbevaringsplass i innvendig bod, samt utvendig sportsbod. Det er heis i bygget. Det er opparbeidet en hyggelig felles uteplass hvor man kan nyte late dager i solen.
Dette er en drømmebolig for deg som ønsker en sentral og sjønær beliggenhet i idylliske Risør. Det er heis og varmekabler i oppgangen. Ingen boplikt.
NB: Knappen for å vise hele beskrivelsen har kun en visuell effekt.
NB: Knappen for å vise hele beskrivelsen har kun en visuell effekt.
Salgsoppgaven beskriver vesentlig og lovpålagt informasjon om eiendommen
Se komplett salgsoppgaveNærområdet
Belèven Eiendomsmegling
Annonsene kan være mangelfulle i forhold til lovpålagt opplysningsplikt. Før bindende avtale inngås oppfordres interessenter til å innhente komplett informasjon fra meglerforetaket, selger eller utleier.








