Bildegalleri

Velkommen til Hansgjerdet 1B!
Tiltalende og innholdsrik halvpart av tomannsbolig | Sydvendt uteområde | 3 soverom | Vedfyring og varmepumpe |
Nøkkelinfo
- Boligtype
- Tomannsbolig
- Eieform
- Eier (Selveier)
- Soverom
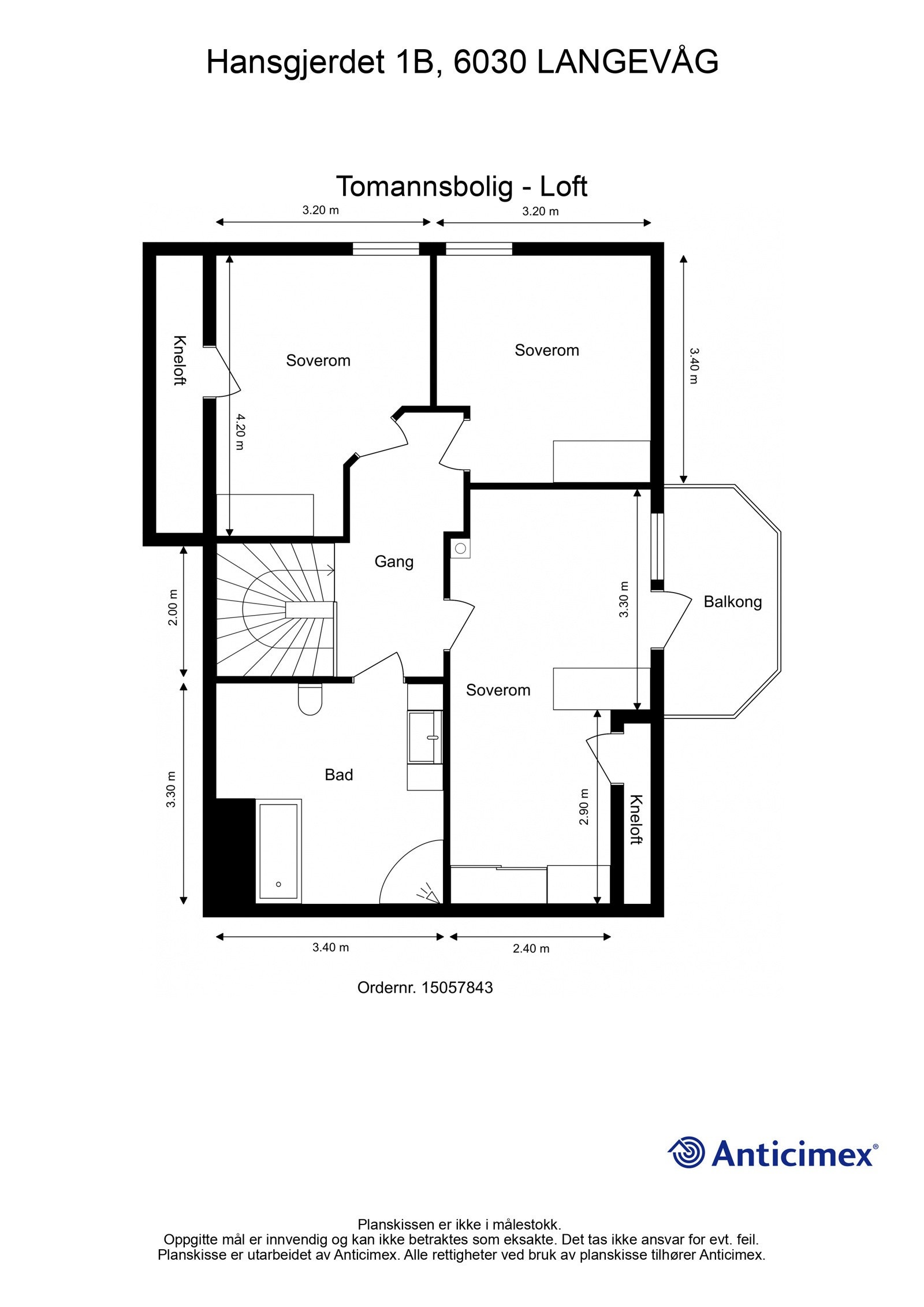
- 3
- Internt bruksareal
- 141 m² (BRA-i)
- Bruksareal
- 149 m²
- Eksternt bruksareal
- 8 m² (BRA-e)
- Balkong/Terrasse
- 37 m² (TBA)
- Byggeår
- 2001
- Energimerking
- C - Rød
- Tomteareal
- 2 964 m² (eiet)
Fasiliteter
Om boligen
Velkommen til Hansgjerdet 1B!
Denne boligen kan by på følgende kvaliteter:
- Beliggende i et rolig og familievennlig nabolag med kort avstand til barneskole og barnehage.
- Sydvendt uteområde opparbeidet med hage, terrasse og balkong.
- Lys og romslig stue med flere møbleringsalternativer. Fra stuen er det utgang til solrik terrasse.
- Lekkert og moderne kjøkken fra 2016 med flere integrerte hvitevarer.
- Romslig baderom utstyrt med dusjkabinett, badekar og gulvvarme.
- 3(4) soverom. Hovedsoverommet har tilgang til egen balkong.
- Praktisk gjestetoalett i hovedplan.
- Eget vaskerom med gulvvarme.
- Boligen varmes opp ved hjelp av vedfyring og varmepumpe.
- Godt med lagringsrom i kneloft og utvendig bod.
- Parkering på biloppstillingsplass eller i carport med montert EL-billader.
Velkommen til visning. Husk å melde deg på.
Salgsoppgaven beskriver vesentlig og lovpålagt informasjon om eiendommen
Se komplett salgsoppgaveNærområdet
EIE Eiendomsmegling Ålesund
Prisstatistikk
Hansgjerdet 1B
på annonsen
prisantydning per kvadratmeter
Prisfordeling
Pris per m² ligger 8 249 kr under snittet for tomannsboliger i Sula.
Grafen viser antall tomannsboliger solgt i Sula siste året fordelt på pris per m² - totalt 39 tomannsboliger
Antall boliger
Kvadratmeterpris tilsvarer prisantydning pluss fellesgjeld per kvadratmeter (p-rom eller BRA-i). Prisene i grafen er avrundet til nærmeste 1000 kr.
Annonseinformasjon
| FINN-kode | 362194302 |
|---|---|
| Sist endret | 08. des. 2024 11:59 |
| Referanse | 17240084 |
Annonsene kan være mangelfulle i forhold til lovpålagt opplysningsplikt. Før bindende avtale inngås oppfordres interessenter til å innhente komplett informasjon fra meglerforetaket, selger eller utleier.





























