Bildegalleri

Tomten strekker seg helt ned til fjæren.
Fagernes - Enebolig med utleie I Inneh. bl.a. 6 sov, 2 stuer, 2 kjøkken I Garasje I Stor tomt
Nøkkelinfo
- Boligtype
- Enebolig
- Eieform
- Eier (Selveier)
- Soverom
- 6
- Internt bruksareal
- 345 m² (BRA-i)
- Bruksareal
- 345 m²
- Eksternt bruksareal
- 88 m² (BRA-e)
- Balkong/Terrasse
- 39 m² (TBA)
- Byggeår
- 1894
- Rom
- 8
- Tomteareal
- 15 344 m² (eiet)
Fasiliteter
Visning
Om boligen
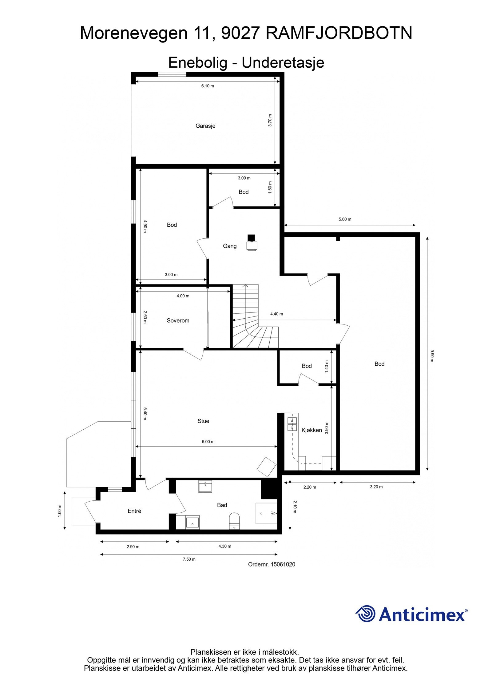
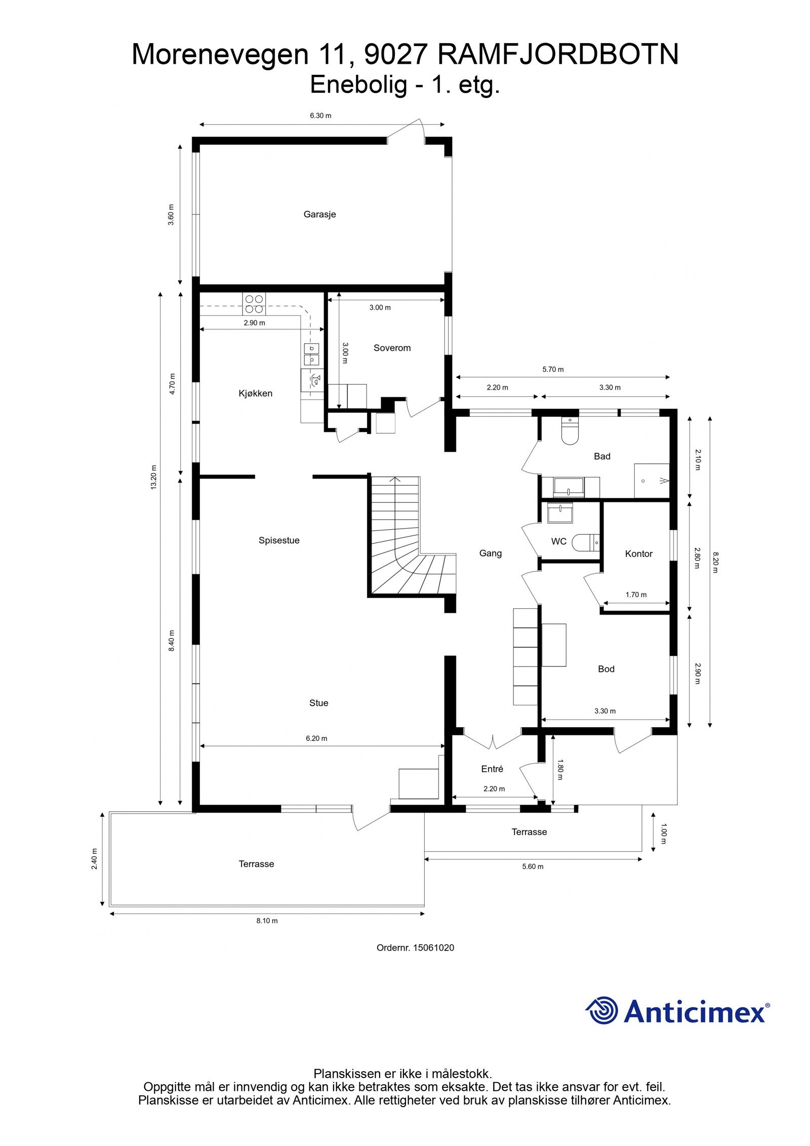
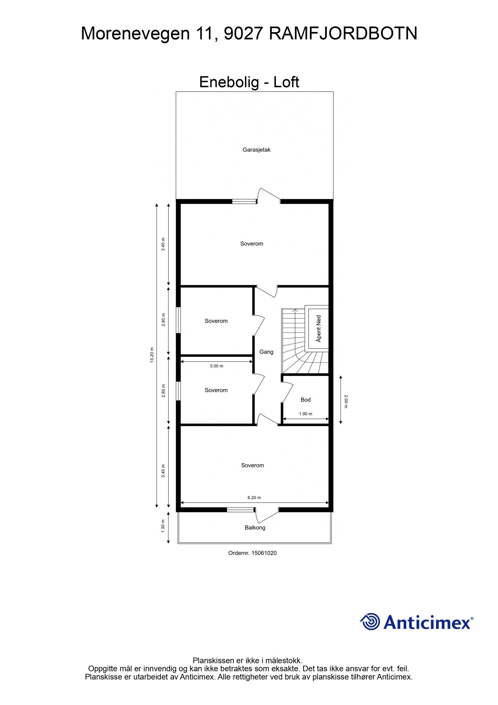
Enebolig med romslig 2 roms godkjent leilighet i u.etg. Beliggende på Fagernes ca.25 km fra Tromsø. Nærområdet legger til rette for mange aktiviteter bl.a. er det kunstgressbane, skogsveier, mulighet for toppturer og skiløyper. Aktivt idrettslag. Delvis opparbeidet hage med plen og beplantning. Stort potensiale for den kreative med grønnefingrer. Meget innholdsrik med. bl.a. 6 soverom, 2 stuer, 2 kjøkken m.m. Garasje på 22 kvm. ellers mange biloppstillingsplasser. Tomteareal 15 343. ( flere teiger se kart) Tomten rundt boligen er regulert til boligformål. Deler av boligen består av tømmer. Renovering og tilbygg mot øst samt underetasje er fra 1983. Boligen ligger nord for veikrysset på Fagernes i Ramfjorden mot Tromsø. Nært til barnehage, skole og kiosk. Gode lys- og solforhold. Velkommen
Salgsoppgaven beskriver vesentlig og lovpålagt informasjon om eiendommen
Se komplett salgsoppgaveNærområdet
EIE eiendomsmegling Tromsø
Annonseinformasjon
| FINN-kode | 362133910 |
|---|---|
| Sist endret | 27. des. 2025 15:45 |
| Referanse | 41240075 |
Annonsene kan være mangelfulle i forhold til lovpålagt opplysningsplikt. Før bindende avtale inngås oppfordres interessenter til å innhente komplett informasjon fra meglerforetaket, selger eller utleier.







































