Bildegalleri

Velkommen til Bergveien 57
Solgt
Ankenes
SOLGT - KONTAKT MEGLER DERSOM DU SKAL SELGE BOLIG - Vertikaldelt bolig med flott utsikt, hage og garasje
Prisantydning3 300 000 kr
Nøkkelinfo
- Boligtype
- Tomannsbolig
- Eieform
- Selveier
- Soverom
- 3
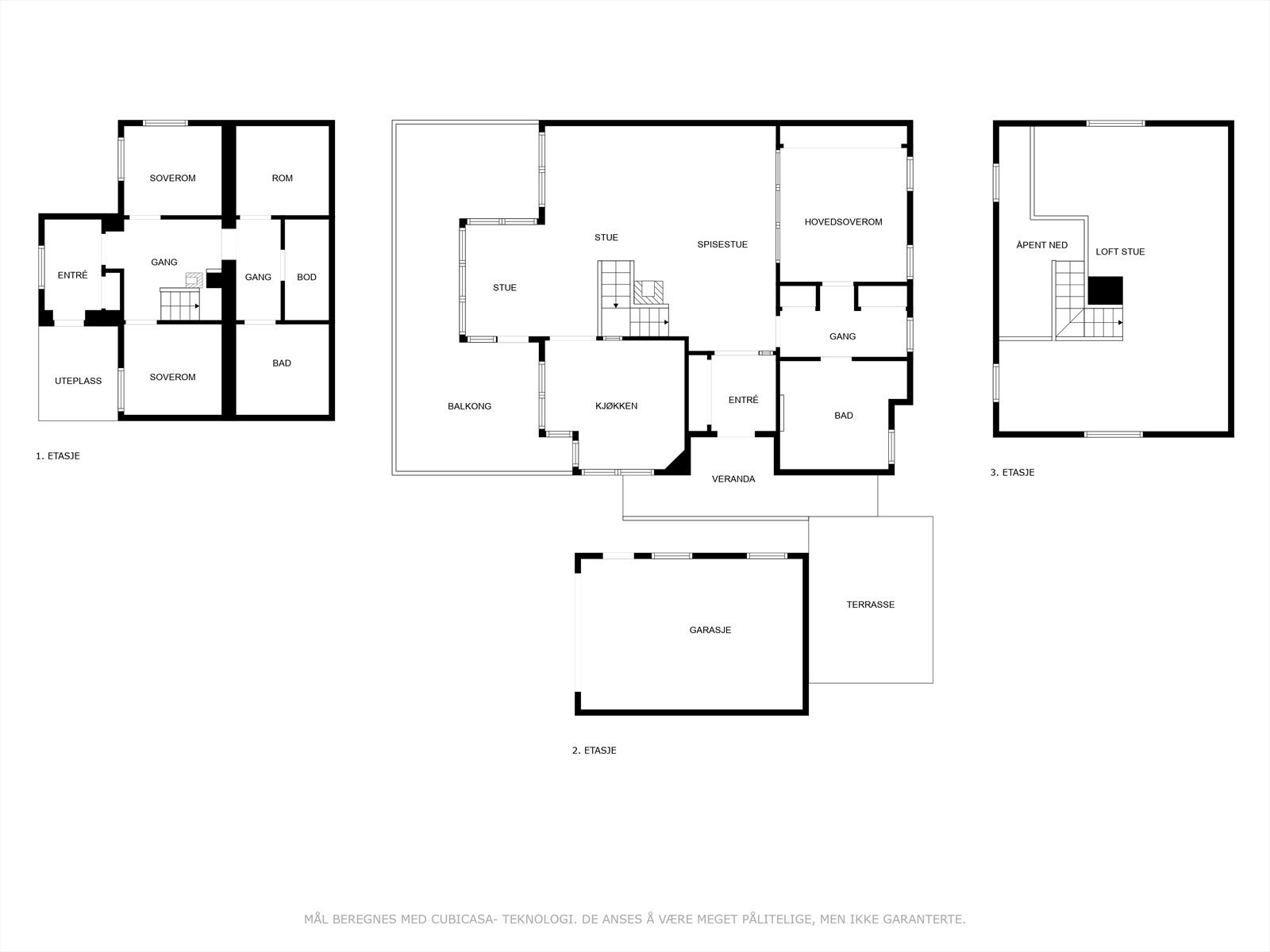
- Internt bruksareal
- 158 m² (BRA-i)
- Bruksareal
- 180 m²
- Eksternt bruksareal
- 22 m² (BRA-e)
- Balkong/Terrasse
- 57 m² (TBA)
- Etasje
- 2
- Byggeår
- 1952
- Energimerking
- G - Oransje
- Rom
- 5
- Tomteareal
- 503 m² (festet)
- Festeavgift
- 2 817 kr
Fasiliteter
Alpinanlegg
Balkong/Terrasse
Barnevennlig
Garasje/P-plass
Hage
Peis/Ildsted
Rolig
Sentralt
Utsikt
Turterreng
Lademulighet
Om boligen
Eiendomsmegler Ingve Hilstad hos Jenssen & Bolle Eiendomsmegling presenterer her Bergveien 57:
Denne boligen ligger sentralt på Ankenes, noe som gjør hverdagens gjøremål enklere!
Barna går selv til skolen, treninger og lekekamerater. De større barna som er begynt på ungdoms- og videregående skole tar bussen til sentrum fra busstoppet rett nede i gaten.
Boligen ble i ca. 2007 ombygget og pusset opp. Oppgraderinger er derfor gjort i perioden fra 2007 til 2010.
Stuen er lun og god med teppegulv. Kjøkken i høyglansfronter i en dyp rød tone, kombinert med børstet stål og glass.
Det er to bad i boligen, det er også et loft som i dag benyttes som en loftsstue.
Flotte uteområder, solrikt og god utsikt.
Tesla el-billader montert ved garasjen.
Kan dette være noe for deg?
Ta kontakt for visning!
Denne boligen ligger sentralt på Ankenes, noe som gjør hverdagens gjøremål enklere!
Barna går selv til skolen, treninger og lekekamerater. De større barna som er begynt på ungdoms- og videregående skole tar bussen til sentrum fra busstoppet rett nede i gaten.
Boligen ble i ca. 2007 ombygget og pusset opp. Oppgraderinger er derfor gjort i perioden fra 2007 til 2010.
Stuen er lun og god med teppegulv. Kjøkken i høyglansfronter i en dyp rød tone, kombinert med børstet stål og glass.
Det er to bad i boligen, det er også et loft som i dag benyttes som en loftsstue.
Flotte uteområder, solrikt og god utsikt.
Tesla el-billader montert ved garasjen.
Kan dette være noe for deg?
Ta kontakt for visning!
NB: Knappen for å vise hele beskrivelsen har kun en visuell effekt.
NB: Knappen for å vise hele beskrivelsen har kun en visuell effekt.
Salgsoppgaven beskriver vesentlig og lovpålagt informasjon om eiendommen
Se komplett salgsoppgaveNyttige lenker
Nærområdet
JENSSEN & BOLLE EIENDOMSMEGLING AS
Jenssen & Bolle Eiendomsmegling
Prisstatistikk
Bergveien 57
2 777 klikk
på annonsen
20 886 kr
prisantydning per kvadratmeter
Prisfordeling
Pris per m² ligger 114 kr under snittet for tomannsboliger i Narvik.
Grafen viser antall tomannsboliger solgt i Narvik siste året fordelt på pris per m² - totalt 43 tomannsboliger
Antall boliger
Kvadratmeterpris tilsvarer prisantydning pluss fellesgjeld per kvadratmeter (p-rom eller BRA-i). Prisene i grafen er avrundet til nærmeste 1000 kr.
Annonseinformasjon
| FINN-kode | 361544278 |
|---|---|
| Sist endret | 27. sep. 2024 10:09 |
| Referanse | JOB1.24101 |
Annonsene kan være mangelfulle i forhold til lovpålagt opplysningsplikt. Før bindende avtale inngås oppfordres interessenter til å innhente komplett informasjon fra meglerforetaket, selger eller utleier.










































