Bildegalleri

Maiken B. Paulsen v/ EiendomsMegler 1 ønsker velkommen til Kirkeveien 315 B!
Skjerve/Nøtterøy
Attraktiv enebolig fra 2022 med høy standard og flotte fargevalg | 5 soverom | Dobbelgarasje
Prisantydning6 790 000 kr
Nøkkelinfo
- Boligtype
- Enebolig
- Eieform
- Eier (Selveier)
- Soverom
- 5
- Internt bruksareal
- 153 m² (BRA-i)
- Bruksareal
- 190 m²
- Eksternt bruksareal
- 37 m² (BRA-e)
- Balkong/Terrasse
- 19 m² (TBA)
- Byggeår
- 2022
- Energimerking
- B - Oransje
- Rom
- 6
- Tomteareal
- 576 m² (eiet)
Fasiliteter
Balkong/Terrasse
Garasje/P-plass
Offentlig vann/kloakk
Peis/Ildsted
Visning
Ønsker du å delta på visningen ber vi deg melde deg på slik at vi vet at du kommer. Da kan vi bistå alle best mulig og gi deg tiden du trenger på visningen. Kontakt gjerne megler før visning hvis du har spørsmål. Visningen avholdes bare dersom det er påmeldte. Visninger med ingen påmeldinger seneste 2-to-timer før annonsert oppstartstidspunkt avlyses. Hvis det ikke er oppsatt visningstidspunkt eller tidspunkt ikke passer, kontakt megler
VisningspåmeldingOm boligen
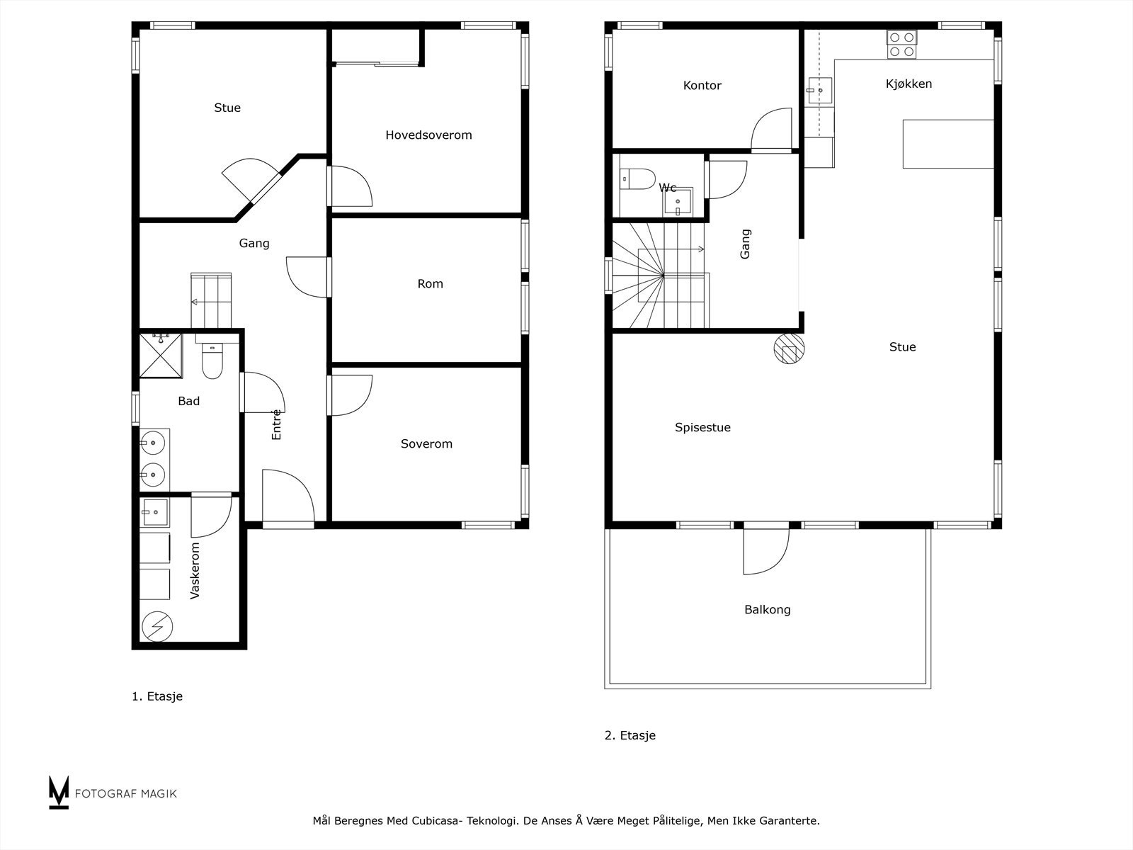
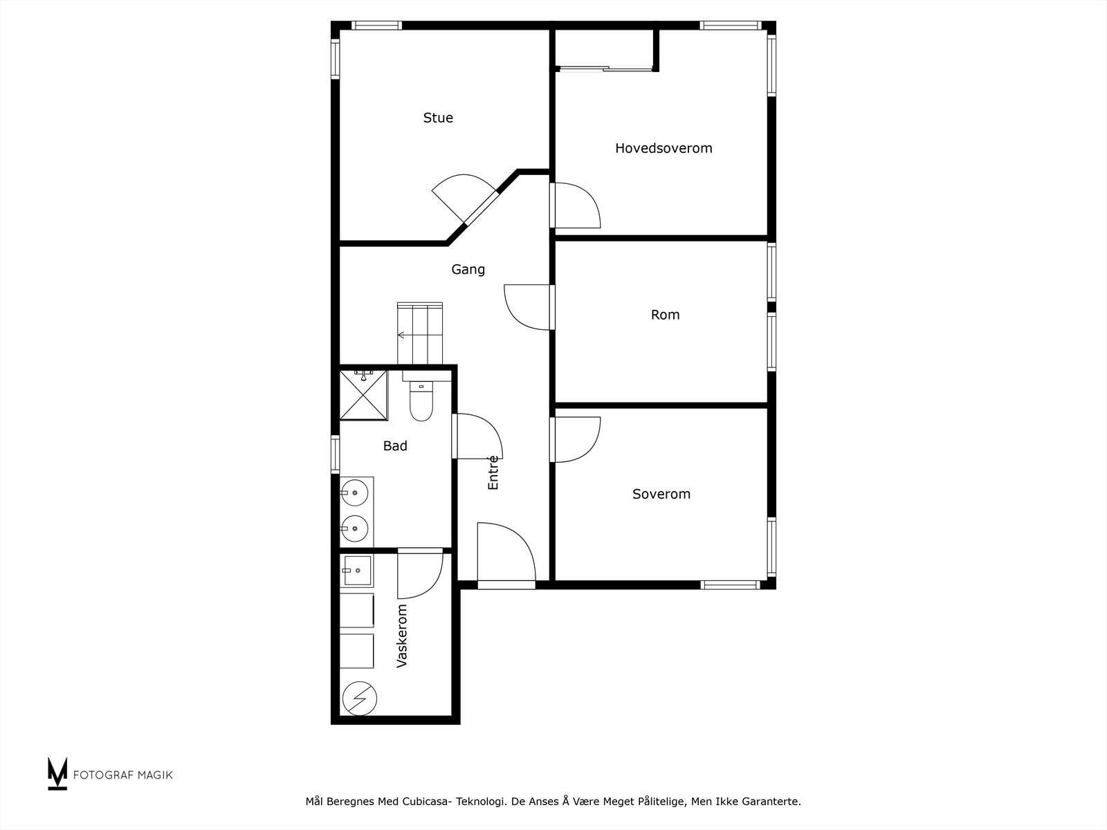
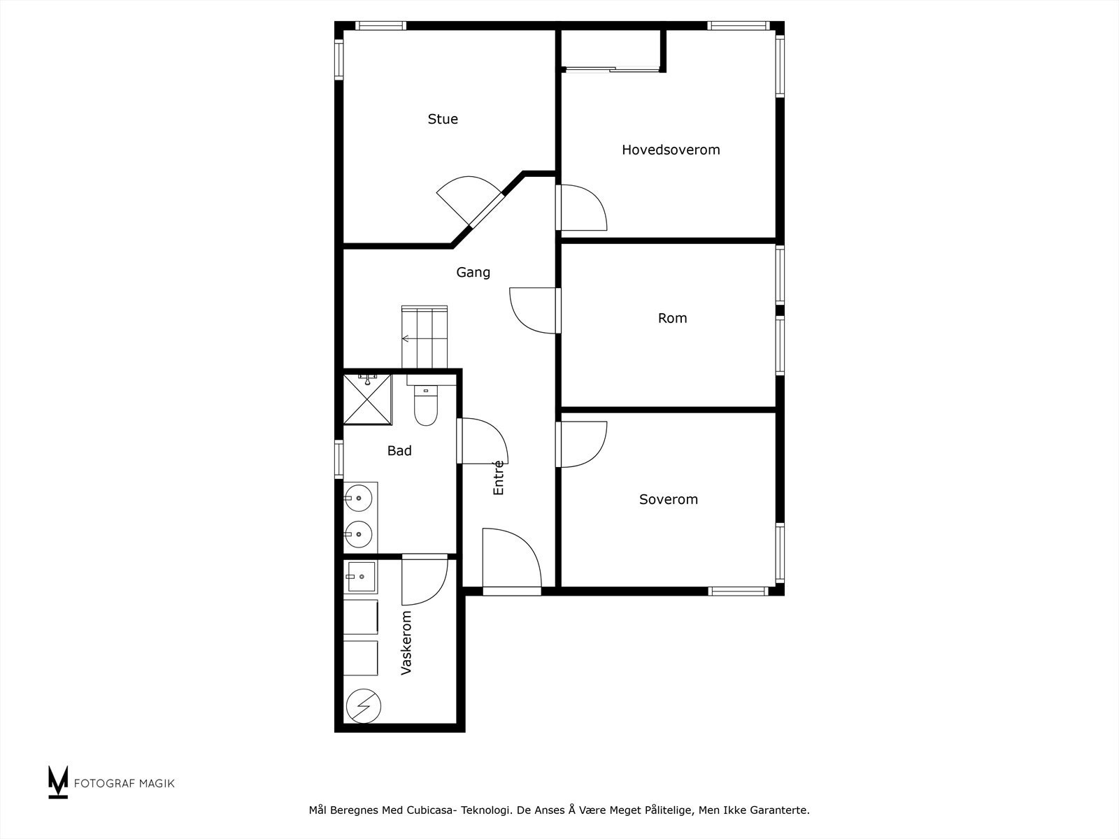
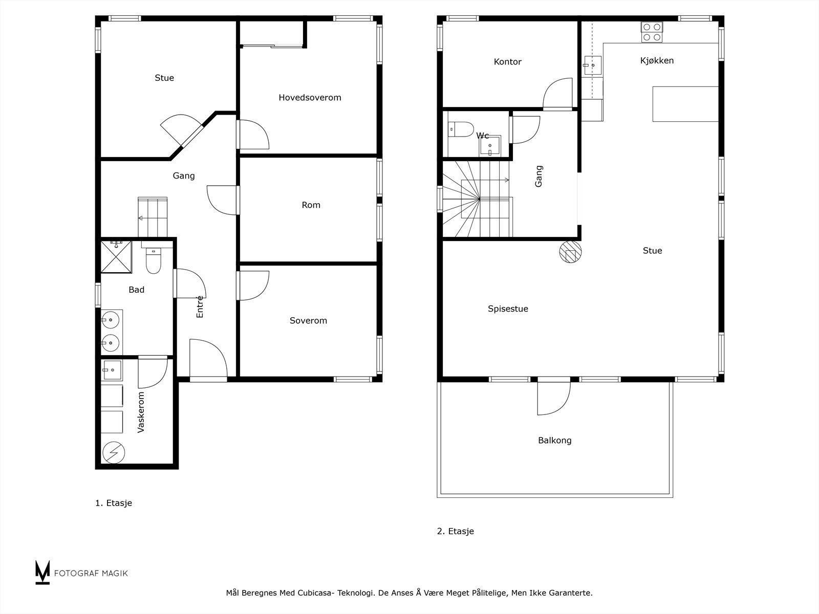
Dette er en svært flott og luftig funkisbolig fra 2022 over to plan. Boligen holder en høy standard med eksklusive materialvalg. Boligen kan blant annet by på hele fem soverom, flott bad og kjøkken og dobbelgarasje.
Eneboligen er oppført i tre over støpt plate i 2022.
Bygget har valmtak tekket med dobbeltkrum betongstein, og er kledd utvendig med liggende trekledning. Vinduer av tre med trelags glass. Det er montert el-billader.
Eneboligen ligger i landlige omgivelser på Skjerve. Området har nærhet til skoler, barnehager og offentlig kommunikasjon. Borgheim ligger ca. 3 km unna med dagligvarebutikk, bakeri og frisør, og det er ca. 8 km til Tønsberg med alle bymessige fasiliteter. Det er ellers kort vei til idrettshall, golfbane, ridesenter og treningssenter.
Eneboligen er oppført i tre over støpt plate i 2022.
Bygget har valmtak tekket med dobbeltkrum betongstein, og er kledd utvendig med liggende trekledning. Vinduer av tre med trelags glass. Det er montert el-billader.
Eneboligen ligger i landlige omgivelser på Skjerve. Området har nærhet til skoler, barnehager og offentlig kommunikasjon. Borgheim ligger ca. 3 km unna med dagligvarebutikk, bakeri og frisør, og det er ca. 8 km til Tønsberg med alle bymessige fasiliteter. Det er ellers kort vei til idrettshall, golfbane, ridesenter og treningssenter.
NB: Knappen for å vise hele beskrivelsen har kun en visuell effekt.
NB: Knappen for å vise hele beskrivelsen har kun en visuell effekt.
Salgsoppgaven beskriver vesentlig og lovpålagt informasjon om eiendommen
Se komplett salgsoppgaveNyttige lenker
Nærområdet
EiendomsMegler 1 Tønsberg
En del av Sparebank 1 Sør-Norge
Annonseinformasjon
| FINN-kode | 359005135 |
|---|---|
| Sist endret | 24. feb. 2026 15:00 |
| Referanse | 2871250039 |
Annonsene kan være mangelfulle i forhold til lovpålagt opplysningsplikt. Før bindende avtale inngås oppfordres interessenter til å innhente komplett informasjon fra meglerforetaket, selger eller utleier.






































