Bildegalleri

EIE eiendomsmegling ved Daniel Bruce har gleden av å presentere Tellefsens gate 14! Nå har du muligheten til å sikre deg en svært delikat 2-roms selveierleilighet på populære Øya!
Lekker 2-roms selveierleilighet fra 2019 | Perfekt førstegangskjøp | Fjernvarme | 2 boder | Gangavstand til NTNU
Nøkkelinfo
- Boligtype
- Leilighet
- Eieform
- Eier (Selveier)
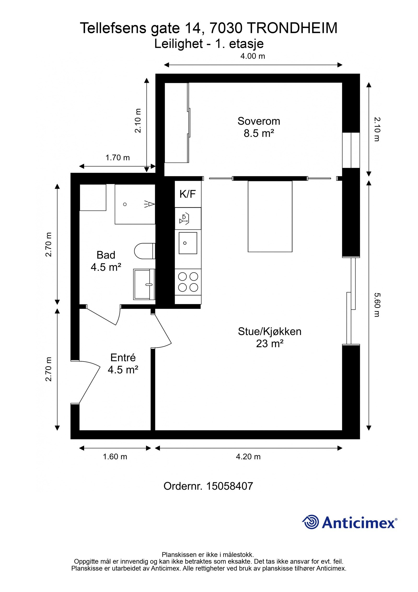
- Soverom
- 1
- Internt bruksareal
- 44 m² (BRA-i)
- Bruksareal
- 52 m²
- Eksternt bruksareal
- 8 m² (BRA-e)
- Etasje
- 1
- Byggeår
- 2019
- Energimerking
- C - Mørkegrønn
- Tomt
- Eiet
Fasiliteter
Om boligen
EIE eiendomsmegling ved Daniel Bruce har gleden av å presentere Tellefsens gate 14! Nå har du muligheten til å sikre deg en svært delikat 2-roms selveierleilighet. Leiligheten har en svært attraktiv beliggenhet nært studiesteder, samt alt av fasiliteter og servicetilbud rett utenfor døren. Leiligheten ble ferdigstilt i 2019 og består av tidsriktige og gode materialvalg.
Kvaliteter:
- Perfekt førstegangskjøp/utleieobjekt
- Lave felleskostnader som inkl. bl.a. fjernvarme, tv og internett
- Rålekkert baderom fra byggeår (2019) med varme i gulv og opplegg til vaskemaskin
- Stilrent kjøkken fra HTH med integrerte hvitevarer
- Mulighet for leie av parkeringsplass i kjeller
- 2 boder i kjeller
- To felles takterrasser med fantastiske solforhold ''døgnet rundt'' på sommerstid
- Heis
- Nærhet til St.Olavs og NTNU Gløshaugen
Salgsoppgaven beskriver vesentlig og lovpålagt informasjon om eiendommen
Se komplett salgsoppgaveNærområdet
EIE eiendomsmegling Trondheim sentrum
Prisstatistikk
Tellefsens gate 14
på annonsen
prisantydning per kvadratmeter
Prisfordeling
Pris per m² ligger 13 408 kr over snittet for leiligheter i Trondheim Sentrum.
Grafen viser antall leiligheter solgt i Trondheim Sentrum siste året fordelt på pris per m² - totalt 856 leiligheter
Antall boliger
Kvadratmeterpris tilsvarer prisantydning pluss fellesgjeld per kvadratmeter (p-rom eller BRA-i). Prisene i grafen er avrundet til nærmeste 1000 kr.
Annonseinformasjon
| FINN-kode | 358041711 |
|---|---|
| Sist endret | 02. nov. 2024 14:09 |
| Referanse | 133240141 |
Annonsene kan være mangelfulle i forhold til lovpålagt opplysningsplikt. Før bindende avtale inngås oppfordres interessenter til å innhente komplett informasjon fra meglerforetaket, selger eller utleier.





























