Bildegalleri

Lokalmegler Malin Goa v/ Nordvik Lillestrøm presenterer her en svært innbydende 3-roms toppleilighet i Blomstervegen!
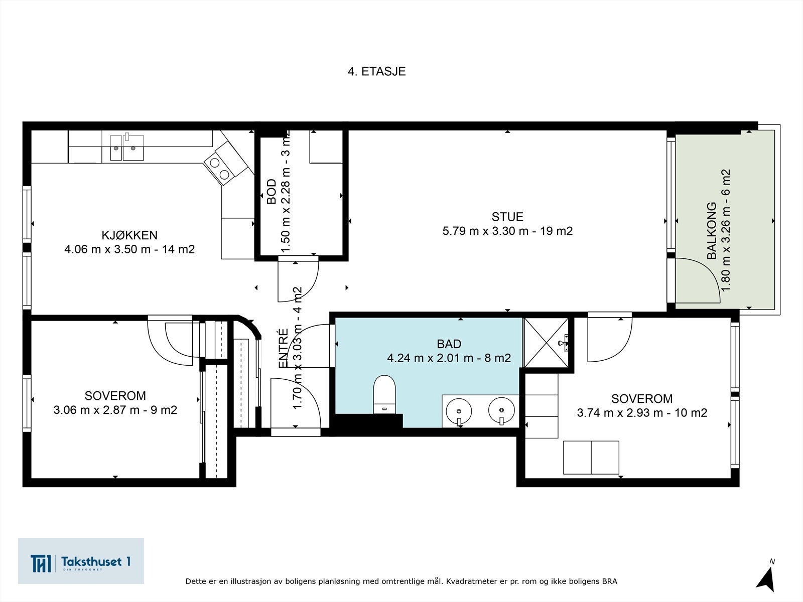
Velholdt og innbydende 3-roms toppleilighet - Overbygd, lun balkong med utsikt - Varmtvann inkl. - Veldrevet borettslag
Nøkkelinfo
- Boligtype
- Leilighet
- Eieform
- Andel
- Soverom
- 2
- Internt bruksareal
- 71 m² (BRA-i)
- Bruksareal
- 73 m²
- Eksternt bruksareal
- 2 m² (BRA-e)
- Balkong/Terrasse
- 6 m² (TBA)
- Etasje
- 4
- Byggeår
- 1972
- Energimerking
- G - Rød
- Rom
- 3
- Tomteareal
- 49 622 m² (eiet)
Fasiliteter
Om boligen
Nordvik v/ Malin Goa presenterer en innbydende 3-roms toppleilighet i et veldrevet og populært borettslag. Beliggenheten er særdeles attraktiv, med nærhet til busstopp, lekeplasser og turområder, samt kort vei til skoler, barnehager og butikker. Videre kan eiendommen skilte med velstelte fellesarealer, inkludert varmtvann og en overbygd, østvendt balkong ved stuen.
Kort fortalt:
- Romslig og innbydende leilighet med god møbleringsfrihet
- Stort, tidløst kjøkken med integrerte hvitevarer og spiseplass
- Delikat, flislagt baderom
- To gode soverom med garderober
- Tidsmessige farge- og materialvalg
- Lun balkong med fantastisk utsikt
- Lagringsplass i en innebod og i to kjellerboder
- Kort vei til offentlig kommunikasjon
- Kort avstand til Lillestrøm
Salgsoppgaven beskriver vesentlig og lovpålagt informasjon om eiendommen
Se komplett salgsoppgaveNyttige lenker
Nærområdet
Nordvik Lillestrøm
Prisstatistikk
Blomstervegen 35A
på annonsen
prisantydning per kvadratmeter
Prisfordeling
Pris per m² ligger 2 834 kr under snittet for leiligheter i Rælingen.
Grafen viser antall leiligheter solgt i Rælingen siste året fordelt på pris per m² - totalt 274 leiligheter
Antall boliger
Kvadratmeterpris tilsvarer prisantydning pluss fellesgjeld per kvadratmeter (p-rom eller BRA-i). Prisene i grafen er avrundet til nærmeste 1000 kr.
Annonseinformasjon
| FINN-kode | 357912020 |
|---|---|
| Sist endret | 25. des. 2024 16:04 |
| Referanse | 60-0201/24 |
Annonsene kan være mangelfulle i forhold til lovpålagt opplysningsplikt. Før bindende avtale inngås oppfordres interessenter til å innhente komplett informasjon fra meglerforetaket, selger eller utleier.
























