Bildegalleri

Fasade
Eldre enebolig på Bjørnli. Barnevennlig og fredelig boligområde like ved Løkken.
Prisantydning1 050 000 kr
Nøkkelinfo
- Boligtype
- Enebolig
- Eieform
- Eier (Selveier)
- Soverom
- 2
- Internt bruksareal
- 93 m² (BRA-i)
- Bruksareal
- 93 m²
- Balkong/Terrasse
- 10 m² (TBA)
- Etasje
- 3
- Byggeår
- 1917
- Energimerking
- G - Oransje
- Tomteareal
- 1 091 m² (eiet)
Om boligen
Eiendommen ligger på Bjørnli. Bjørnli er et idyllisk område bestående av stort sett eldre småhusbebyggelse fra gruvetiden på Løkken. Det er ca. 4 km til Løkken sentrum. Her har man butikker, skole, bank/forsikring m.m. På Bjørnli har man nyere barnehage på Vemyrstoppen. Det er skoleskyss til Løkken (Montessori skole) og til felles skole i Meldal.
Boligen er fra ca. 1917. Det ble opplyst da dagens eiere kjøpte eiendommen i 2014 at kjøkkeninnredningen ble skiftet i ca. 2011. Etter kjøp er det skiftet taktekke, nytt sikringsskap og satt inn ny VVB. Se rapport fra takstmann i prospektet for info.
Boligen inneholder:
Kjeller: Innredet rom, vaskekjeller, badstue, bad og kott.
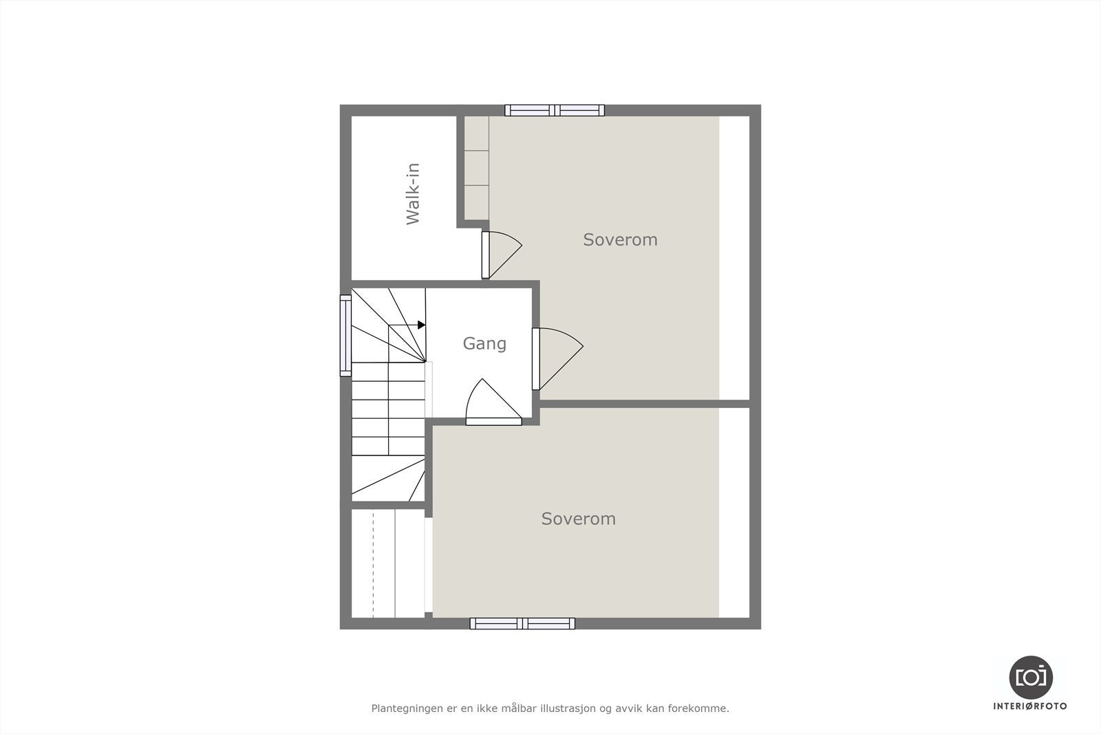
1. etg: Gang, stue og kjøkken.
2. etg: Gang og 2 soverom.
Det er i tillegg halvpart av uthus på eiendommen.
Boligen er fra ca. 1917. Det ble opplyst da dagens eiere kjøpte eiendommen i 2014 at kjøkkeninnredningen ble skiftet i ca. 2011. Etter kjøp er det skiftet taktekke, nytt sikringsskap og satt inn ny VVB. Se rapport fra takstmann i prospektet for info.
Boligen inneholder:
Kjeller: Innredet rom, vaskekjeller, badstue, bad og kott.
1. etg: Gang, stue og kjøkken.
2. etg: Gang og 2 soverom.
Det er i tillegg halvpart av uthus på eiendommen.
NB: Knappen for å vise hele beskrivelsen har kun en visuell effekt.
NB: Knappen for å vise hele beskrivelsen har kun en visuell effekt.
Salgsoppgaven beskriver vesentlig og lovpålagt informasjon om eiendommen
Se komplett salgsoppgaveNærområdet
Aktiv Orkla
Annonseinformasjon
| FINN-kode | 357620975 |
|---|---|
| Sist endret | 20. jan. 2026 10:07 |
| Referanse | 1702240168 |
Annonsene kan være mangelfulle i forhold til lovpålagt opplysningsplikt. Før bindende avtale inngås oppfordres interessenter til å innhente komplett informasjon fra meglerforetaket, selger eller utleier.



































