Bildegalleri

En toppleilighet i hjertet av Trondheim med high-end standard fra 2020-21 over to etasjer med høyt fokus på moderne detaljer, materialvalg, plassbygde løsninger og høy hverdagslig komfort!
Trondheim sentrum/Midtbyen
TOPPLEILIGHET MED EKSKLUSIV STANDARD. Hybeldel. Vannbåren varme i gulv. Takterrasse + 2 balkonger. Heis og p-kjeller.
Prisantydning12 190 000 kr
Nøkkelinfo
- Boligtype
- Leilighet
- Eieform
- Eier (Selveier)
- Soverom
- 2
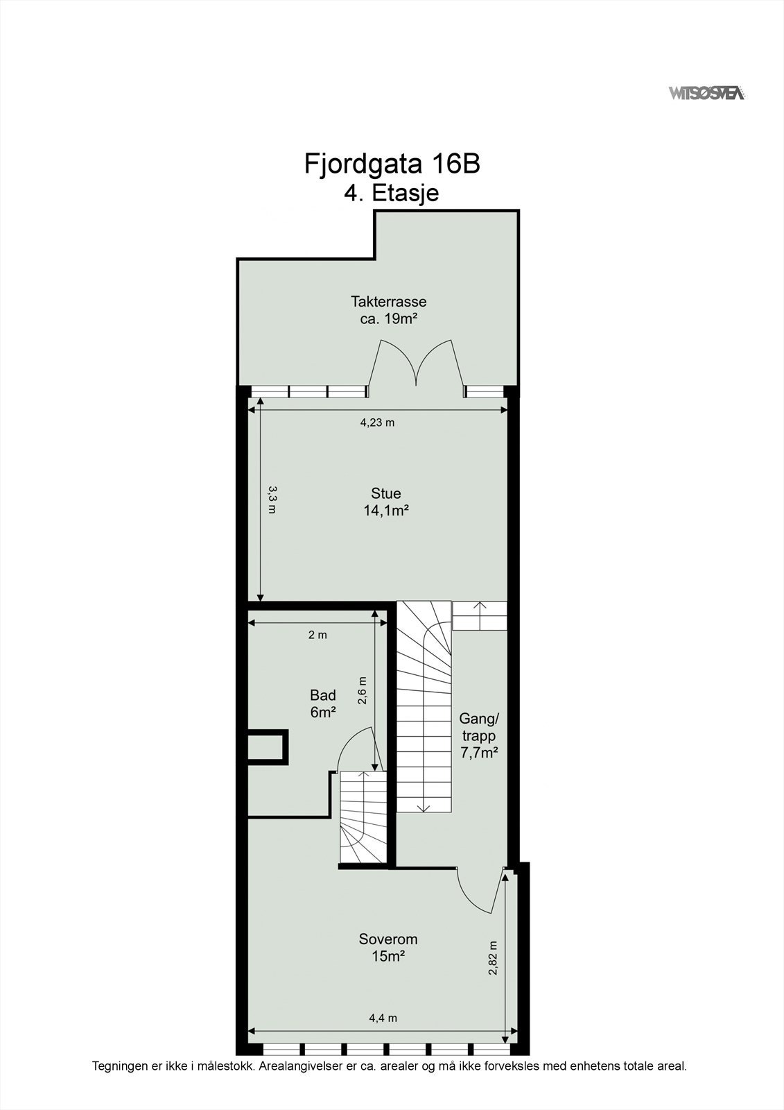
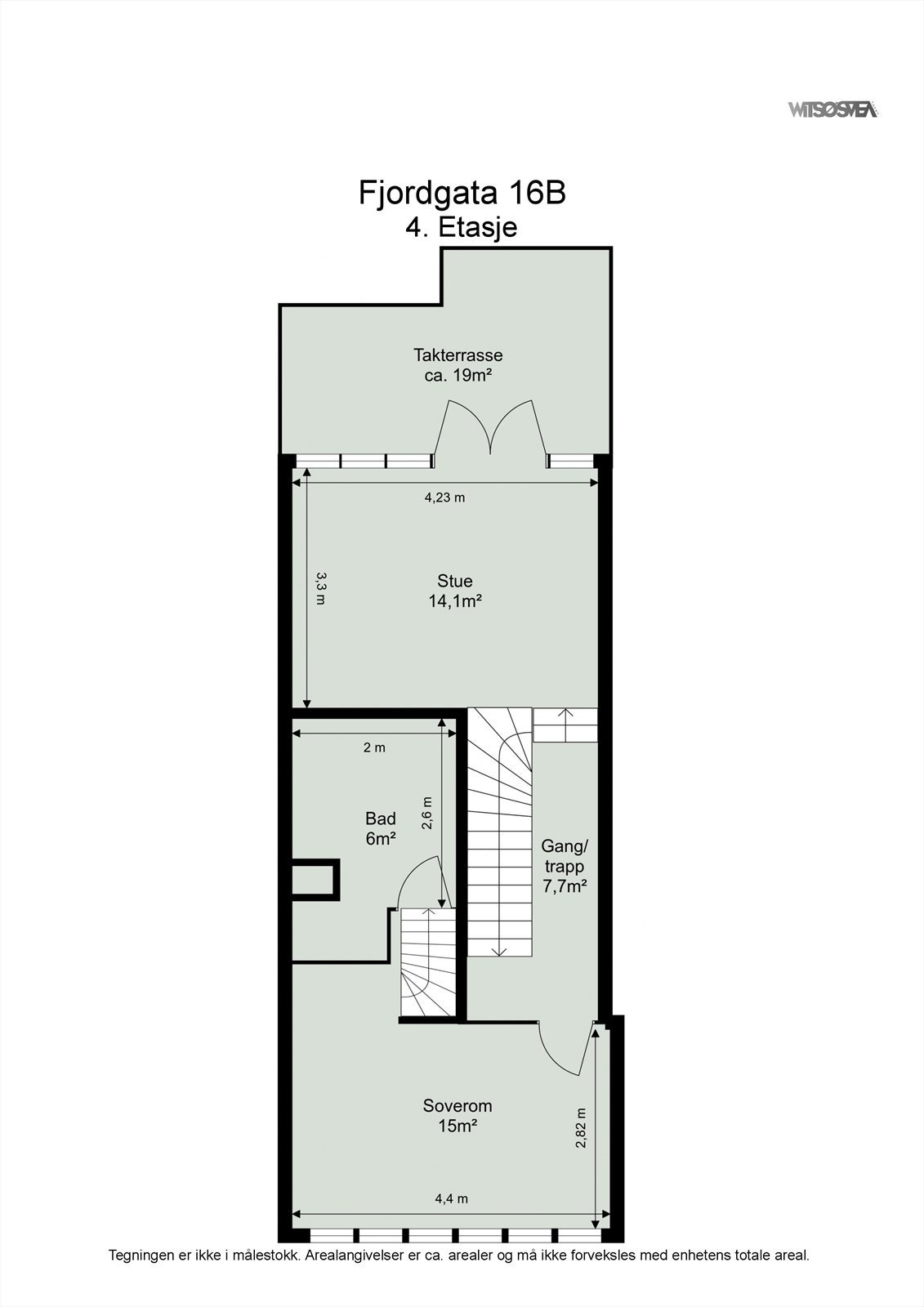
- Internt bruksareal
- 118 m² (BRA-i)
- Bruksareal
- 122 m²
- Eksternt bruksareal
- 4 m² (BRA-e)
- Balkong/Terrasse
- 27 m² (TBA)
- Etasje
- 3
- Byggeår
- 1998
- Energimerking
- D - Mørkegrønn
- Rom
- 5
- Tomteareal
- 1 762 m² (eiet)
Fasiliteter
Takterrasse
Balkong/Terrasse
Bredbåndstilknytning
Garasje/P-plass
Heis
Kjæledyr tillatt
Offentlig vann/kloakk
Parkett
Sentralt
Utsikt
Vaktmester-/vektertjeneste
Lademulighet
Balansert ventilasjon
Visning
Velkommen til visning! Meld deg på ved å trykke "visningspåmelding" i våre boligannonser. Visning med megler til stede vil ikke bli avholdt uten påmeldinger. Ta gjerne kontakt med megler i forkant av visningen om du har spørsmål.
VisningspåmeldingOm boligen
Velkommen til en unik bryggeleilighet beliggende i toppetasjen av Kanalgården. Totalrehabilitert i 2020-2021 med høyt fokus på detaljer, materialvalg, plassbygde løsninger og høy hverdagslig komfort!
Noen av leilighetens kvaliteter:
- Belysning fra Stokkan lys
- Fiskebeinsparket fra Boen
- Italienske fliser 1,2m x 1,2m
- Møbelsnekret garderober og baderomsmøbler
- Svevende trapp med innebygd håndløper
- Innebygd høyttalersystem fra HIFI-klubben (Sonos)
- Vannbåren varme i gulv
- Balansert ventilasjon
- 3 terrasser/balkonger
- Stor p-plass med EL-bil-lader i kjeller
- Hybeldel som enkelt kan fjernes til fordel for to ekstra soverom
- Heis
Se salgsoppgave for komplett liste over alle detaljer. Det vil kun bli avholdt private visninger, meld deg på ved å trykke "visningspåmelding"
Noen av leilighetens kvaliteter:
- Belysning fra Stokkan lys
- Fiskebeinsparket fra Boen
- Italienske fliser 1,2m x 1,2m
- Møbelsnekret garderober og baderomsmøbler
- Svevende trapp med innebygd håndløper
- Innebygd høyttalersystem fra HIFI-klubben (Sonos)
- Vannbåren varme i gulv
- Balansert ventilasjon
- 3 terrasser/balkonger
- Stor p-plass med EL-bil-lader i kjeller
- Hybeldel som enkelt kan fjernes til fordel for to ekstra soverom
- Heis
Se salgsoppgave for komplett liste over alle detaljer. Det vil kun bli avholdt private visninger, meld deg på ved å trykke "visningspåmelding"
NB: Knappen for å vise hele beskrivelsen har kun en visuell effekt.
NB: Knappen for å vise hele beskrivelsen har kun en visuell effekt.
Salgsoppgaven beskriver vesentlig og lovpålagt informasjon om eiendommen
Se komplett salgsoppgaveNyttige lenker
Nærområdet
DNB Eiendom AS
Fra hjem til hjem
Annonseinformasjon
| FINN-kode | 357084117 |
|---|---|
| Sist endret | 23. jan. 2026 12:24 |
| Referanse | 808240069 |
Annonsene kan være mangelfulle i forhold til lovpålagt opplysningsplikt. Før bindende avtale inngås oppfordres interessenter til å innhente komplett informasjon fra meglerforetaket, selger eller utleier.











































