Bildegalleri

Velkommen til Øvre Skurubergsveg 82!
Sørskogbygda - NY PRIS! Enebolig over ett plan beliggende i rolige og familievennlige omgivelser.
Prisantydning1 490 000 kr
Nøkkelinfo
- Boligtype
- Enebolig
- Eieform
- Eier (Selveier)
- Soverom
- 2
- Internt bruksareal
- 84 m² (BRA-i)
- Bruksareal
- 92 m²
- Eksternt bruksareal
- 8 m² (BRA-e)
- Balkong/Terrasse
- 28 m² (TBA)
- Byggeår
- 1976
- Energimerking
- G - Rød
- Rom
- 3
- Tomteareal
- 853 m² (eiet)
Fasiliteter
Balkong/Terrasse
Barnevennlig
Hage
Peis/Ildsted
Rolig
Turterreng
Visning
Alle våre visninger har påmelding. På denne måten sikrer vi at megler har god oversikt og tid til å imøtekomme alle interessenter på beste måte. Skulle ingen være påmeldt til visningen, vil visningen ikke bli gjennomført. Passer ikke annonsert tidspunkt, ta kontakt så finner vi en løsning.
VisningspåmeldingOm boligen
Velkommen til Sørskogbygda og Øvre Skurubergsveg 82!
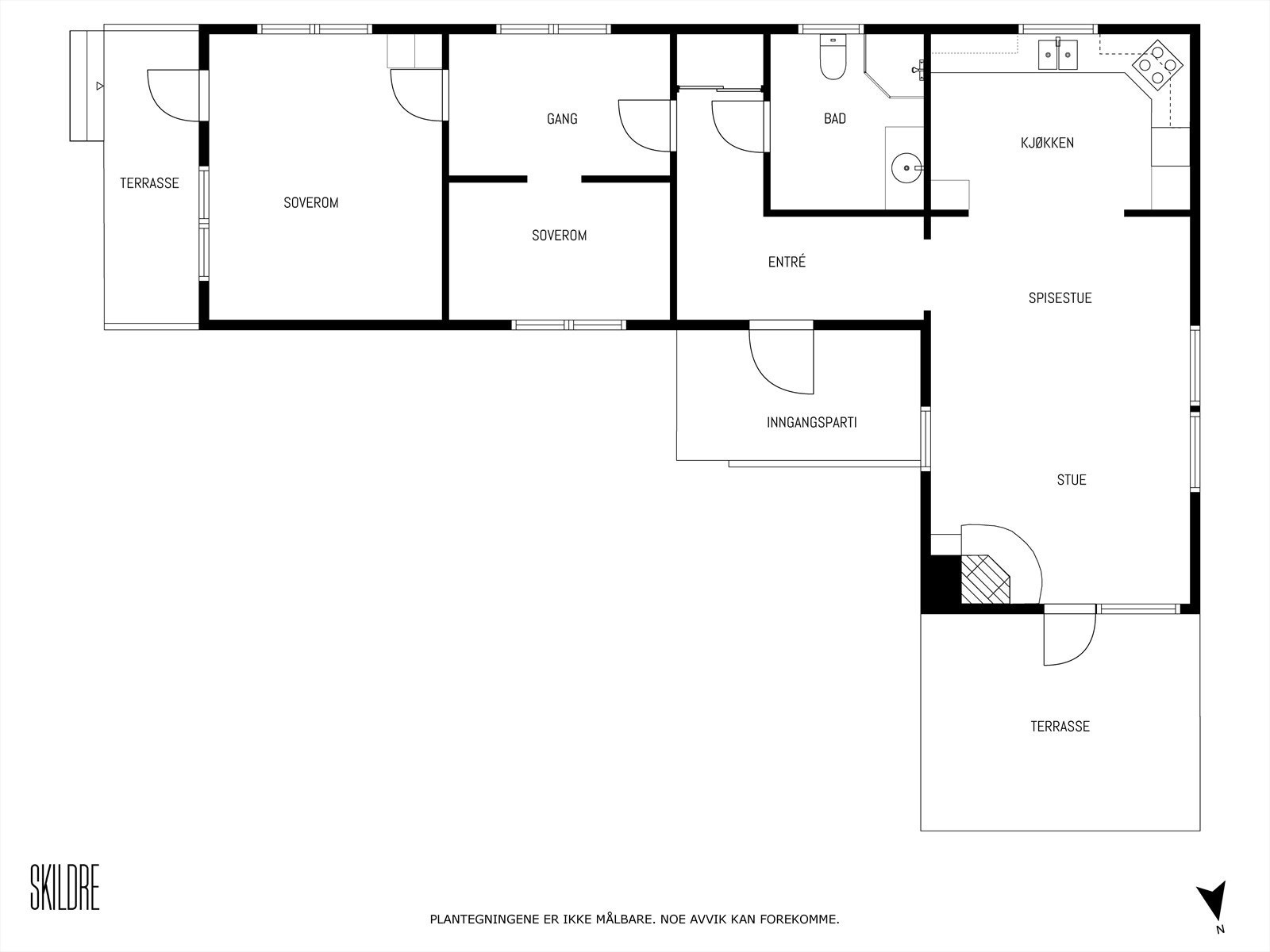
Her har vi gleden av å presentere en enebolig i laftet tømmer over ett plan, med stue/kjøkken, bad/vaskerom og to soverom. Oppvarming med blant annet vedfyring. Varmekabler i gulv i gang og på badet.
Eneboligen er beliggende i et rolig og landlig område ca. 2 km fra Sørskogbygda sentrum. Her finner man blant annet skole, kirke og samfunnshus. Dagligvarebutikk er snart på plass. Gangavstand til barnehage. For et ytterligere større servicetilbud er det ca. 17 km til Elverum sentrum. Lisjøen ligger ca. 8 km unna, her kan man bade, fiske og padle kano og det er ca. 7 km til Bergesjøen.
Velkommen til visning!
Meld deg på via påmeldingsknappen eller ta kontakt med Hans Petter Carlsson, eiendomsmegler MNEF på tlf. 911 25 518.
Her har vi gleden av å presentere en enebolig i laftet tømmer over ett plan, med stue/kjøkken, bad/vaskerom og to soverom. Oppvarming med blant annet vedfyring. Varmekabler i gulv i gang og på badet.
Eneboligen er beliggende i et rolig og landlig område ca. 2 km fra Sørskogbygda sentrum. Her finner man blant annet skole, kirke og samfunnshus. Dagligvarebutikk er snart på plass. Gangavstand til barnehage. For et ytterligere større servicetilbud er det ca. 17 km til Elverum sentrum. Lisjøen ligger ca. 8 km unna, her kan man bade, fiske og padle kano og det er ca. 7 km til Bergesjøen.
Velkommen til visning!
Meld deg på via påmeldingsknappen eller ta kontakt med Hans Petter Carlsson, eiendomsmegler MNEF på tlf. 911 25 518.
NB: Knappen for å vise hele beskrivelsen har kun en visuell effekt.
NB: Knappen for å vise hele beskrivelsen har kun en visuell effekt.
Salgsoppgaven beskriver vesentlig og lovpålagt informasjon om eiendommen
Se komplett salgsoppgaveNyttige lenker
Nærområdet
Meglerhuset Østlandet AS
Annonseinformasjon
| FINN-kode | 357042988 |
|---|---|
| Sist endret | 23. okt. 2025 14:25 |
| Referanse | GAR14.2323 |
Annonsene kan være mangelfulle i forhold til lovpålagt opplysningsplikt. Før bindende avtale inngås oppfordres interessenter til å innhente komplett informasjon fra meglerforetaket, selger eller utleier.































