Bildegalleri

Stue med store vinduer med innfall av lys fra tre sider
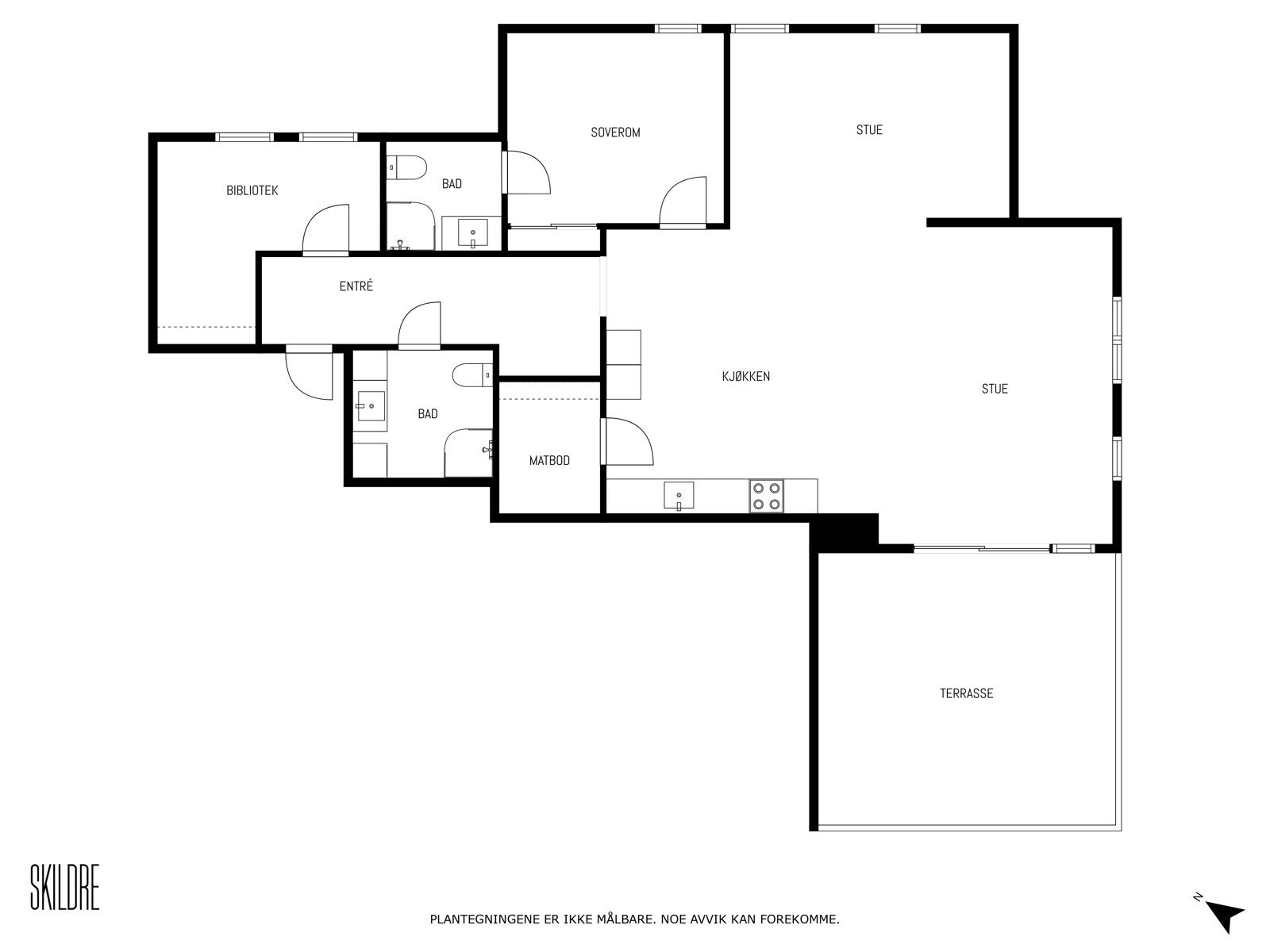
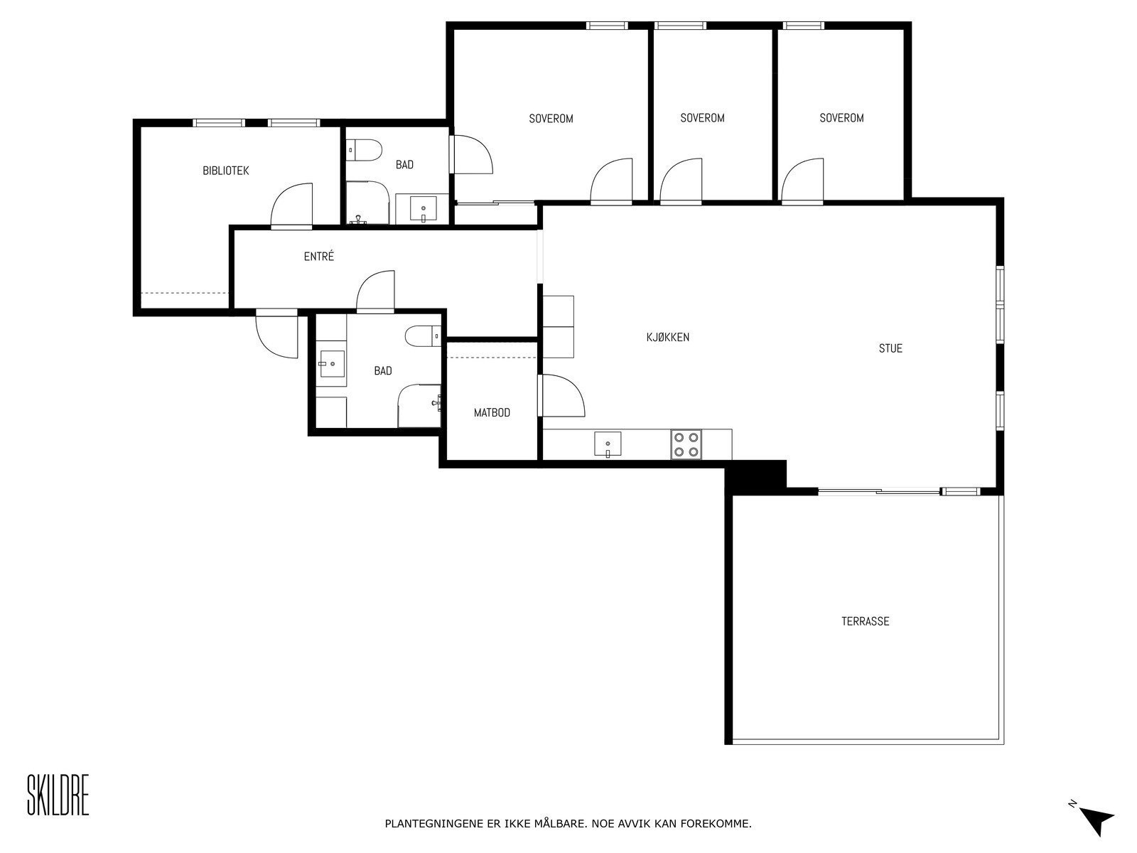
Toppleilighet på 115 m2 fra 2021. Terrasse på 25 m2 / 2 bad / garasje / heis.
Nøkkelinfo
- Boligtype
- Leilighet
- Eieform
- Andel
- Soverom
- 2
- Internt bruksareal
- 115 m² (BRA-i)
- Bruksareal
- 120 m²
- Eksternt bruksareal
- 5 m² (BRA-e)
- Balkong/Terrasse
- 25 m² (TBA)
- Etasje
- 4
- Byggeår
- 2021
- Energimerking
- C - Mørkegrønn
- Rom
- 4
- Tomteareal
- 2 617 m² (eiet)
Fasiliteter
Om boligen
Attraktiv og tilbaketrukket beliggenhet på Stålverket med kort veg ned til museumsområdene på Domkirkeodden og Mjøsa. Rett nedenfor eiendommen ligger Mjøspromenaden med fine strender, turstier og ulike naturmiljøer.
Gjennomgående høy standard utover standard løsninger. Leiligheten ligger i toppetasjen med heis, og byr på høykvalitets parkett i hele leiligheten. 2 lekre flislagte bad og et stilrent Norema- kjøkken med integrerte hvitevarer.
- Egen parkeringsplass i kjeller
- Vannbåren varme
- Boligen kan enkelt tilbakeføres til opprinnelig planløsning med 4 soverom.
- Stor usjenert terrasse med gode solforhold
Ved nedbetaling av fellegjeld blir felleskost. kr. 7.371,- ink oppvarming
Velkommen til visning
Salgsoppgaven beskriver vesentlig og lovpålagt informasjon om eiendommen
Se komplett salgsoppgaveNyttige lenker
Nærområdet
OBOS eiendomsmeglere - Hamar
Annonseinformasjon
| FINN-kode | 356755763 |
|---|---|
| Sist endret | 12. mars 2026 03:13 |
| Referanse | 715240062 |
Annonsene kan være mangelfulle i forhold til lovpålagt opplysningsplikt. Før bindende avtale inngås oppfordres interessenter til å innhente komplett informasjon fra meglerforetaket, selger eller utleier.











































