Bildegalleri

En lys, gjennomgående og lekker 2(3)-roms andelsleilighet med rolig, men samtidig svært sentral beliggenhet på populære Øvre Løkka
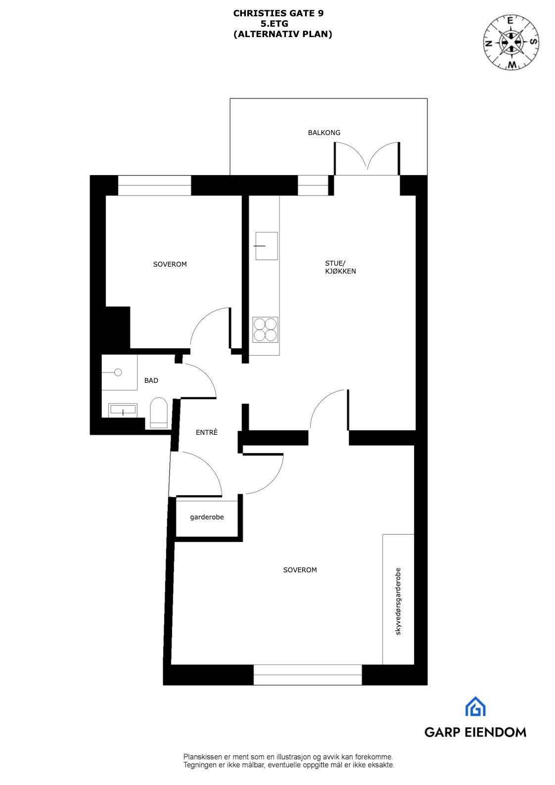
Lys og gjennomgående 2(3)-roms med 6 kvm balkong - Fyring og varmtvann ink. - Ingen dok. avg. - Stille og tilbaketrukket
Nøkkelinfo
- Boligtype
- Leilighet
- Eieform
- Andel
- Soverom
- 1
- Internt bruksareal
- 50 m² (BRA-i)
- Bruksareal
- 57 m²
- Eksternt bruksareal
- 7 m² (BRA-e)
- Balkong/Terrasse
- 6 m² (TBA)
- Etasje
- 5
- Byggeår
- 1933
- Energimerking
- G - Lysegrønn
- Rom
- 2
- Tomteareal
- 128 m² (eiet)
Fasiliteter
Om boligen
Høydepunkter:
- Varmtvann og fyring inkl.
- Ingen dokumentavgift
- IN-ordning og sikringsordning
- Stor, solrik balkong på 6 kvm mot grønn bakgård
- Nye vinduer i 2022
- Mulighet for 2 soverom
- God lagringsplass i to boder; en i kjeller og en på loft
- Stor og frodig bakgård med gressplen, flere sittegrupper og grill
- Svært stille og rolig beliggenhet mot enveiskjørt vei og indre bakgård
Velkommen til visning!
Salgsoppgaven beskriver vesentlig og lovpålagt informasjon om eiendommen
Se komplett salgsoppgaveNyttige lenker
Nærområdet
Nordvik Majorstuen
Prisstatistikk
Christies gate 9
på annonsen
prisantydning per kvadratmeter
Prisfordeling
Pris per m² ligger 7 900 kr under snittet for leiligheter i Grünerløkka - Sofienberg.
Grafen viser antall leiligheter solgt i Grünerløkka - Sofienberg siste året fordelt på pris per m² - totalt 2 434 leiligheter
Antall boliger
Kvadratmeterpris tilsvarer prisantydning pluss fellesgjeld per kvadratmeter (p-rom eller BRA-i). Prisene i grafen er avrundet til nærmeste 1000 kr.
Annonseinformasjon
| FINN-kode | 356195891 |
|---|---|
| Sist endret | 11. okt. 2024 07:30 |
| Referanse | 8-0207/24 |
Annonsene kan være mangelfulle i forhold til lovpålagt opplysningsplikt. Før bindende avtale inngås oppfordres interessenter til å innhente komplett informasjon fra meglerforetaket, selger eller utleier.

































