Bildegalleri

Velkommen til Kyavegen 23!
Solgt
Strindheim/ Persaunet
Lys og innbydende 3-roms leilighet med sørvestvendt balkong | Parkering | Fjernvarme | IN-ordning | Ingen dok. avgift
Prisantydning2 190 000 kr
Nøkkelinfo
- Boligtype
- Leilighet
- Eieform
- Andel
- Soverom
- 2
- Internt bruksareal
- 61 m² (BRA-i)
- Bruksareal
- 74 m²
- Eksternt bruksareal
- 13 m² (BRA-e)
- Balkong/Terrasse
- 7 m² (TBA)
- Etasje
- 2
- Byggeår
- 2007
- Energimerking
- D - Mørkegrønn
- Rom
- 3
- Tomteareal
- 2 899 m² (eiet)
Fasiliteter
Barnevennlig
Balkong/Terrasse
Garasje/P-plass
Kabel-TV
Heis
Offentlig vann/kloakk
Parkett
Vaktmester-/vektertjeneste
Sentralt
Bredbåndstilknytning
Moderne
Rolig
Balansert ventilasjon
Om boligen
EiendomsMegler 1 ved Adrian Dyrstad har gleden av å presentere Kyavegen 23!
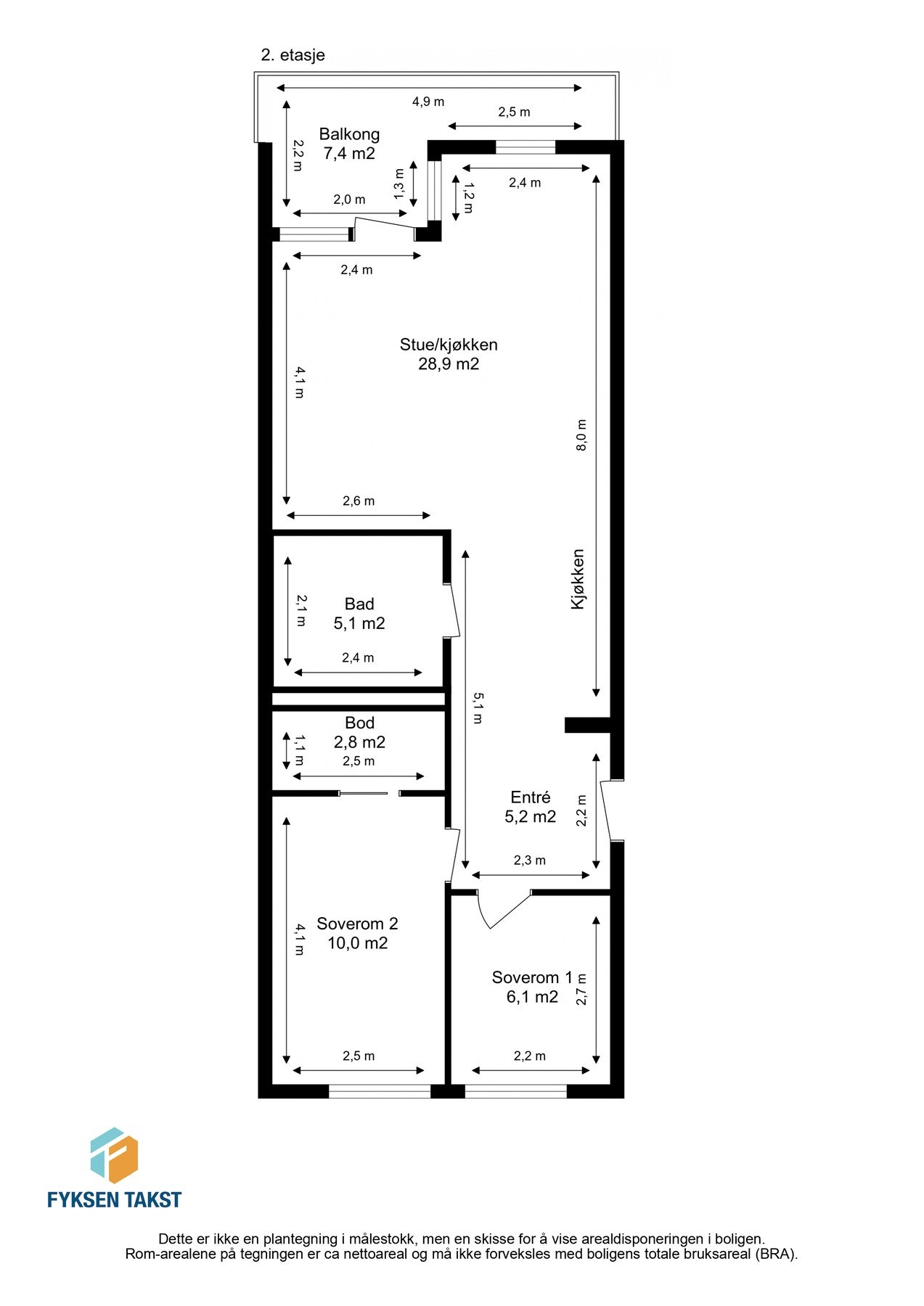
Lys og innbydende 3-roms leilighet beliggende i byggets 2. etasje. Boligen holder en gjennomgående god standard og har en sørvestvendt balkong med svært gode solforhold.
Persaunet er kjent for å være et rolig og trygt sted å bo, samt at man når Trondheim sentrum til fots, på sykkel eller via gode bussforbindelser. Det er flere butikker og alt av nødvendige fasiliteter i umiddelbar nærhet.
Kvaliteter verdt å nevne:
- God planløsning med åpen stue-/kjøkkenløsning
- Tidløst kjøkken med TG1 fra takstmann
- Flislagt bad med varmekabler i gulv og opplegg til vaskemaskin
- Fast p-plass i oppvarmet p-kjeller samt bod
- To romslige soverom på 10m² og 6,1m²
- TV/internett, kommunale avgifter, A-konto strøm, varme og varmtvann er inkludert i felleskostnader
- Svært gode bussforbindelser i umiddelbar nærhet
- Nærmeste dagligvarebutikk ligger rett over veien
- Heis i bygget
Lys og innbydende 3-roms leilighet beliggende i byggets 2. etasje. Boligen holder en gjennomgående god standard og har en sørvestvendt balkong med svært gode solforhold.
Persaunet er kjent for å være et rolig og trygt sted å bo, samt at man når Trondheim sentrum til fots, på sykkel eller via gode bussforbindelser. Det er flere butikker og alt av nødvendige fasiliteter i umiddelbar nærhet.
Kvaliteter verdt å nevne:
- God planløsning med åpen stue-/kjøkkenløsning
- Tidløst kjøkken med TG1 fra takstmann
- Flislagt bad med varmekabler i gulv og opplegg til vaskemaskin
- Fast p-plass i oppvarmet p-kjeller samt bod
- To romslige soverom på 10m² og 6,1m²
- TV/internett, kommunale avgifter, A-konto strøm, varme og varmtvann er inkludert i felleskostnader
- Svært gode bussforbindelser i umiddelbar nærhet
- Nærmeste dagligvarebutikk ligger rett over veien
- Heis i bygget
NB: Knappen for å vise hele beskrivelsen har kun en visuell effekt.
NB: Knappen for å vise hele beskrivelsen har kun en visuell effekt.
Salgsoppgaven beskriver vesentlig og lovpålagt informasjon om eiendommen
Se komplett salgsoppgaveNyttige lenker
Nærområdet
EiendomsMegler 1 Valentinlyst
Vi loser deg trygt gjennom hele boligsalget
Prisstatistikk
Kyavegen 23
2 635 klikk
på annonsen
56 226 kr
prisantydning per kvadratmeter
Prisfordeling
Pris per m² ligger 6 774 kr under snittet for leiligheter i Trondheim Øst.
Grafen viser antall leiligheter solgt i Trondheim Øst siste året fordelt på pris per m² - totalt 2 543 leiligheter
Antall boliger
Kvadratmeterpris tilsvarer prisantydning pluss fellesgjeld per kvadratmeter (p-rom eller BRA-i). Prisene i grafen er avrundet til nærmeste 1000 kr.
Annonseinformasjon
| FINN-kode | 356106620 |
|---|---|
| Sist endret | 11. okt. 2024 16:15 |
| Referanse | 34240165 |
Annonsene kan være mangelfulle i forhold til lovpålagt opplysningsplikt. Før bindende avtale inngås oppfordres interessenter til å innhente komplett informasjon fra meglerforetaket, selger eller utleier.























