Bildegalleri

EiendomsMegler 1 v/ Mads Larsen har gleden av å ønske velkommen til Dyre Halses gate 7!
PEN & MEGET SENTRAL ANDELSLEIL PÅ SOLSIDEN - INGEN DOK.AVG. - FINT FØRSTEGANGSKJØP - 2 TAKTERRASSER - BOD - HEIS.
Nøkkelinfo
- Boligtype
- Leilighet
- Eieform
- Andel
- Soverom
- 0
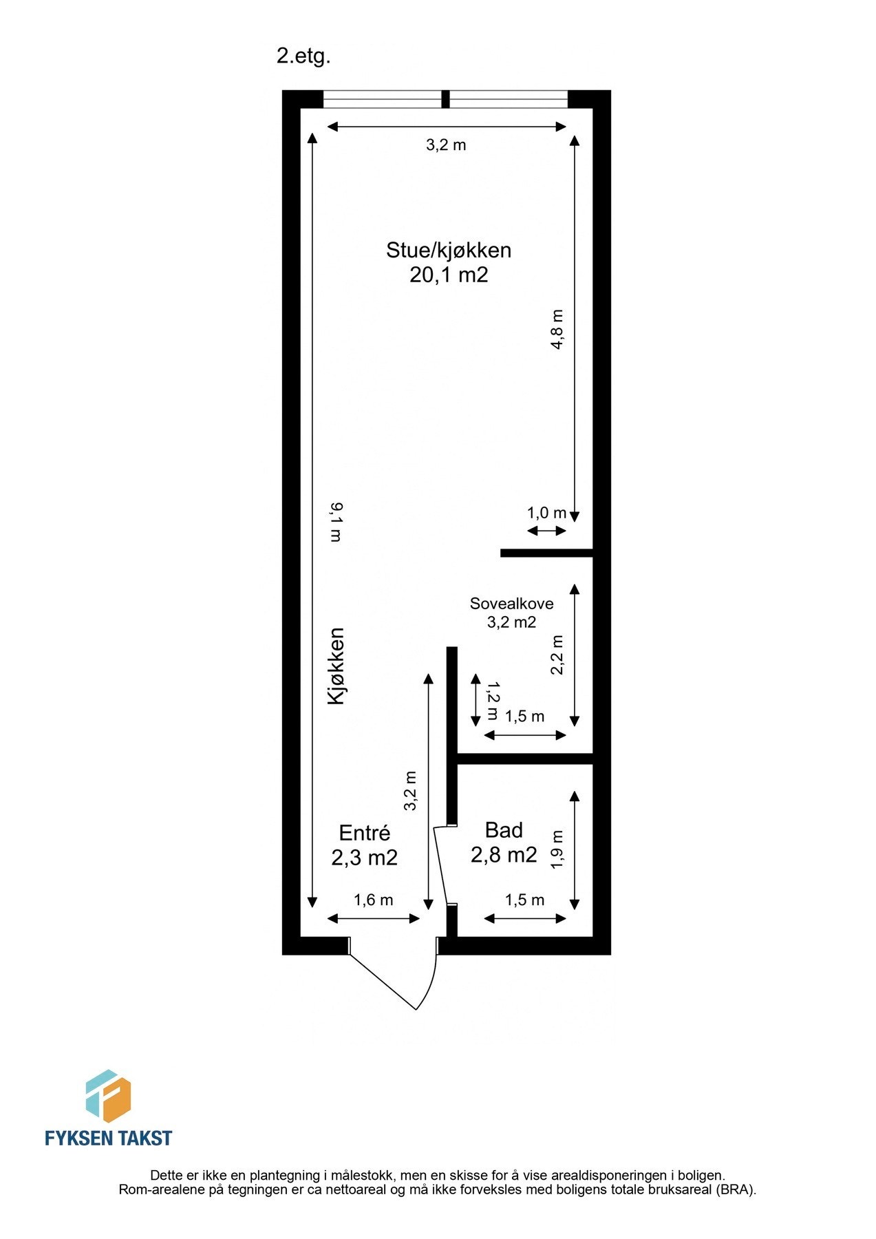
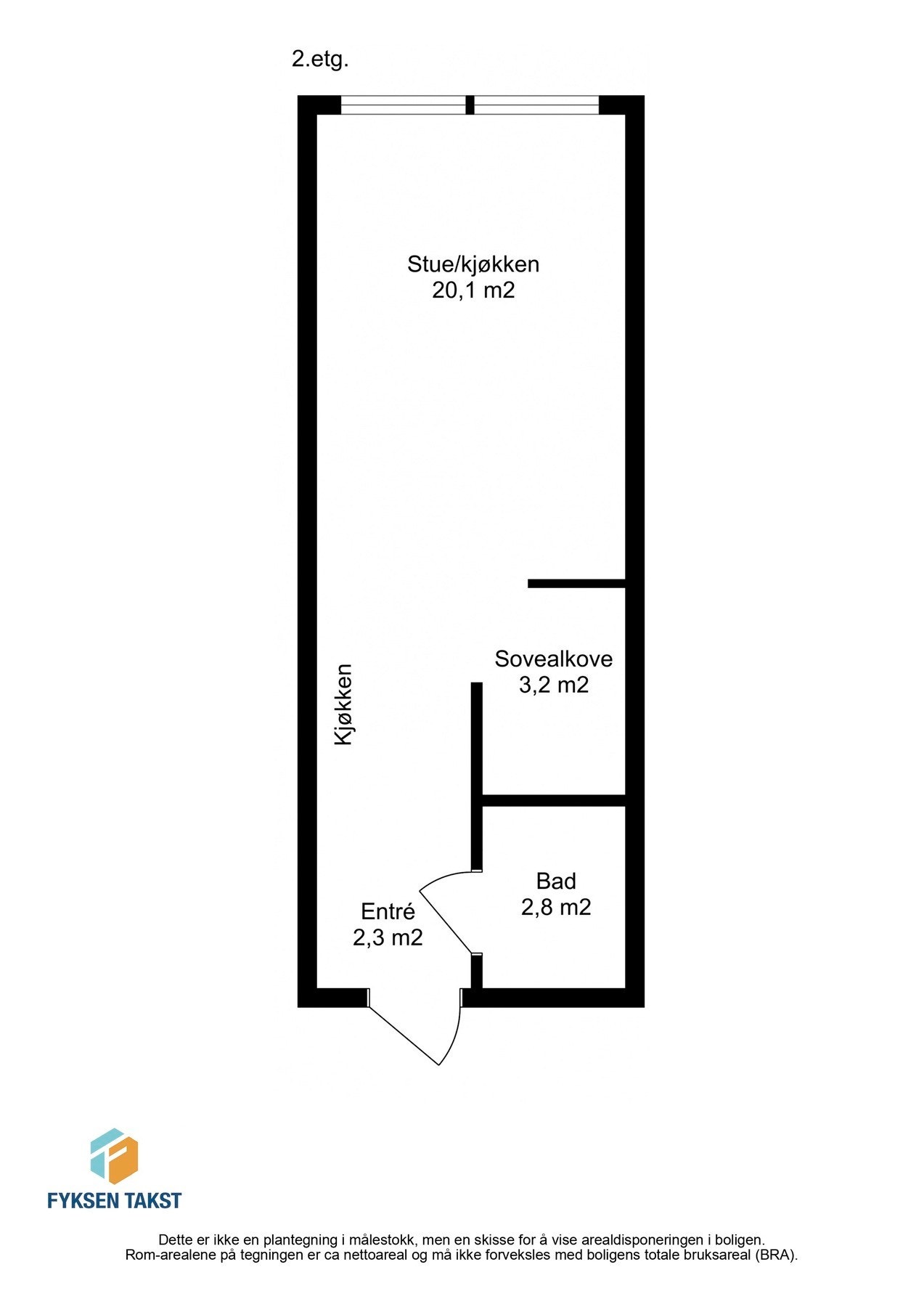
- Internt bruksareal
- 29 m² (BRA-i)
- Bruksareal
- 32 m²
- Eksternt bruksareal
- 3 m² (BRA-e)
- Etasje
- 2
- Byggeår
- 2006
- Energimerking
- C - Mørkegrønn
- Rom
- 1
- Tomteareal
- 672 m² (eiet)
Fasiliteter
Om boligen
Leiligheten holder en moderne standard med fasiliteter som fjernvarme og balansert ventilasjon. "Alt" inkl. i fk.
Dyre Halses gate er for øvrig et meget attraktivt område med sin umiddelbare nærhet til "alt" du trenger i hverdagen og flotte arealer mellom blokkene. Utallige restaurant- og shoppingmuligheter, bussholdeplass, togstasjon, treningssenter og studiesteder som NTNU & BI i umiddelbar nærhet.
Verdt å merke seg:
- Fjernvarme, varmtvann, kommunale avgifter, kabel-TV, og internett inkl. i fk.
- Ingen dokumentavgift! Fint førstegangskjøp!
- Mulighet for bruk av 2 takterrasser, samt bod i samme etasje.
- Meget effektiv planløsning. Heis i bygget.
- Kort avstand til NTNU & BI.
- Mulighet for leie av parkeringsplass ved ledig kapasitet.
Salgsoppgaven beskriver vesentlig og lovpålagt informasjon om eiendommen
Se komplett salgsoppgaveNyttige lenker
Nærområdet
EiendomsMegler 1 Lade og Lilleby
Prisstatistikk
Dyre Halses gate 7
på annonsen
prisantydning per kvadratmeter
Prisfordeling
Pris per m² ligger 25 398 kr over snittet for leiligheter i Trondheim Øst.
Grafen viser antall leiligheter solgt i Trondheim Øst siste året fordelt på pris per m² - totalt 2 613 leiligheter
Antall boliger
Kvadratmeterpris tilsvarer prisantydning pluss fellesgjeld per kvadratmeter (p-rom eller BRA-i). Prisene i grafen er avrundet til nærmeste 1000 kr.
Annonseinformasjon
| FINN-kode | 356050345 |
|---|---|
| Sist endret | 31. okt. 2024 13:00 |
| Referanse | 36240093 |
Annonsene kan være mangelfulle i forhold til lovpålagt opplysningsplikt. Før bindende avtale inngås oppfordres interessenter til å innhente komplett informasjon fra meglerforetaket, selger eller utleier.



























