Bildegalleri

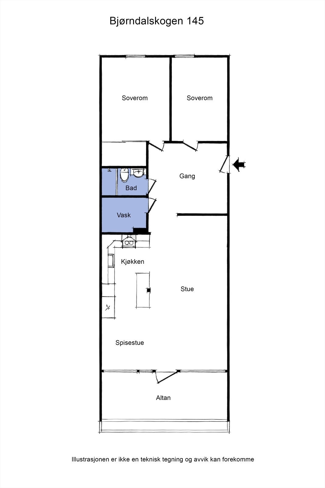
Velkommen til en stor, flott 3-roms leilighet med trappefri adkomst i meget populært boligområde.
Herlig 3-roms leilighet med stor, solrik terrasse i flotte omgivelser. Fast garasjeplass. Trappefri adkomst
Nøkkelinfo
- Boligtype
- Leilighet
- Eieform
- Andel
- Soverom
- 2
- Internt bruksareal
- 108 m² (BRA-i)
- Bruksareal
- 111 m²
- Eksternt bruksareal
- 3 m² (BRA-e)
- Balkong/Terrasse
- 13 m² (TBA)
- Etasje
- 1
- Byggeår
- 1974
- Energimerking
- E - Rød
- Rom
- 3
- Renovert år
- 2016
- Tomteareal
- 141 724 m² (eiet)
Fasiliteter
Om boligen
Denne boligen vender mot vest og nyter godt av ettermiddags- og kveldssol fra en stor og attraktiv balkong. Her bor du i et rolig og veldrevet borettslag som har gjennomgått betydelig modernisering de senere år.
Verdt å merke seg:
Trappefri adkomst.
Mye inkl. i fellesutgiftene; blant annet varmtvann, TV/internett, kommunale avgifter, eiendomsskatt & vaktmester.
Solrik terrasse på 13,4m².
Muligheter for 3 soverom.
Delikat kjøkken fra Nettoline m/ int. hvitevarer.
Veldrevet borettslag.
Fast garasjeplass med muligheter for elbil-lader.
Nærhet til buss, dagligvarebutikk & varierte turmuligheter.
Kort vei til Bergen sentrum.
Husk visningspåmelding - Velkommen!
Salgsoppgaven beskriver vesentlig og lovpålagt informasjon om eiendommen
Se komplett salgsoppgaveNyttige lenker
Nærområdet
Fana Sparebank Eiendom
Prisstatistikk
Bjørndalsskogen 145
på annonsen
prisantydning per kvadratmeter
Prisfordeling
Pris per m² ligger 25 322 kr under snittet for leiligheter i Bergen Vest.
Grafen viser antall leiligheter solgt i Bergen Vest siste året fordelt på pris per m² - totalt 724 leiligheter
Antall boliger
Kvadratmeterpris tilsvarer prisantydning pluss fellesgjeld per kvadratmeter (p-rom eller BRA-i). Prisene i grafen er avrundet til nærmeste 1000 kr.
Annonseinformasjon
| FINN-kode | 356046348 |
|---|---|
| Sist endret | 11. nov. 2024 11:56 |
| Referanse | 34a77f1a-ca2d-4245-82d5-5a2d63b64787 |
Annonsene kan være mangelfulle i forhold til lovpålagt opplysningsplikt. Før bindende avtale inngås oppfordres interessenter til å innhente komplett informasjon fra meglerforetaket, selger eller utleier.






































