Bildegalleri

Herskapelig stue med 6 meters takhøyde og lyddempende tak. Elektriske lameller og utgang til hage og bassengområde
Kalvøysund
Stor herskapelig villaeiendom med nydelig havutsikt. Basseng, leilighet, trippel garasje, kino, spa, bar og mye mer
Prisantydning19 990 000 kr
Nøkkelinfo
- Boligtype
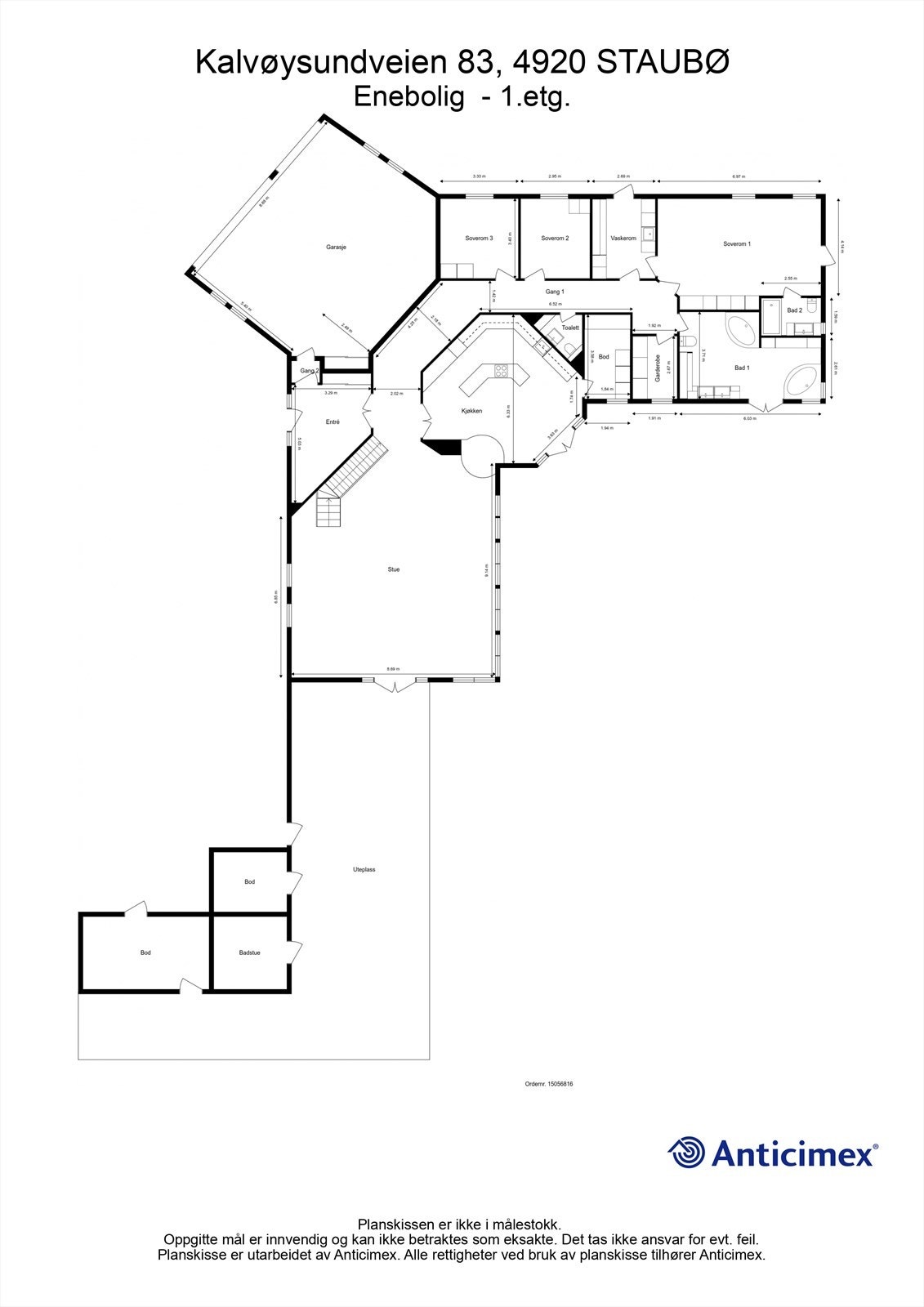
- Enebolig
- Eieform
- Eier (Selveier)
- Soverom
- 9
- Internt bruksareal
- 884 m² (BRA-i)
- Bruksareal
- 900 m²
- Eksternt bruksareal
- 16 m² (BRA-e)
- Balkong/Terrasse
- 39 m² (TBA)
- Etasje
- 3
- Byggeår
- 2007
- Energimerking
- B - Gul
- Tomteareal
- 1 988 m² (eiet)
Fasiliteter
Balkong/Terrasse
Barnevennlig
Garasje/P-plass
Hage
Offentlig vann/kloakk
Parkett
Peis/Ildsted
Rolig
Utsikt
Turterreng
Om boligen
En svært innholdsrik eiendom av de sjeldne beliggende mellom Arendal og Tvedestrand på solrik tomt med nydelig havutsikt. Boligen inneholder bl.a 9 soverom, 6 bad, egen spaavdeling, trimrom, kinorom, stor velutstyrt bar, flere stuer og trippel garasje i tillegg til dobbel carport. Denne eiendommen byr på det meste man kan drømme om. Hagen er opparbeidet med eget bassengområde uten innsyn og det er i tillegg Jacuzzi, boblebad, badstue, utepeiser, skiferplatting, utebelysning og lekre beplantninger for å nevne noe. Energieffektiv oppvarming med vannbåren varme, smarthussystem, innebygd Bang & Olufsen lydanlegg og egen leilighet i underetasjen.
Her kan man virkelig nyte det gode liv langs kysten i vakker sørlandsidyll.
Alt av innbo og møbler kan medfølge.
Her kan man virkelig nyte det gode liv langs kysten i vakker sørlandsidyll.
Alt av innbo og møbler kan medfølge.
NB: Knappen for å vise hele beskrivelsen har kun en visuell effekt.
NB: Knappen for å vise hele beskrivelsen har kun en visuell effekt.
Salgsoppgaven beskriver vesentlig og lovpålagt informasjon om eiendommen
Se komplett salgsoppgaveNyttige lenker
Nærområdet
Krogsveen Arendal
Velkommen til en enklere boligreise.
Annonseinformasjon
| FINN-kode | 355735361 |
|---|---|
| Sist endret | 19. des. 2025 12:57 |
| Referanse | KR47.2469 |
Annonsene kan være mangelfulle i forhold til lovpålagt opplysningsplikt. Før bindende avtale inngås oppfordres interessenter til å innhente komplett informasjon fra meglerforetaket, selger eller utleier.

























































