Bildegalleri

Velkommen til Nedre Kipperberget 14 - En innholdsrik enebolig beliggende i et barnevennlig nabolag i Langevågen.

Solgt
LANGEVÅG

Svært innholdsrik enebolig med 1,3 mål tomt - Utleie - Dobbelgarasje - Veranda med utestue - Varmepumpe

Prisantydning4 350 000 kr
Totalpris
4 487 500 kr
Omkostninger
137 500 kr
Kommunale avg.
26 798 kr per år
Formuesverdi
745 356 kr

Nøkkelinfo

Boligtype
Enebolig
Eieform
Eier (Selveier)
Soverom
5
Internt bruksareal
227 m² (BRA-i)
Bruksareal
291 m²
Eksternt bruksareal
64 m² (BRA-e)
Balkong/Terrasse
38 m² (TBA)
Byggeår
1971
Energimerking
F - Gul
Tomteareal
1 328 m² (eiet)

Les mer om bruksareal her

Fasiliteter

Balkong/Terrasse
Peis/Ildsted
Barnevennlig
Rolig
Moderne
Garasje/P-plass
Turterreng
Offentlig vann/kloakk

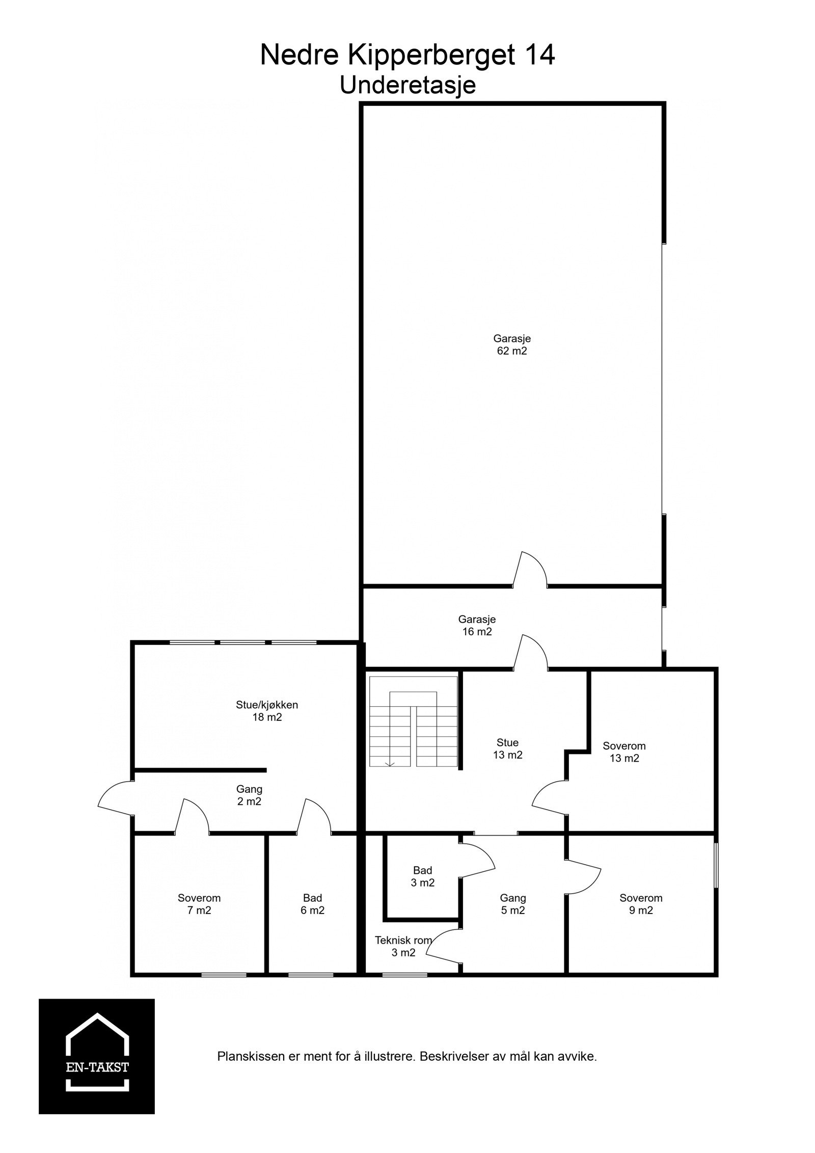
Om boligen

Velkommen til Nedre Kipperberget 14!


Denne eiendommen kan by på følgende kvaliteter:


  • Beliggende i et familievennlig nabolag med nærhet til flotte sjø- og naturområder. Kort gangavstand til barnehage.
  • Stort og pent opparbeidet uteområde med hage, terrasse, veranda med utestue og mer.
  • Utleie i sokkeletasje, oppusset i senere tid med ett soverom, bad, stue og kjøkken i åpen løsning.
  • Fire soverom, to i hver etasje. Soverom 2 blir idag brukt som walk.in garderobe.
  • Nyere kjøkken med flere integrerte hvitevarer samt god skap- og benkeplass.
  • Ett bad i hver etasje. Baderommene er renovert i 2014.
  • Oppvarming med vedfyring og varmepumpe.
  • Nyere tak fra 2015.
  • Rikelig med parkeringsmuligheter i dobbelgarasje (2015) og på oppstillingsplass.

Velkommen til visning. Husk påmelding!

Salgsoppgaven beskriver vesentlig og lovpålagt informasjon om eiendommen

Se komplett salgsoppgave

Nærområdet

Prisstatistikk

Nedre Kipperberget 14

4 981 klikk

på annonsen

19 162 kr

prisantydning per kvadratmeter

Prisfordeling

Pris per m² ligger 4 838 kr under snittet for eneboliger i Sula.

Grafen viser antall eneboliger solgt i Sula siste året fordelt på pris per m² - totalt 53 eneboliger

Antall boliger

0246
Histogram som viser prisfordeling for boliger i SulaDenne boligen koster 19000 kr per kvadratmeter, mens gjennomsnittet er 24000 kr per kvadratmeter7 00016 00025 00034 00043 000Pris per m² i krDenne boligen19 000 krGjennomsnitt24 000 kr

Kvadratmeterpris tilsvarer prisantydning pluss fellesgjeld per kvadratmeter (p-rom eller BRA-i). Prisene i grafen er avrundet til nærmeste 1000 kr.

Eiendommer solgt i samme område

I løpet av de siste 12 månedene

Bilde av kartet på finn.no

Annonseinformasjon

FINN-kode355245516
Sist endret15. juni 2024 13:54
Referanse17240029

Rapporter annonse

Annonsene kan være mangelfulle i forhold til lovpålagt opplysningsplikt. Før bindende avtale inngås oppfordres interessenter til å innhente komplett informasjon fra meglerforetaket, selger eller utleier.