Bildegalleri

Unik mulighet! Aktiv Jæren v/Andreas Rage har gleden av å presentere Tangen 1A
Solgt
Bryne/Tangen
Klassisk enebolig i naturskjønne og landlige omgivelser med utsikt til Frøylandsvatnet. Dobbel garasje og hagestue
Prisantydning8 500 000 kr
Nøkkelinfo
- Boligtype
- Enebolig
- Eieform
- Eier (Selveier)
- Soverom
- 5
- Internt bruksareal
- 298 m² (BRA-i)
- Bruksareal
- 385 m²
- Eksternt bruksareal
- 87 m² (BRA-e)
- Balkong/Terrasse
- 10 m² (TBA)
- Byggeår
- 2003
- Energimerking
- D - Gul
- Rom
- 8
- Tomteareal
- 873 m² (eiet)
Fasiliteter
Balkong/Terrasse
Barnevennlig
Garasje/P-plass
Hage
Peis/Ildsted
Rolig
Sentralt
Utsikt
Lademulighet
Om boligen
Aktiv Eiendomsmegling har gleden av å kunne presentere Tangen 1A for salg.
En unik mulighet til å skaffe seg noe utenom det vanlige! En flott enebolig med gjennomgående klassisk byggestil i nærheten av Bryne sentrum.
Særpreget beliggenhet i landlige og naturskjønne omgivelser med pent opparbeidet tomt og utsikt mot Frøylandsvatnet.
Her får man en romslig enebolig, kombinert med stor tomt og ikke minst muligheten for utleie av kjelleretasjen.
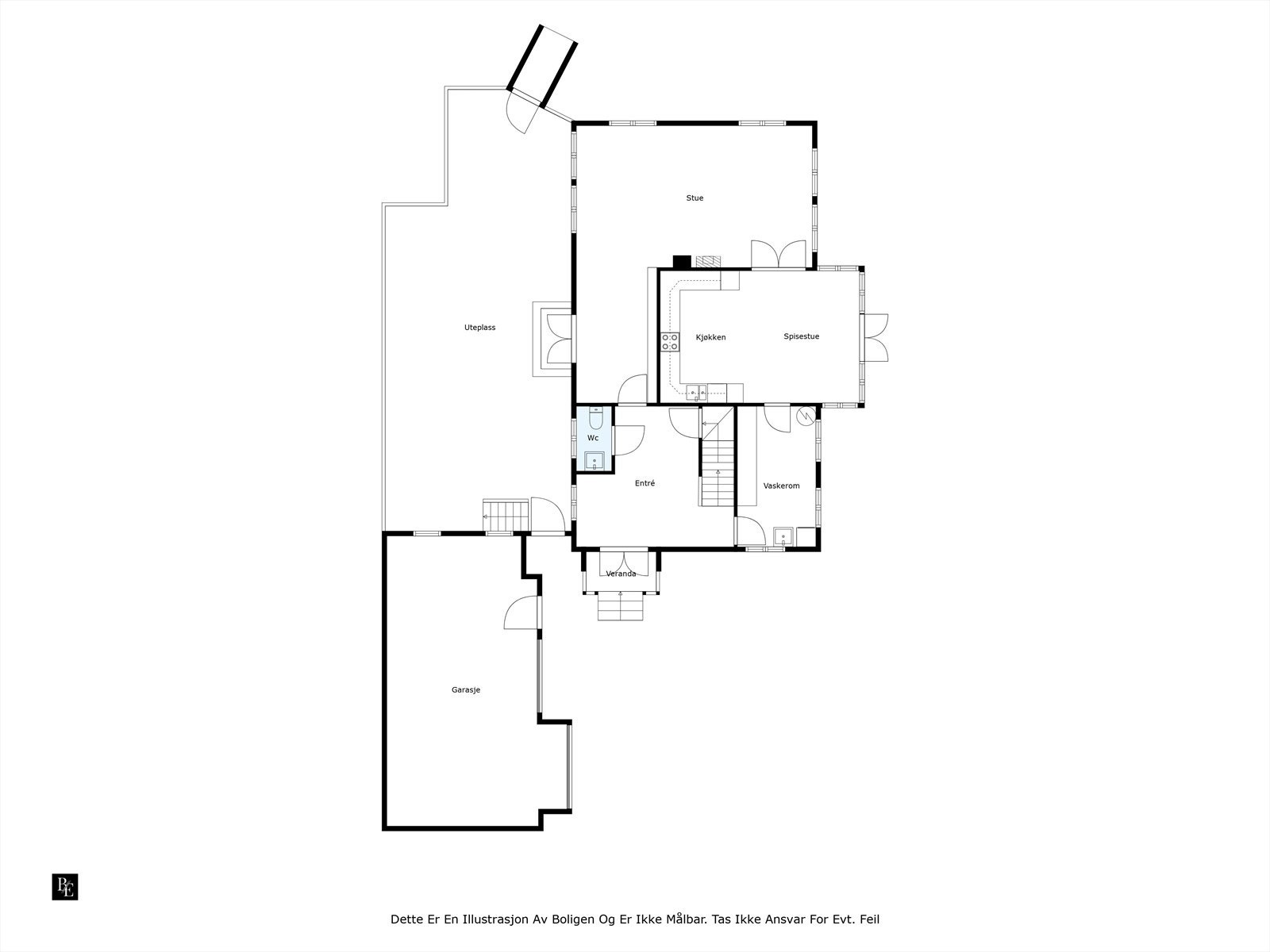
Innhold:
Kjeller: Kjellerentre/stue/kjøkken, 2 soverom, bad/vaskerom, lagerrom og bod.
1. etasje: Entre/gang, wc, vaskerom, kjøkken/allrom, stue/spisestue.
2. etasje: Stue/gang, kontor, 3 soverom, bad og 2 hemser.
Dobbel garasje med innredet loftsetasje som er isolert.
Hagestue på ca. 18 kvm.
Velkommen til en hyggelig visning
En unik mulighet til å skaffe seg noe utenom det vanlige! En flott enebolig med gjennomgående klassisk byggestil i nærheten av Bryne sentrum.
Særpreget beliggenhet i landlige og naturskjønne omgivelser med pent opparbeidet tomt og utsikt mot Frøylandsvatnet.
Her får man en romslig enebolig, kombinert med stor tomt og ikke minst muligheten for utleie av kjelleretasjen.
Innhold:
Kjeller: Kjellerentre/stue/kjøkken, 2 soverom, bad/vaskerom, lagerrom og bod.
1. etasje: Entre/gang, wc, vaskerom, kjøkken/allrom, stue/spisestue.
2. etasje: Stue/gang, kontor, 3 soverom, bad og 2 hemser.
Dobbel garasje med innredet loftsetasje som er isolert.
Hagestue på ca. 18 kvm.
Velkommen til en hyggelig visning
NB: Knappen for å vise hele beskrivelsen har kun en visuell effekt.
NB: Knappen for å vise hele beskrivelsen har kun en visuell effekt.
Salgsoppgaven beskriver vesentlig og lovpålagt informasjon om eiendommen
Se komplett salgsoppgaveNyttige lenker
Nærområdet
Aktiv Jæren
Prisstatistikk
Tangen 1A
13 340 klikk
på annonsen
28 523 kr
prisantydning per kvadratmeter
Prisfordeling
Pris per m² ligger 2 477 kr under snittet for eneboliger i Time.
Grafen viser antall eneboliger solgt i Time siste året fordelt på pris per m² - totalt 146 eneboliger
Antall boliger
Kvadratmeterpris tilsvarer prisantydning pluss fellesgjeld per kvadratmeter (p-rom eller BRA-i). Prisene i grafen er avrundet til nærmeste 1000 kr.
Annonseinformasjon
| FINN-kode | 355023897 |
|---|---|
| Sist endret | 15. juni 2024 11:39 |
| Referanse | 1403240150 |
Annonsene kan være mangelfulle i forhold til lovpålagt opplysningsplikt. Før bindende avtale inngås oppfordres interessenter til å innhente komplett informasjon fra meglerforetaket, selger eller utleier.


























































































