Bildegalleri

Michael R. Myhre presenterer Gosenhaugen 2!
Lekker nyoppført enebolig med nydelig utsikt. Moderne uttrykk og førsteklasses bygningskvalitet. Godkjent utleiedel.
Nøkkelinfo
- Boligtype
- Enebolig
- Eieform
- Eier (Selveier)
- Soverom
- 6
- Internt bruksareal
- 334 m² (BRA-i)
- Bruksareal
- 334 m²
- Balkong/Terrasse
- 55 m² (TBA)
- Byggeår
- 2024
- Energimerking
- B - Oransje
- Rom
- 9
- Tomteareal
- 477 m² (eiet)
Fasiliteter
Om boligen
Michael R. Myhre presenterer Gosenhaugen 2!
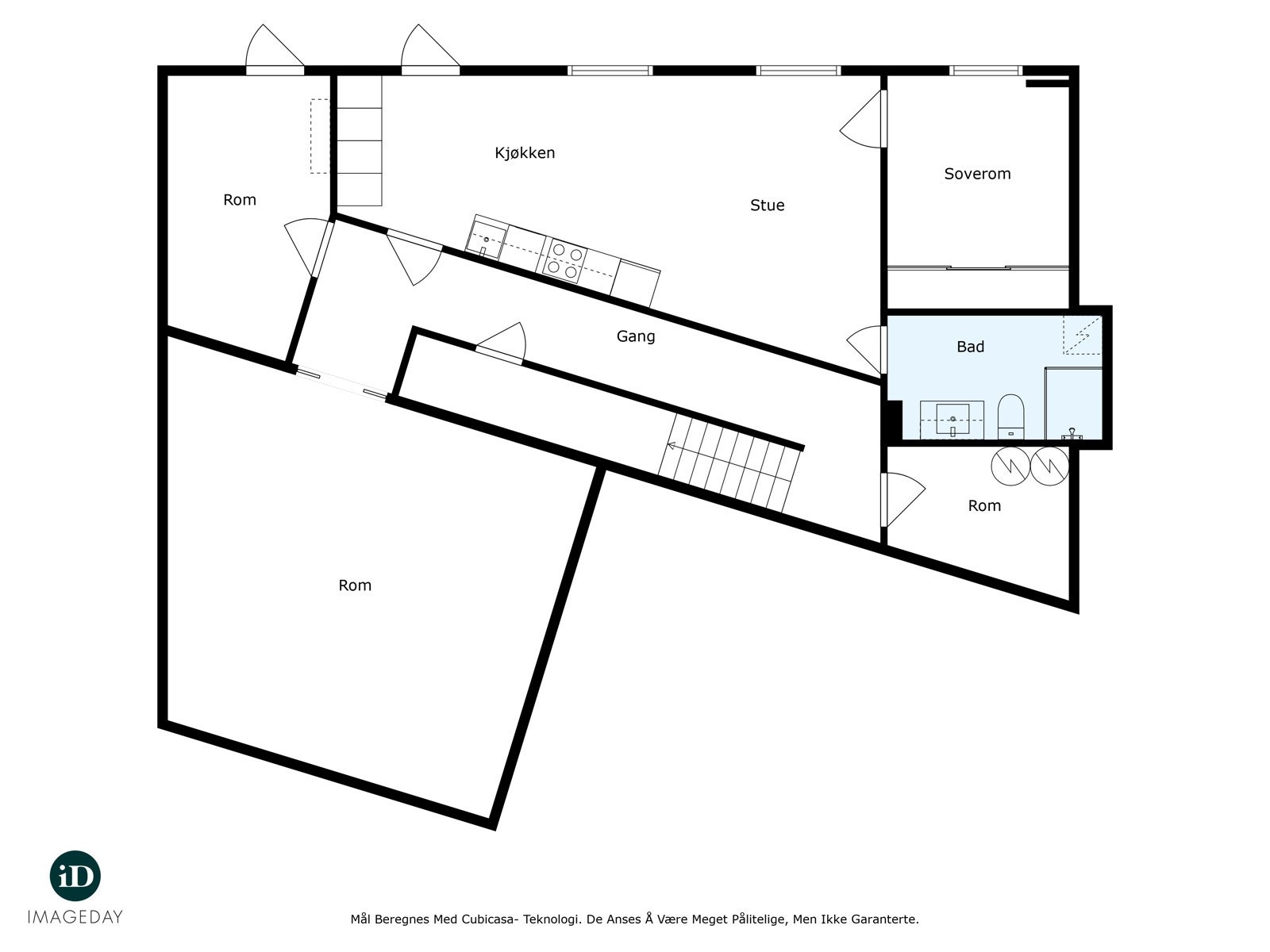
Denne helt nye eneboligen kombinerer moderne design med funksjonalitet i et rolig og familievennlig nabolag. Boligen har en elegant fasade, store uteområder med en romslig terrasse og fantastisk utsikt, en lys og luftig stue med store vindusflater, og et moderne kjøkken med integrerte hvitevarer og en stor kjøkkenøy. I tillegg har boligen egen hybeldel for utleie, som gir gode muligheter for ekstra inntekter og romsligere privatøkonomi.
Beliggende i et rolig og familievennlig område som tilbyr en perfekt kombinasjon av natur og nærhet til byens fasiliteter. Med kort avstand til skoler, barnehager, butikker og offentlig transport, er dette et ideelt sted for familier.
Velkommen til visning!
Salgsoppgaven beskriver vesentlig og lovpålagt informasjon om eiendommen
Se komplett salgsoppgaveNærområdet
EIE eiendomsmegling - Rogaland Eiendomsmegling AS
Prisstatistikk
Gosenhaugen 2
på annonsen
prisantydning per kvadratmeter
Prisfordeling
Pris per m² ligger 5 078 kr under snittet for eneboliger i Madlamark/Gosen/Granneslia.
Grafen viser antall eneboliger solgt i Madlamark/Gosen/Granneslia siste året fordelt på pris per m² - totalt 74 eneboliger
Antall boliger
Kvadratmeterpris tilsvarer prisantydning pluss fellesgjeld per kvadratmeter (p-rom eller BRA-i). Prisene i grafen er avrundet til nærmeste 1000 kr.
Annonseinformasjon
| FINN-kode | 354817698 |
|---|---|
| Sist endret | 09. juni 2024 13:19 |
| Referanse | 54240194 |
Annonsene kan være mangelfulle i forhold til lovpålagt opplysningsplikt. Før bindende avtale inngås oppfordres interessenter til å innhente komplett informasjon fra meglerforetaket, selger eller utleier.






















































