Bildegalleri

Velkommen til Avisgata 7 Leilighet 401 - Presentert av EiendomsMegler1. Foto: EFKT.
Svolvær
Nybygd leilighet med 2 soverom og 2 bad - Vakker sjøutsikt og gode solforhold
Prisantydning9 490 000 kr
Nøkkelinfo
- Boligtype
- Leilighet
- Eieform
- Selveier
- Soverom
- 2
- Internt bruksareal
- 84 m² (BRA-i)
- Bruksareal
- 89 m²
- Eksternt bruksareal
- 5 m² (BRA-e)
- Balkong/Terrasse
- 8 m² (TBA)
- Etasje
- 4
- Byggeår
- 2023
- Rom
- 2
- Tomteareal
- 1 511 m² (eiet)
Fasiliteter
Balkong/Terrasse
Alarm
Heis
Offentlig vann/kloakk
Parkett
Utsikt
Sentralt
Moderne
Balansert ventilasjon
Om boligen
Velkommen til Avisgata 7 - Leilighet 401:
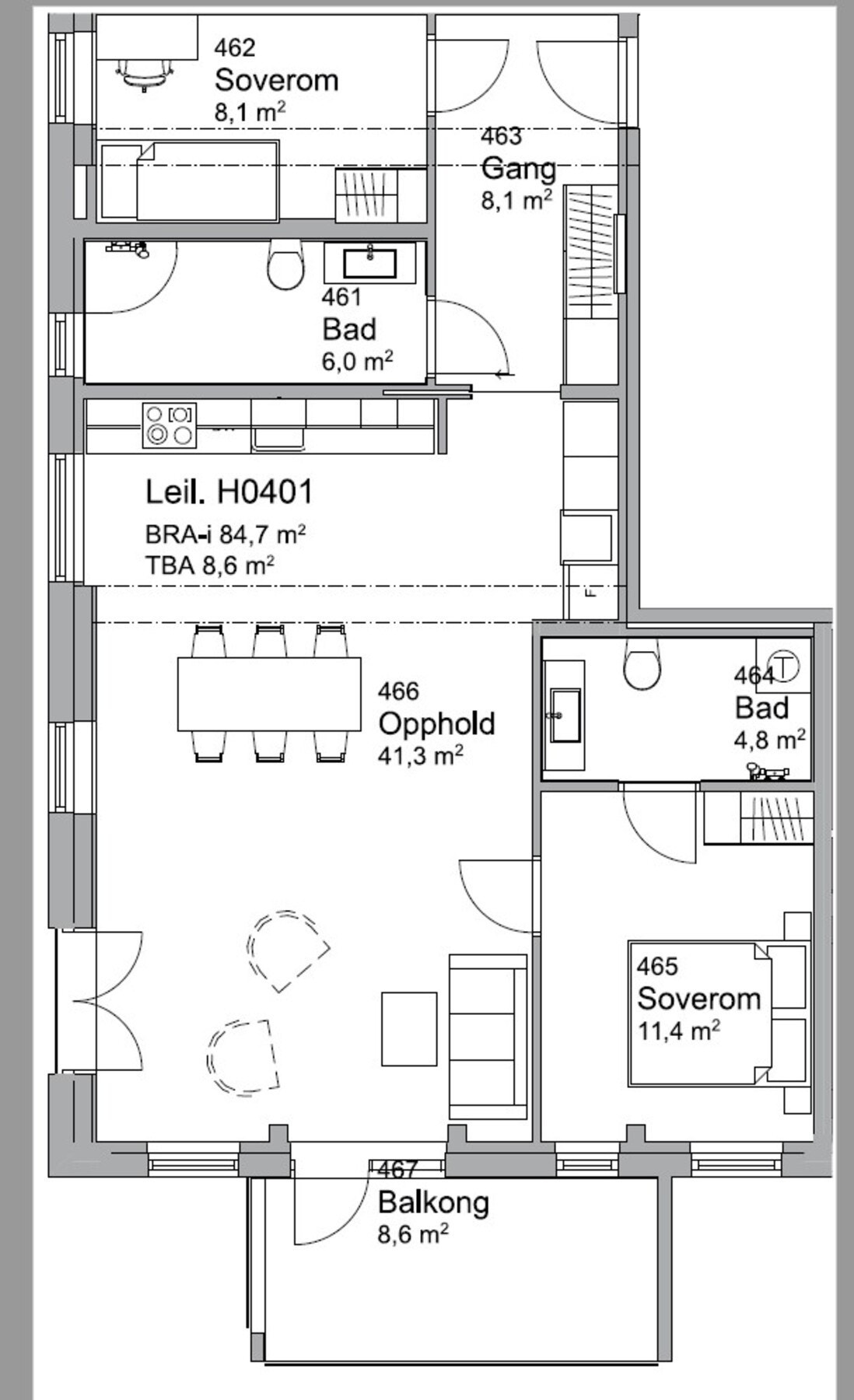
En virkelig nydelig leilighet med en av Svolværs mest attraktive beliggenheter. Leiligheten er på ca. 84,7m² og har to soverom, to bad og en flott balkong. Her kan du nyte morgenkaffen mens du ser ut over havet. Herlig rekreasjon og samtidig følger du med på hva som skjer i havna. Leiligheten har god standard med parkett på gulv, fliser på bad, integrerte hvitevarer på kjøkken og vannbåren varme i alle oppholdsrom.
Leiligheten ligger sentralt til med kort gangavstand til restauranter, caféer, kulturtilbud, kjøpesenter og det yrende livet på kaia. Fra leiligheten tar du heisen ned og går akkurat dit du vil. Dette er en unik mulighet til å sikre deg en leilighet med fantastisk sjøutsikt og kort vei til alt i Svolvær.
Det er muligheter for å leie garasjeplass i bygningens garasje.
Velkommen til hyggelig visning!
En virkelig nydelig leilighet med en av Svolværs mest attraktive beliggenheter. Leiligheten er på ca. 84,7m² og har to soverom, to bad og en flott balkong. Her kan du nyte morgenkaffen mens du ser ut over havet. Herlig rekreasjon og samtidig følger du med på hva som skjer i havna. Leiligheten har god standard med parkett på gulv, fliser på bad, integrerte hvitevarer på kjøkken og vannbåren varme i alle oppholdsrom.
Leiligheten ligger sentralt til med kort gangavstand til restauranter, caféer, kulturtilbud, kjøpesenter og det yrende livet på kaia. Fra leiligheten tar du heisen ned og går akkurat dit du vil. Dette er en unik mulighet til å sikre deg en leilighet med fantastisk sjøutsikt og kort vei til alt i Svolvær.
Det er muligheter for å leie garasjeplass i bygningens garasje.
Velkommen til hyggelig visning!
NB: Knappen for å vise hele beskrivelsen har kun en visuell effekt.
NB: Knappen for å vise hele beskrivelsen har kun en visuell effekt.
Salgsoppgaven beskriver vesentlig og lovpålagt informasjon om eiendommen
Se komplett salgsoppgaveNyttige lenker
Nærområdet
EiendomsMegler 1 Leknes
Vi loser deg trygt gjennom hele boligsalget
Annonseinformasjon
| FINN-kode | 354589366 |
|---|---|
| Sist endret | 16. mars 2026 11:31 |
| Referanse | 17240045 |
Annonsene kan være mangelfulle i forhold til lovpålagt opplysningsplikt. Før bindende avtale inngås oppfordres interessenter til å innhente komplett informasjon fra meglerforetaket, selger eller utleier.


































