Bildegalleri

Nordvik avd. Frogner har gleden av å presentere Seilduksgata 25B.
Inaktiv
Grünerløkka
Selveier m rammetillatelse for utbygging av loft. I dag 91 kvm BRA-I. Utbygget 193 BRA-I. Leieinntekt på kr. 40.000/mnd.
Prisantydning9 500 000 kr
Nøkkelinfo
- Boligtype
- Leilighet
- Eieform
- Selveier
- Soverom
- 6
- Internt bruksareal
- 193 m² (BRA-i)
- Bruksareal
- 193 m²
- Etasje
- 3
- Byggeår
- 1890
- Energimerking
- G - Rød
- Rom
- 7
- Tomteareal
- 648 m² (eiet)
Fasiliteter
Barnevennlig
Bredbåndstilknytning
Kjæledyr tillatt
Kabel-TV
Offentlig vann/kloakk
Sentralt
Utvidelsesmuligheter
Om boligen
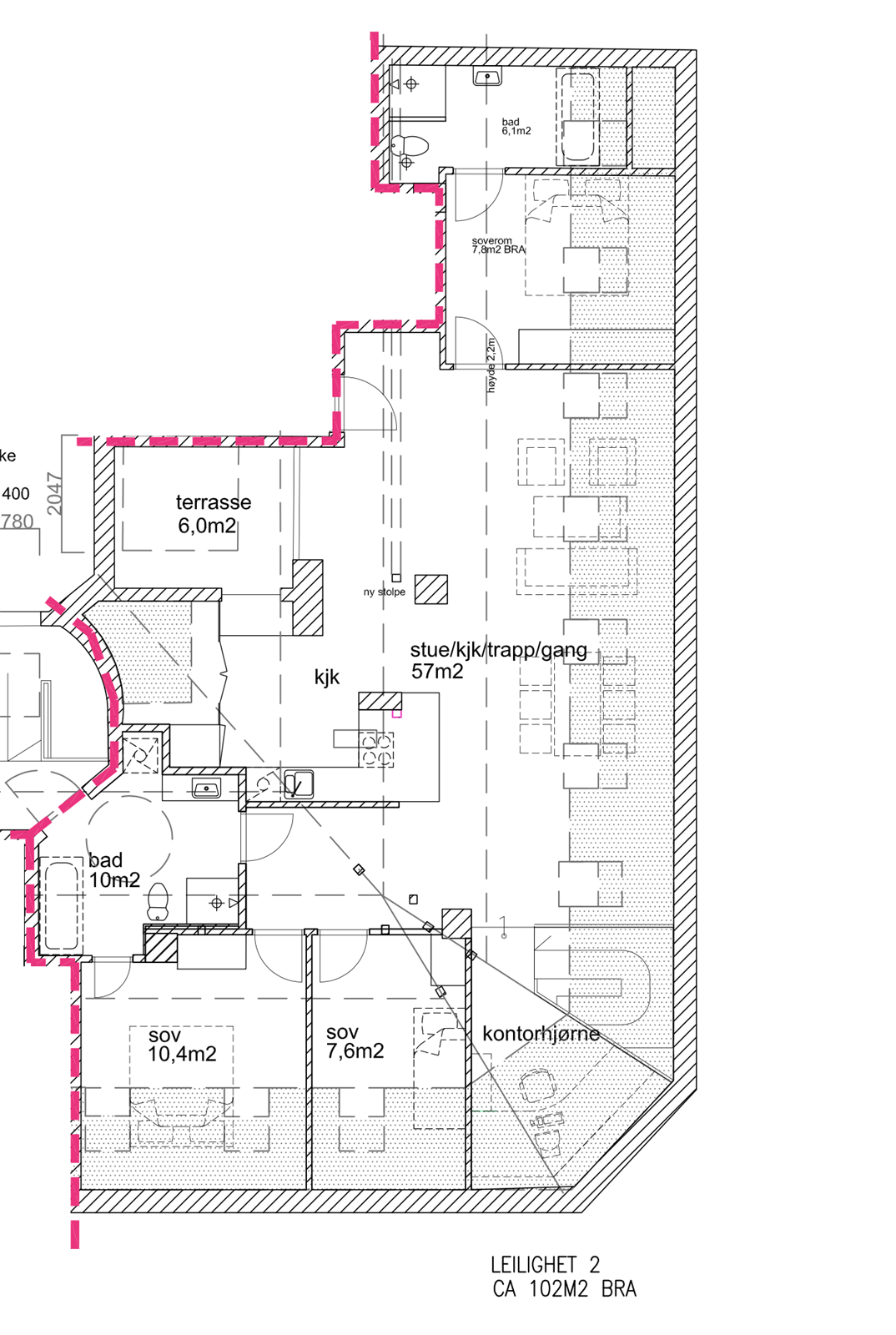
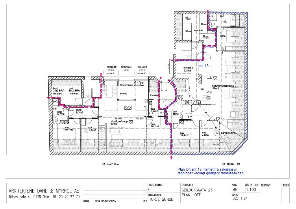
Spennende 7-roms selveierleilighet med sentral og populær beliggenhet ved Birkelunden. Mulighet for utbygging av loftsareal og sammenslåing med leiligheten.
- Det foreligger signert kjøpsavtale for loftsareal i 4. etasje og rammetillatelse for utbygging
- Estimert loftsareal er ca. 102 kvm, sammenslått med leiligheten blir det totale arealet ca 193 kvm over to etasjer
- Rammetillatelse inkl. takterrasse mot bakgård
- Mulighet for hybeldel
- Løpende leieinntekt på kr. 40.000,- pr. mnd
Kjøpesummen for loftsarealet på ca. 102 kvm (17.700,- pr. kvm) kommer i tillegg til kjøpesummen for leiligheten, selger har allerede kjøpt ut loftsboder lik 12 kvm, som trekkes fra i beregning av kjøpesummen til sameiet. Kjøpesum for loftsarealet er slik estimert til kr. 1.593.000,-.
NB: Knappen for å vise hele beskrivelsen har kun en visuell effekt.
NB: Knappen for å vise hele beskrivelsen har kun en visuell effekt.
Salgsoppgaven beskriver vesentlig og lovpålagt informasjon om eiendommen
Se komplett salgsoppgaveNyttige lenker
Nærområdet
Nordvik Frogner
Annonseinformasjon
| FINN-kode | 353817727 |
|---|---|
| Sist endret | 02. feb. 2026 12:12 |
| Referanse | 14-0293/24 |
Annonsene kan være mangelfulle i forhold til lovpålagt opplysningsplikt. Før bindende avtale inngås oppfordres interessenter til å innhente komplett informasjon fra meglerforetaket, selger eller utleier.
































