Bildegalleri

Silje Dammen ved EIE Løren ønsker velkommen til Smeltedigelen 4!
Solgt
Lys og pen 3-roms hjørneleilighet med stor, solrik balkong. Garasjeplass. IN-ordning. V.v/fyring inkl.
Prisantydning4 450 000 kr
Nøkkelinfo
- Boligtype
- Leilighet
- Eieform
- Andel
- Soverom
- 2
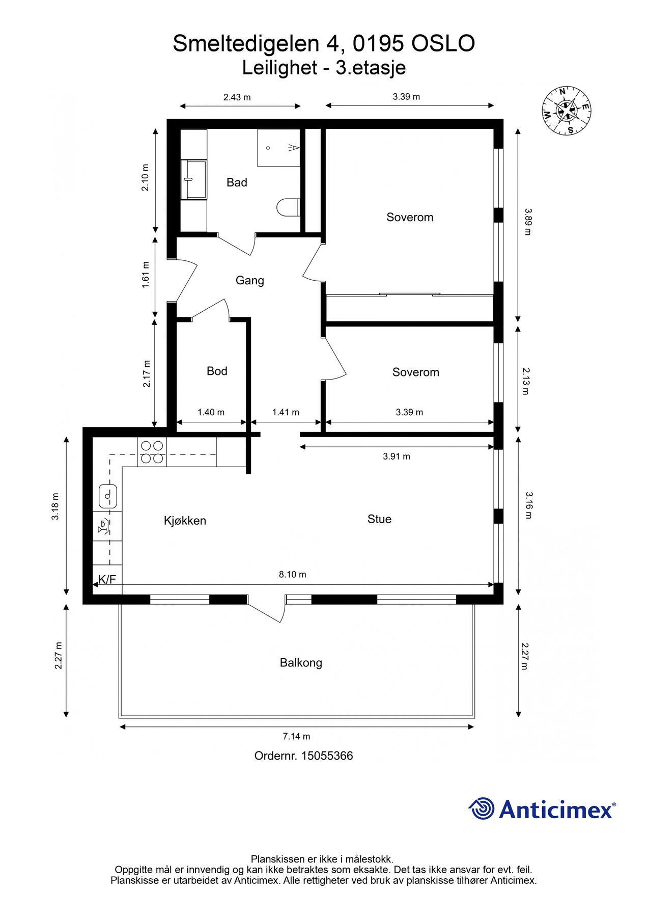
- Internt bruksareal
- 66 m² (BRA-i)
- Bruksareal
- 71 m²
- Eksternt bruksareal
- 5 m² (BRA-e)
- Balkong/Terrasse
- 16 m² (TBA)
- Etasje
- 3
- Byggeår
- 2014
- Energimerking
- D - Mørkegrønn
- Tomteareal
- 3 887 m² (eiet)
Fasiliteter
Barnevennlig
Balkong/Terrasse
Garasje/P-plass
Kabel-TV
Heis
Offentlig vann/kloakk
Parkett
Turterreng
Vaktmester-/vektertjeneste
Sentralt
Bredbåndstilknytning
Moderne
Rolig
Balansert ventilasjon
Om boligen
Silje Dammen ved EIE Løren ønsker velkommen til Smeltedigelen 4!
Dette er en moderne og pen 3-roms andelsleilighet fra 2014 med solrik, romslig balkong på 16 kvm. Hjørneplasseringen kombinert med god takhøyde og store vindusflater gjør at leiligheten oppleves som lys og luftig.
Boligen inneholder et lyst kjøkkenhjørne i åpen løsning mot stuen, samt to gode soverom. Videre er det et flislagt bad med opplegg for vaskemaskin og en entré tilknyttet innvendig bod.
Med boligen følger en ekstern bod på 5 kvm og parkeringsplass i felles garasjeanlegg. Fyring og varmtvann (a-konto), samt tv og internett er inkludert i felleskostnadene.
Fra Kværnerbyen er det gangavstand til idylliske Svartdalsparken med sitt unike turterreng, samt kort vei til sentrum med alt av fasiliteter og servicetilbud.
Ved innfrielse av fellesgjelden går felleskostnadene ned til kr. 4.027,-/mnd. p.t.
Velkommen til en hyggelig visning!
Dette er en moderne og pen 3-roms andelsleilighet fra 2014 med solrik, romslig balkong på 16 kvm. Hjørneplasseringen kombinert med god takhøyde og store vindusflater gjør at leiligheten oppleves som lys og luftig.
Boligen inneholder et lyst kjøkkenhjørne i åpen løsning mot stuen, samt to gode soverom. Videre er det et flislagt bad med opplegg for vaskemaskin og en entré tilknyttet innvendig bod.
Med boligen følger en ekstern bod på 5 kvm og parkeringsplass i felles garasjeanlegg. Fyring og varmtvann (a-konto), samt tv og internett er inkludert i felleskostnadene.
Fra Kværnerbyen er det gangavstand til idylliske Svartdalsparken med sitt unike turterreng, samt kort vei til sentrum med alt av fasiliteter og servicetilbud.
Ved innfrielse av fellesgjelden går felleskostnadene ned til kr. 4.027,-/mnd. p.t.
Velkommen til en hyggelig visning!
NB: Knappen for å vise hele beskrivelsen har kun en visuell effekt.
NB: Knappen for å vise hele beskrivelsen har kun en visuell effekt.
Salgsoppgaven beskriver vesentlig og lovpålagt informasjon om eiendommen
Se komplett salgsoppgaveNærområdet
EIE eiendomsmegling Løren
Annonseinformasjon
| FINN-kode | 353298581 |
|---|---|
| Sist endret | 03. mars 2025 13:52 |
| Referanse | 71240119 |
Annonsene kan være mangelfulle i forhold til lovpålagt opplysningsplikt. Før bindende avtale inngås oppfordres interessenter til å innhente komplett informasjon fra meglerforetaket, selger eller utleier.










































