Bildegalleri

DNB Eiendom v/Bjørn Harald Sandvik presenterer en velholdt enebolig med rolig, landlig og familievennlig beliggenhet på Sandhornøy
SANDHORNØY/MÅRNES
Pen og mye renovert enebolig med alt på ett plan | Landlig beliggenhet m/nærhet til skole & barnehage | Tomt over 3 mål!
Prisantydning2 850 000 kr
Nøkkelinfo
- Boligtype
- Enebolig
- Eieform
- Eier (Selveier)
- Soverom
- 3
- Internt bruksareal
- 124 m² (BRA-i)
- Bruksareal
- 244 m²
- Eksternt bruksareal
- 120 m² (BRA-e)
- Balkong/Terrasse
- 46 m² (TBA)
- Etasje
- 2
- Byggeår
- 1973
- Tomteareal
- 3 051 m² (eiet)
Fasiliteter
Balkong/Terrasse
Barnevennlig
Hage
Peis/Ildsted
Rolig
Turterreng
Visning
Velkommen til visning! Meld deg på ved å trykke "visningspåmelding" i våre boligannonser. Visning med megler til stede vil ikke bli avholdt uten påmeldinger. Ta gjerne kontakt med megler i forkant av visningen om du har spørsmål.
VisningspåmeldingOm boligen
DNB Eiendom v/Bjørn Harald Sandvik presenterer en velholdt enebolig med rolig, landlig og familievennlig beliggenhet på Sandhornøy.
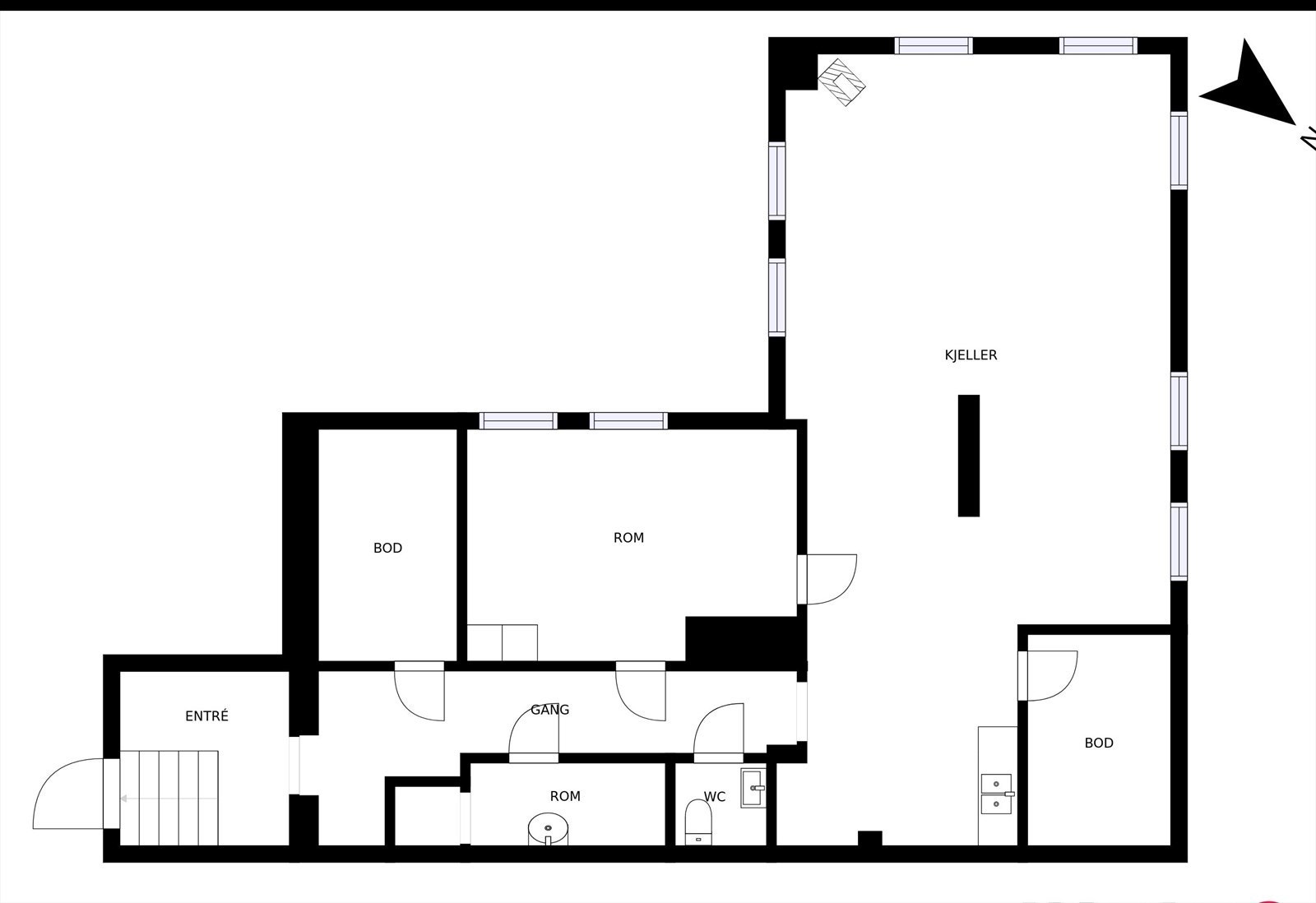
Boligen har "alt" på ett plan, samt en stor kjeller. Det er gjort oppgraderinger i nyere tid som bl.a. nytt tak, skiftet enkelte vinduer, ny bordkledning på to vegger, oppgradert enkelte innvendige overflater og satt inn nytt kjøkken og renovert bad. Fra stuen er det utgang til en solrik vestvendt veranda. Tomten er på ca. 3 mål og er pent opparbeidet med en stor tilnærmet flat hage og div beplantning.
Her bor du kun en kort kjøretur unna både skole, barnehage og dagligvarebutikk. For øvrig Sandhornøy på fine friluftsområder som bl.a. Sandhornet (993 moh) og den populære sandstranden "Langsand".
Velkommen til visning - Husk påmelding!
Boligen har "alt" på ett plan, samt en stor kjeller. Det er gjort oppgraderinger i nyere tid som bl.a. nytt tak, skiftet enkelte vinduer, ny bordkledning på to vegger, oppgradert enkelte innvendige overflater og satt inn nytt kjøkken og renovert bad. Fra stuen er det utgang til en solrik vestvendt veranda. Tomten er på ca. 3 mål og er pent opparbeidet med en stor tilnærmet flat hage og div beplantning.
Her bor du kun en kort kjøretur unna både skole, barnehage og dagligvarebutikk. For øvrig Sandhornøy på fine friluftsområder som bl.a. Sandhornet (993 moh) og den populære sandstranden "Langsand".
Velkommen til visning - Husk påmelding!
NB: Knappen for å vise hele beskrivelsen har kun en visuell effekt.
NB: Knappen for å vise hele beskrivelsen har kun en visuell effekt.
Salgsoppgaven beskriver vesentlig og lovpålagt informasjon om eiendommen
Se komplett salgsoppgaveNyttige lenker
Nærområdet
DNB Eiendom AS
Fra hjem til hjem
Annonseinformasjon
| FINN-kode | 353297052 |
|---|---|
| Sist endret | 15. okt. 2025 08:05 |
| Referanse | 813240147 |
Annonsene kan være mangelfulle i forhold til lovpålagt opplysningsplikt. Før bindende avtale inngås oppfordres interessenter til å innhente komplett informasjon fra meglerforetaket, selger eller utleier.




































