Bildegalleri

Nordvik Bolig ved Thomas Kvålsvoll har gleden av å presentere Ilsvikveien 22!
Ilsvika
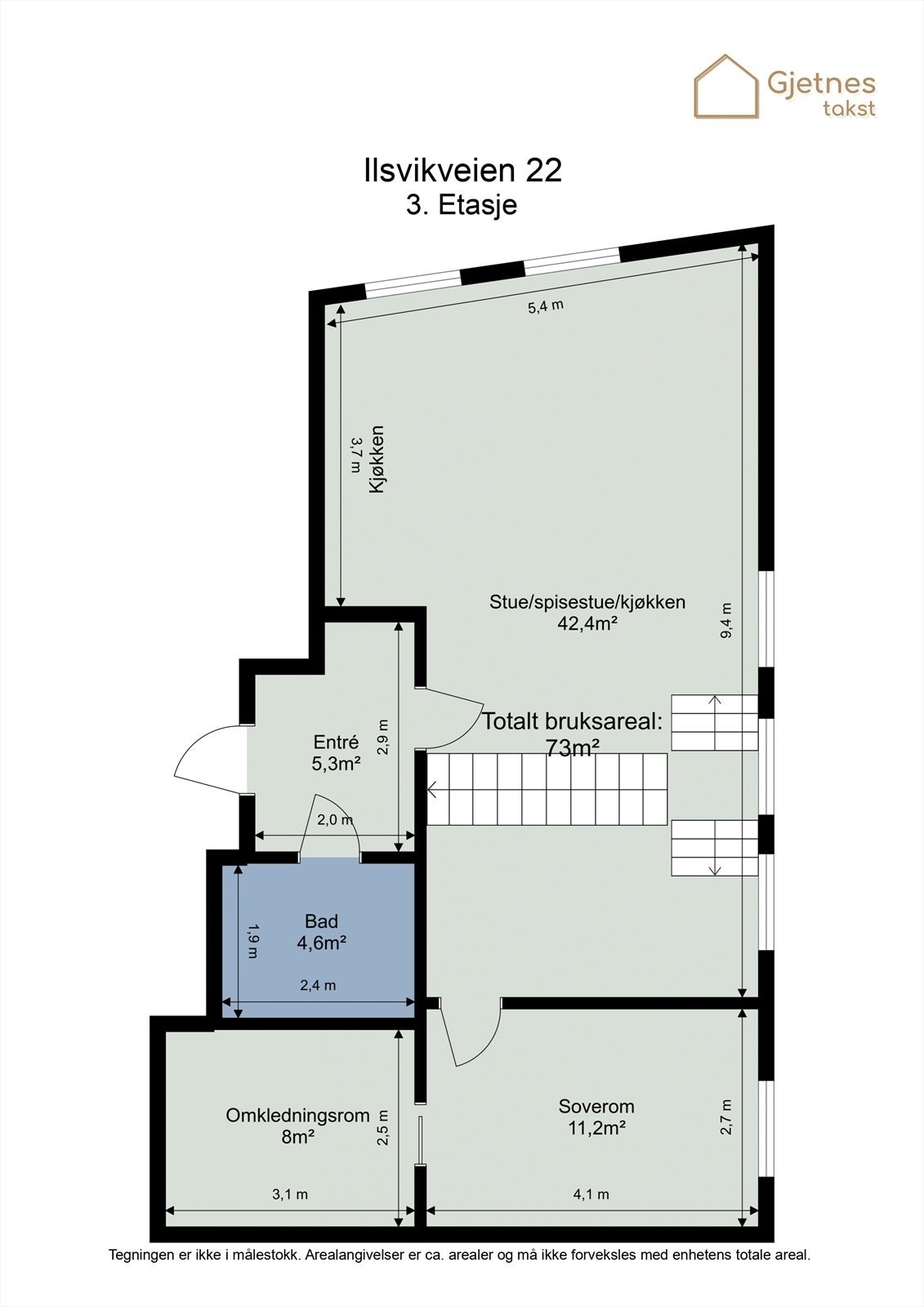
Eksklusiv toppleilighet fra 2024. To private takterrasser. To bad. To garasjeplasser. Utsikt mot Munkholmen. Heis.
Prisantydning9 890 000 kr
Nøkkelinfo
- Boligtype
- Leilighet
- Eieform
- Eier (Selveier)
- Soverom
- 2
- Internt bruksareal
- 114 m² (BRA-i)
- Bruksareal
- 114 m²
- Balkong/Terrasse
- 22 m² (TBA)
- Etasje
- 3
- Byggeår
- 2024
- Energimerking
- E - Mørkegrønn
- Rom
- 4
- Tomteareal
- 5 205 m² (eiet)
Fasiliteter
Takterrasse
Aircondition
Balkong/Terrasse
Barnevennlig
Bredbåndstilknytning
Garasje/P-plass
Hage
Heis
Kjæledyr tillatt
Kabel-TV
Offentlig vann/kloakk
Parkett
Rolig
Sentralt
Utsikt
Vaktmester-/vektertjeneste
Bademulighet
Fiskemulighet
Turterreng
Lademulighet
Balansert ventilasjon
Visning
OBS! Alle våre visninger har påmelding. Meld deg på visning ved å trykke på lenken visningspåmelding. Passer ikke tidspunktet, send megler en e-post og avtal tid for privatvisning.
VisningspåmeldingOm boligen
Ekslusiv toppleilighet over to plan - stille og tilbaketrukket i Ilsvika. Beliggenheten passer utmerket for deg som vil ha ro, uten å gi avkall på det pulserende bylivet. Selve leiligheten er fra 2024 og har gjennomgående høy standard med flere tilvalg utover standard leveranse i prosjektet. Med to private takterrasser og fantastisk utsikt får man fort luksusfølelsen i hverdagen. To garasjeplasser i kjeller samt bod medfølger.
Kvaliteter:
Kvaliteter:
- Attraktiv blieggenhet.
- To lune takterrasser. Utsikt mot Munkholmen.
- To garasjeplasser.
- BRA-i 114 m² og gulvareal på 140 m².
- Påkostet kjøkken fra HTH.
- To flislagte bad.
- Hovedsoverom med en-suite bad.
- Generøs takhøyde.
- Nybyggstandard.
- God lagringsplass.
- Heis. Vannbåren varme. Balansert ventilasjon.
NB: Knappen for å vise hele beskrivelsen har kun en visuell effekt.
NB: Knappen for å vise hele beskrivelsen har kun en visuell effekt.
Salgsoppgaven beskriver vesentlig og lovpålagt informasjon om eiendommen
Se komplett salgsoppgaveNyttige lenker
Nærområdet
Nordvik Trondheim
Vi vet hva det er verdt
Annonseinformasjon
| FINN-kode | 353295450 |
|---|---|
| Sist endret | 08. des. 2025 08:26 |
| Referanse | 42-0034/24 |
Annonsene kan være mangelfulle i forhold til lovpålagt opplysningsplikt. Før bindende avtale inngås oppfordres interessenter til å innhente komplett informasjon fra meglerforetaket, selger eller utleier.




































