Bildegalleri

Heimdal Eiendomsmegling v/ Ludvig Bøgseth har gleden av å presentere Flatåsenget 31F - et pent, praktisk og familievennlig andelsrekkehus over to etasjer.
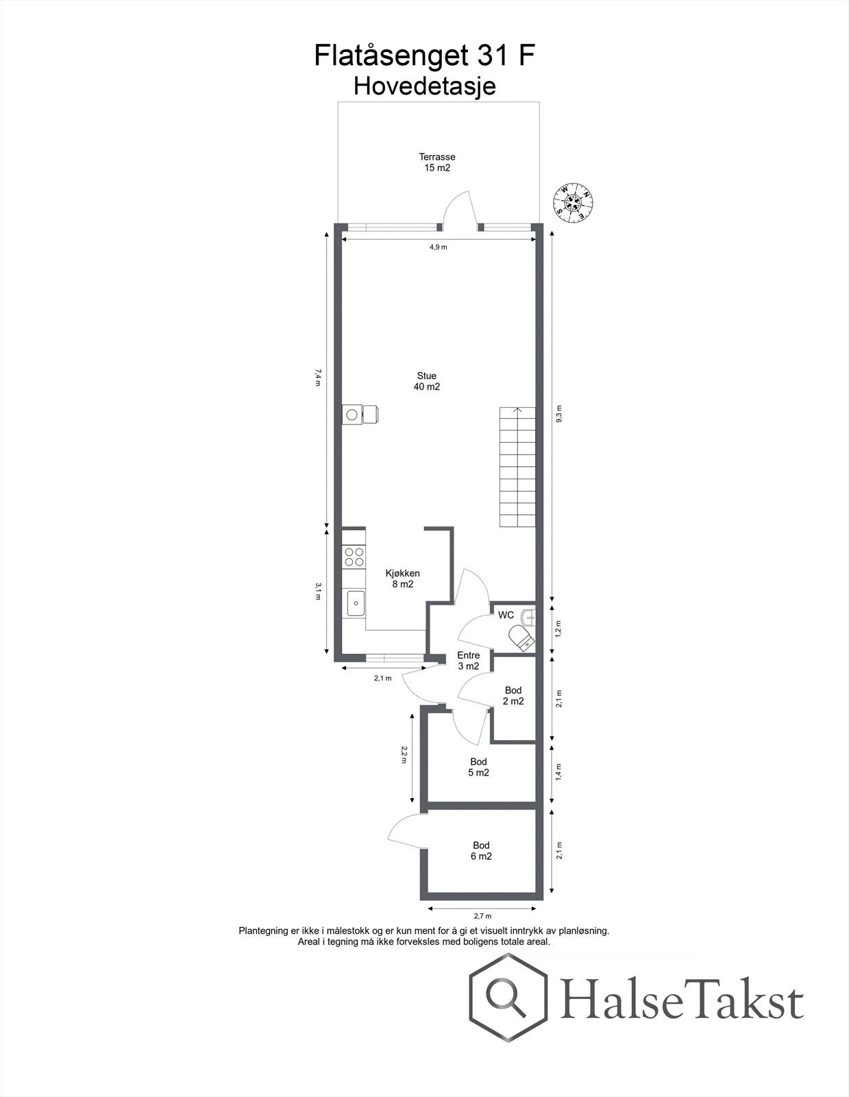
Pent rekkehus med solrike uteplasser | Ildsted | Tre romslige soverom | Tre boder | Eget vaskerom | Vendt mot friareal
Nøkkelinfo
- Boligtype
- Rekkehus
- Eieform
- Andel
- Soverom
- 3
- Internt bruksareal
- 113 m² (BRA-i)
- Bruksareal
- 119 m²
- Eksternt bruksareal
- 6 m² (BRA-e)
- Balkong/Terrasse
- 15 m² (TBA)
- Byggeår
- 1978
- Energimerking
- F - Oransje
- Tomteareal
- 69 983 m² (eiet)
Fasiliteter
Om boligen
Verdt å merke seg:
- Vender ut mot et stort friareal
- Lekeplass rett utenfor døra
- Markterrasse på ca. 15 m²
- Hage med trær og blomsterbed
- Innbydende stue med peisovn
- Varmtvannstank fra 2020
- Tre romslige soverom
- Rikelig med lagringsplass
- Barnevennlig og rolig område
Velkommen!
Salgsoppgaven beskriver vesentlig og lovpålagt informasjon om eiendommen
Se komplett salgsoppgaveNyttige lenker
Nærområdet
Heimdal Eiendomsmegling avd. Heimdal
Prisstatistikk
Flatåsenget 31F
på annonsen
prisantydning per kvadratmeter
Prisfordeling
Pris per m² ligger 347 kr under snittet for rekkehus i Trondheim Sør.
Grafen viser antall rekkehus solgt i Trondheim Sør siste året fordelt på pris per m² - totalt 180 rekkehus
Antall boliger
Kvadratmeterpris tilsvarer prisantydning pluss fellesgjeld per kvadratmeter (p-rom eller BRA-i). Prisene i grafen er avrundet til nærmeste 1000 kr.
Annonseinformasjon
| FINN-kode | 352443746 |
|---|---|
| Sist endret | 25. mai 2024 12:04 |
| Referanse | 8-24-0047 |
Annonsene kan være mangelfulle i forhold til lovpålagt opplysningsplikt. Før bindende avtale inngås oppfordres interessenter til å innhente komplett informasjon fra meglerforetaket, selger eller utleier.








































