Bildegalleri

Leiligheten er godt velholdt med flott bad og kjøkken, flotteoriginale gulv og god takhøyde. Herkandu flytte rett inn!
VISNING AVLYST! BUD GITT DIREKTE TIL SELGER - Sjarmfull, lys og gjennomgående eierleil. m/nyere bad og separat kjøkken.
Nøkkelinfo
- Boligtype
- Leilighet
- Eieform
- Eier (Selveier)
- Soverom
- 1
- Internt bruksareal
- 51 m² (BRA-i)
- Bruksareal
- 56 m²
- Eksternt bruksareal
- 5 m² (BRA-e)
- Etasje
- 2
- Byggeår
- 1938
- Energimerking
- F - Mørkegrønn
- Rom
- 2
- Tomteareal
- 2 921 m² (eiet)
Fasiliteter
Om boligen
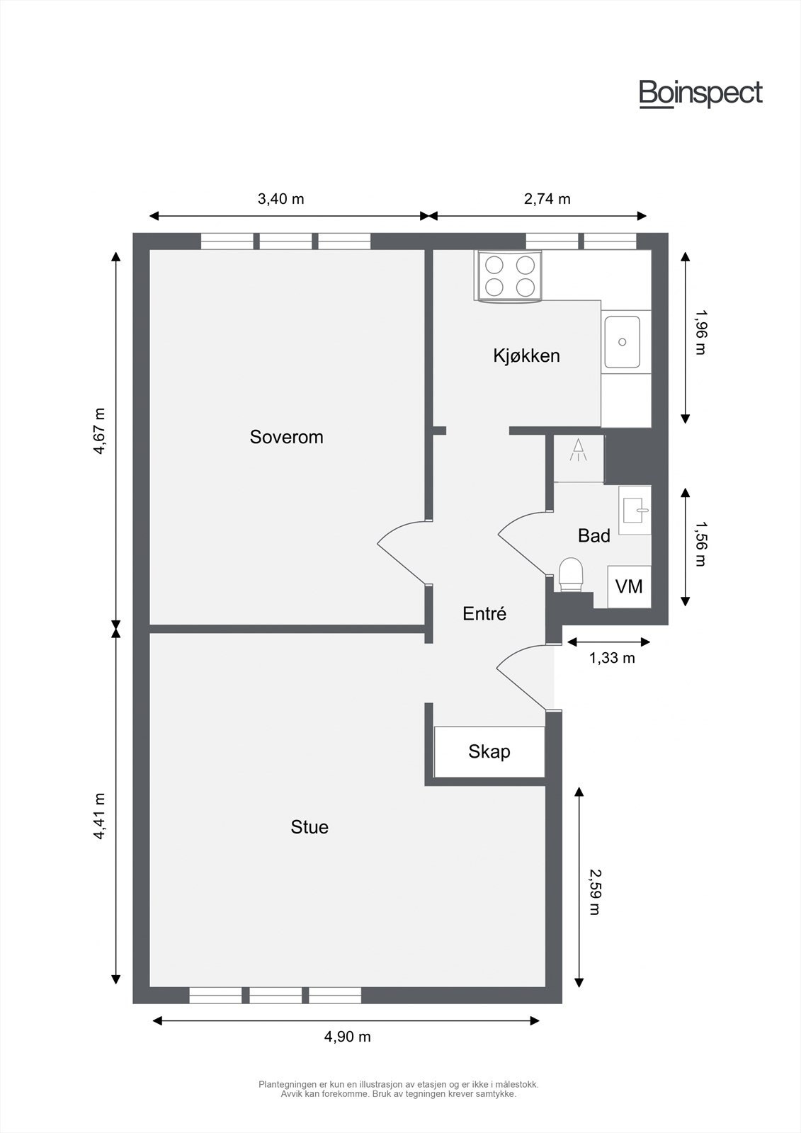
Leiligheten har en god planløsning, store vindusflater med dype karmer, samt god takhøyde og vender inn mot en rolig bakgård. Inneholder entré, stue, soverom, kjøkken og bad. Godt med oppbevaring i stor skyvedørsgarderobe og innvendig bod.
Kort om boligen:
- Bad 2022
- Vinduer/tak 2020
- Originale tregulv
- Mulighet for å omgjøre til 3-roms
- Kjellerbod på 4,5 kvm.
- Mulig å leie p-plass
- Felles sykkelrom
- Perfekt førstegangskjøp/utleie
- Nærhet til alle bymessige fasiliteter
Velkommen!
Salgsoppgaven beskriver vesentlig og lovpålagt informasjon om eiendommen
Se komplett salgsoppgaveNærområdet
Notar Oslo
Prisstatistikk
Knut Alvssons vei 35
på annonsen
prisantydning per kvadratmeter
Prisfordeling
Pris per m² ligger 9 275 kr under snittet for leiligheter i Helsfyr - Sinsen.
Grafen viser antall leiligheter solgt i Helsfyr - Sinsen siste året fordelt på pris per m² - totalt 1 708 leiligheter
Antall boliger
Kvadratmeterpris tilsvarer prisantydning pluss fellesgjeld per kvadratmeter (p-rom eller BRA-i). Prisene i grafen er avrundet til nærmeste 1000 kr.
Annonseinformasjon
| FINN-kode | 351424967 |
|---|---|
| Sist endret | 18. nov. 2024 17:19 |
| Referanse | NO17.2415 |
Annonsene kan være mangelfulle i forhold til lovpålagt opplysningsplikt. Før bindende avtale inngås oppfordres interessenter til å innhente komplett informasjon fra meglerforetaket, selger eller utleier.





































