Bildegalleri

Fasade
DRAMMEN - BRAGERNES - Delikat 3 roms selveierleilighet - fantastiske fellesarealer
Nøkkelinfo
- Boligtype
- Leilighet
- Eieform
- Eier (Selveier)
- Soverom
- 2
- Internt bruksareal
- 75 m² (BRA-i)
- Bruksareal
- 75 m²
- Balkong/Terrasse
- 15 m² (TBA)
- Etasje
- 1
- Byggeår
- 2018
- Energimerking
- C - Mørkegrønn
- Tomteareal
- 3 894 m² (eiet)
- Boligselgerforsikring
- Ja
Fasiliteter
Visning
Om boligen
Grev Wedels Plass ligger i en rolig del av Bragernes sentrum. Den isfrie gågata, bakeri, butikker, restauranter og et yrende kulturliv finnes rett utenfor din egen stuedør.
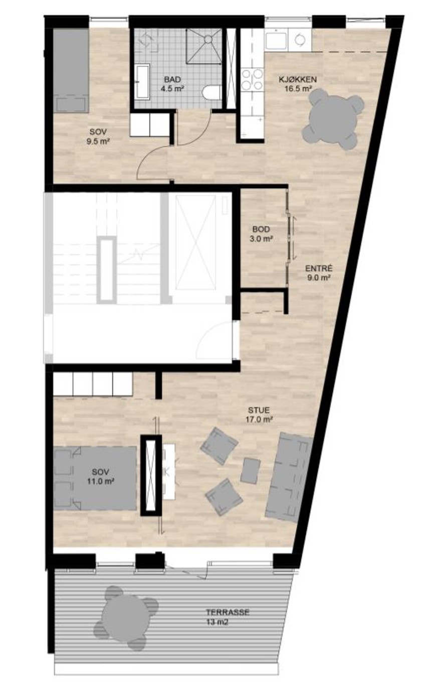
Leiligheten ligger i 1. etasje og inneholder bla: entrè/gang, teknisk rom/bod, kjøkken, bad/wc/vaskerom, 2 soverom og stue. I tillegg medf. en bod i kjeller.
Med GWP Aktiv har en tilgang på følgende:
Her er det trimrom - velværeavdeling m/skifterom/dusjanlegg, boblebad, sauna og badstue. 3 stk felles takterrasser. 2 stk gjesterom med bad til leie for 500,- for første døgn og deretter 250,- per døgn. Gjesterom på 14 kvm med dobbeltseng, wc/bad, tildelt sengetøy og håndklær. (Som på hotell) og kan bookes 3 måneder frem i tid.
Selskapslokaler med spiseplass til 50. Bodega med plass til 10
For mer info gå inn på www.gwpaktiv.no
Salgsoppgaven beskriver vesentlig og lovpålagt informasjon om eiendommen
Se komplett salgsoppgaveNyttige lenker
Nærområdet

Røyken og Omegn Eiendom AS
Annonsene kan være mangelfulle i forhold til lovpålagt opplysningsplikt. Før bindende avtale inngås oppfordres interessenter til å innhente komplett informasjon fra meglerforetaket, selger eller utleier.



































