Bildegalleri

Velkommen til Hvalstad
Moderne og innholdsrik leilighet fra 2023 med to uteplasser, 2 bad/wc, garasjeplass, 5 års garanti og IN-ordning
Prisantydning9 500 000 kr
Nøkkelinfo
- Boligtype
- Leilighet
- Eieform
- Andel
- Soverom
- 4
- Primærrom
- 130 m²
- Bruksareal
- 130 m²
- Etasje
- 1
- Byggeår
- 2023
- Energimerking
- A - Oransje
- Rom
- 5
- Tomteareal
- 4 868 m² (eiet)
Fasiliteter
Balkong/Terrasse
Garasje/P-plass
Heis
Offentlig vann/kloakk
Parkett
Turterreng
Utsikt
Bredbåndstilknytning
Moderne
Rolig
Lademulighet
Balansert ventilasjon
Visning
torsdag, 05. februar
17:00 – 18:00
Velkommen til visning!
Vennligst merk at det kun gjennomføres visninger etter avtale innenfor angitt tidsrom. Ta kontakt for å booke deres tid.
Om boligen
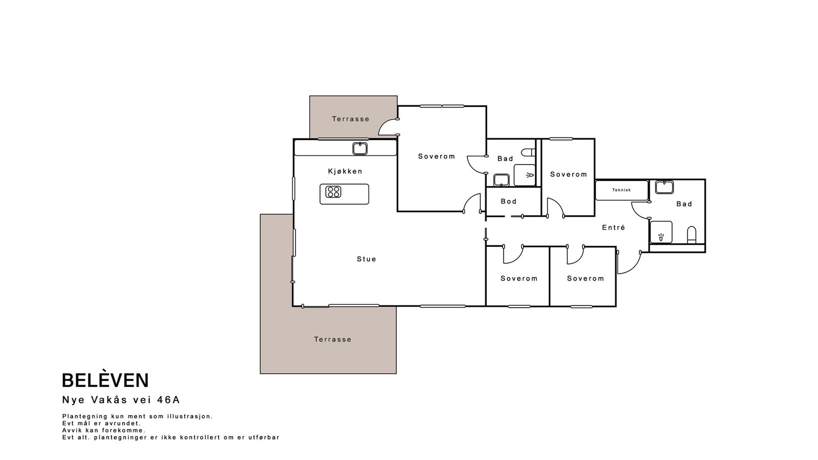
Velkommen til Nye Vakås vei 46A. En gjennomgående leilighet med to terrasser, store vindusflater og ettertraktet beliggenhet. Denne boligen har kort vei til alt du ønsker, men som også setter pris på frodige omgivelser med nærhet til sjøen og marka. Dette er en ny og moderne leilighet fra 2023 med 5 års garanti som byr på ny teknologi med energiøkonomiske og klimavennlige løsninger.
Leiligheten har en åpen og luftig planløsning, fargepaletten er lun og harmonisk, og materialene er gjennomgående solide. Stuen ligger i en åpen løsning med det lekre kjøkkenet fra HTH og er et sosialt samlingspunkt i leiligheten. Videre er det fire gode soverom, to baderom, hvorav hovedsoverom har tilgang til en-suite bad og direkte utgang til en terrasse på ca. 6 m².
Leiligheten har en åpen og luftig planløsning, fargepaletten er lun og harmonisk, og materialene er gjennomgående solide. Stuen ligger i en åpen løsning med det lekre kjøkkenet fra HTH og er et sosialt samlingspunkt i leiligheten. Videre er det fire gode soverom, to baderom, hvorav hovedsoverom har tilgang til en-suite bad og direkte utgang til en terrasse på ca. 6 m².
NB: Knappen for å vise hele beskrivelsen har kun en visuell effekt.
NB: Knappen for å vise hele beskrivelsen har kun en visuell effekt.
Salgsoppgaven beskriver vesentlig og lovpålagt informasjon om eiendommen
Se komplett salgsoppgaveNærområdet
Belèven Eiendomsmegling
Annonsene kan være mangelfulle i forhold til lovpålagt opplysningsplikt. Før bindende avtale inngås oppfordres interessenter til å innhente komplett informasjon fra meglerforetaket, selger eller utleier.


















