Bildegalleri

Velkommen til Avisgata 7 - Presentert av Eiendomsmegler1 Lofoten. Foto: EFKT.
Svolvær
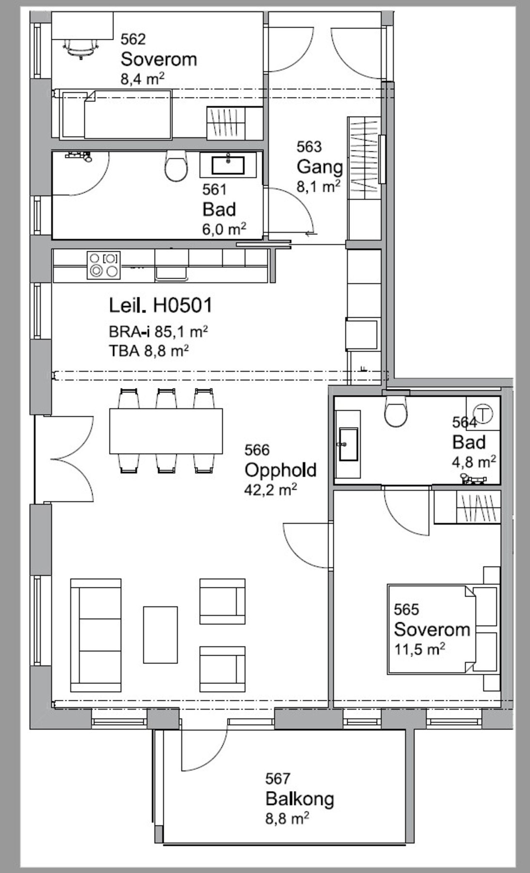
Splitter ny leilighet i toppetasjen med 2 soverom og 2 bad - Vakker sjøutsikt - Gode solforhold
Prisantydning10 290 000 kr
Nøkkelinfo
- Boligtype
- Leilighet
- Eieform
- Selveier
- Soverom
- 2
- Internt bruksareal
- 85 m² (BRA-i)
- Bruksareal
- 90 m²
- Eksternt bruksareal
- 5 m² (BRA-e)
- Balkong/Terrasse
- 8 m² (TBA)
- Etasje
- 5
- Byggeår
- 2023
- Energimerking
- B - Mørkegrønn
- Rom
- 4
- Tomteareal
- 1 511 m² (eiet)
Fasiliteter
Balkong/Terrasse
Garasje/P-plass
Alarm
Heis
Offentlig vann/kloakk
Ingen gjenboere
Parkett
Utsikt
Sentralt
Bredbåndstilknytning
Moderne
Balansert ventilasjon
Om boligen
Fantastisk flott toppleilighet med nydelig utsikt og gode solforhold. Delikat innredet og med nydelig sjøutsikt, kombinasjonen gjør denne til en av de mest attraktive leiligheter i Svolvær.
Leiligheten er på 85 m² og har to soverom, to lekre bad og en flott balkong. Her kan du nyte morgenkaffen og ser ut over havet fra din egen balkong. Leiligheten har god standard med parkett på gulv, fliser på bad, integrerte hvitevarer på kjøkken og vannbåren varme i alle oppholdsrom. Det er i tillegg utvendig solskjerming med fjernkontroller, Porttelefon og downlights i de fleste rom.
Leiligheten ligger sentralt til med kort gangavstand til restauranter, caféer, kulturtilbud, kjøpesenter og det yrende livet på kaia. Fra leiligheten tar du heisen ned og går akkurat dit du vil. Dette er en unik mulighet til å sikre deg en leilighet med fantastisk sjøutsikt og kort vei til alt i Svolvær.
Det er muligheter for å leie garasjeplass i bygningens garasje.
Velkommen til hyggelig visning!
Leiligheten er på 85 m² og har to soverom, to lekre bad og en flott balkong. Her kan du nyte morgenkaffen og ser ut over havet fra din egen balkong. Leiligheten har god standard med parkett på gulv, fliser på bad, integrerte hvitevarer på kjøkken og vannbåren varme i alle oppholdsrom. Det er i tillegg utvendig solskjerming med fjernkontroller, Porttelefon og downlights i de fleste rom.
Leiligheten ligger sentralt til med kort gangavstand til restauranter, caféer, kulturtilbud, kjøpesenter og det yrende livet på kaia. Fra leiligheten tar du heisen ned og går akkurat dit du vil. Dette er en unik mulighet til å sikre deg en leilighet med fantastisk sjøutsikt og kort vei til alt i Svolvær.
Det er muligheter for å leie garasjeplass i bygningens garasje.
Velkommen til hyggelig visning!
NB: Knappen for å vise hele beskrivelsen har kun en visuell effekt.
NB: Knappen for å vise hele beskrivelsen har kun en visuell effekt.
Salgsoppgaven beskriver vesentlig og lovpålagt informasjon om eiendommen
Se komplett salgsoppgaveNyttige lenker
Nærområdet
EiendomsMegler 1 Leknes
Vi loser deg trygt gjennom hele boligsalget
Annonseinformasjon
| FINN-kode | 348702610 |
|---|---|
| Sist endret | 16. mars 2026 11:33 |
| Referanse | 17240054 |
Annonsene kan være mangelfulle i forhold til lovpålagt opplysningsplikt. Før bindende avtale inngås oppfordres interessenter til å innhente komplett informasjon fra meglerforetaket, selger eller utleier.































