Bildegalleri

Velkommen til visning i Ankerveien 40A!
Inaktiv
Holmenkollen
Pen 3-roms topp-endeleilighet i attraktivt boligområde. Oppusset i 2024. Garasjeplass. Solrik 8kvm balkong med utsikt
Prisantydning6 400 000 kr
Nøkkelinfo
- Boligtype
- Leilighet
- Eieform
- Eier (Selveier)
- Soverom
- 2
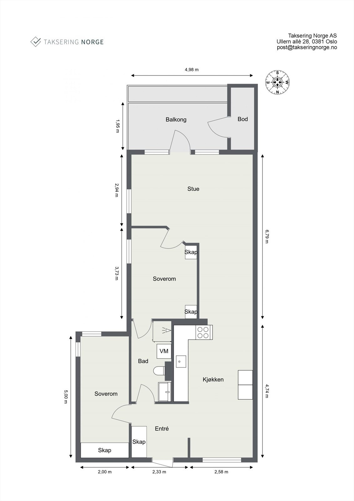
- Primærrom
- 76 m²
- Bruksareal
- 77 m²
- Etasje
- 3
- Byggeår
- 1990
- Energimerking
- E - Gul
- Rom
- 3
- Tomteareal
- 9 687 m² (eiet)
Fasiliteter
Balkong/Terrasse
Barnevennlig
Bredbåndstilknytning
Garasje/P-plass
Kjæledyr tillatt
Kabel-TV
Offentlig vann/kloakk
Parkett
Rolig
Utsikt
Visning
For å delta på visning, ber vi om at du melder deg på. Da sikrer vi at du får nødvendig informasjon og at det er satt av tilstrekkelig med tid. Kontakt megler dersom annet tidspunkt ønskes. Husk å lese salgsoppgaven før visningen, så du stiller forberedt.
Ønsker du kun å bli holdt orientert, kan du fra eiendommens hjemmeside få varsel om solgtpris, eller kontakte megler.
VisningspåmeldingOm boligen
Dette er en flott 3-roms med god beliggenhet i Nedre Holmenkollen med nytt 1-stavs gulv og nymalte overflater i 2024. Leiligheten ligger sydvendt i byggets 3. etasje med gode lysforhold fra morgen til kveld, og med flott utsikt. Rett utenfor døren finner du blant annet bussforbindelse, søndagsåpen Joker, Rema 1000, fotballbane og skole. Her bor du i et rolig og veletablert område med kort nærhet til det aller meste.
Høydepunkter
Velkommen til visning!
Høydepunkter
- Attraktiv beliggenhet i Nedre Holmenkollen boligsameie
- Garasjeplass med lademuligheter medfølger
- Ingen fellesgjeld
- Internett og kabel-TV inkludert i fellesutgiftene
- Usjenert balkong på 8 kvm med utsikt og gode solforhold
Velkommen til visning!
NB: Knappen for å vise hele beskrivelsen har kun en visuell effekt.
NB: Knappen for å vise hele beskrivelsen har kun en visuell effekt.
Salgsoppgaven beskriver vesentlig og lovpålagt informasjon om eiendommen
Se komplett salgsoppgaveNyttige lenker
Nærområdet
Krogsveen Bærum
Velkommen til en enklere boligreise.
Annonseinformasjon
| FINN-kode | 348663613 |
|---|---|
| Sist endret | 17. okt. 2024 07:42 |
| Referanse | KR10.241 |
Annonsene kan være mangelfulle i forhold til lovpålagt opplysningsplikt. Før bindende avtale inngås oppfordres interessenter til å innhente komplett informasjon fra meglerforetaket, selger eller utleier.




































