Bildegalleri

Velkommen til Stemorkroken 49 - Presentert av EIE Eiendomsmegling ved Geir Einar Moen!
Ny og moderne 2(3)-roms toppleilighet m/ heisadkomst | Garasje m/ elbil-lader | Sørvendt balkong | 4 år med nybyggaranti
Nøkkelinfo
- Boligtype
- Leilighet
- Eieform
- Eier (Selveier)
- Soverom
- 1
- Internt bruksareal
- 49 m² (BRA-i)
- Bruksareal
- 54 m²
- Eksternt bruksareal
- 5 m² (BRA-e)
- Balkong/Terrasse
- 6 m² (TBA)
- Etasje
- 3
- Byggeår
- 2023
- Energimerking
- A - Oransje
- Rom
- 2
- Tomteareal
- 1 999 m² (eiet)
Fasiliteter
Om boligen
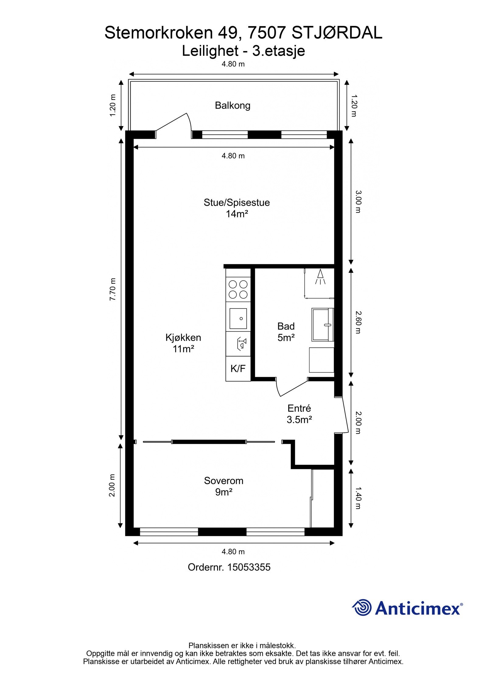
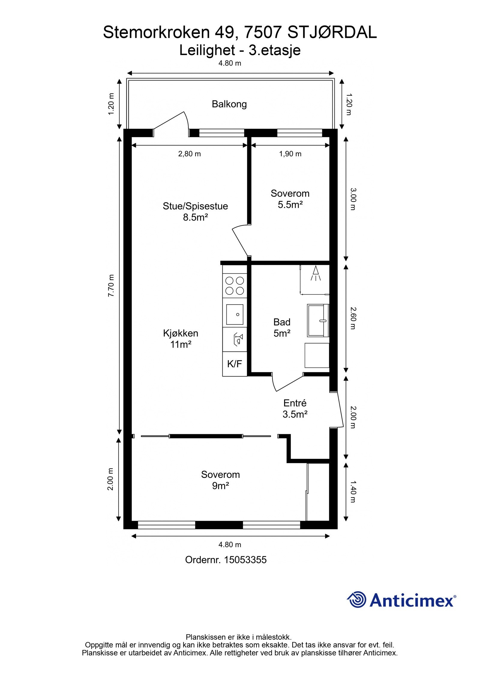
Velkommen til Stemorkroken 49 presentert av EIE Eiendomsmegling v/ Geir Einar Moen - En moderne og påkostet 2(3)-roms selveierleilighet med sentrumsnær beliggenhet i Fosslia Hageby. Boligen ble oppført i 2023 og inneholder gang, stue, kjøkken, soverom, bad og sørvendt balkong på 6 kvm. Det medfølger egen parkeringsplass i garasjekjeller med elbil-lader.
Høydepunkter:
- Sørvendt balkong med gode solforhold og flott utsikt
- Mulighet for å etablere ekstra soverom
- Parkeringsplass i p-kjeller med elbil-lader
- Påkostet med tilvalg
- 4 år igjen med nybyggaranti
- Lave fellesutgifter med "alt" inkludert
- Tilstandsgrad 1 på alle punkter
- Bod i kjeller
- Smarthjem med hjemme-borte og utefunksjon
- Vannbåren gulvvarme på bad og gang
- Balansert ventilasjon
Velkommen til visning!
Salgsoppgaven beskriver vesentlig og lovpålagt informasjon om eiendommen
Se komplett salgsoppgaveNærområdet
EIE eiendomsmegling Trondheim sentrum
Prisstatistikk
Stemorkroken 49
på annonsen
prisantydning per kvadratmeter
Prisfordeling
Pris per m² ligger 11 979 kr over snittet for leiligheter i Stjørdal.
Grafen viser antall leiligheter solgt i Stjørdal siste året fordelt på pris per m² - totalt 203 leiligheter
Antall boliger
Kvadratmeterpris tilsvarer prisantydning pluss fellesgjeld per kvadratmeter (p-rom eller BRA-i). Prisene i grafen er avrundet til nærmeste 1000 kr.
Annonseinformasjon
| FINN-kode | 348298509 |
|---|---|
| Sist endret | 22. juni 2024 07:04 |
| Referanse | 133230031 |
Annonsene kan være mangelfulle i forhold til lovpålagt opplysningsplikt. Før bindende avtale inngås oppfordres interessenter til å innhente komplett informasjon fra meglerforetaket, selger eller utleier.


























