Bildegalleri

Avisgata 7 - Presentert av Eiendomsmegler1 Lofoten. Foto: EFKT.
Svolvær
Stor leilighet med 3 soverom og 2 bad - Vakker sjøutsikt - Gode solforhold
Prisantydning7 890 000 kr
Nøkkelinfo
- Boligtype
- Leilighet
- Eieform
- Selveier
- Soverom
- 3
- Internt bruksareal
- 100 m² (BRA-i)
- Bruksareal
- 105 m²
- Eksternt bruksareal
- 5 m² (BRA-e)
- Balkong/Terrasse
- 16 m² (TBA)
- Etasje
- 3
- Byggeår
- 2023
- Energimerking
- B - Mørkegrønn
- Rom
- 3
- Tomteareal
- 1 511 m² (eiet)
Fasiliteter
Balkong/Terrasse
Alarm
Heis
Offentlig vann/kloakk
Parkett
Utsikt
Sentralt
Moderne
Balansert ventilasjon
Om boligen
Drømmer du om å bo i en moderne og lys leilighet med utsikt over havet? Da bør du ta en titt på denne flotte boligen som ligger sentrumsnært med kort vei til alt!
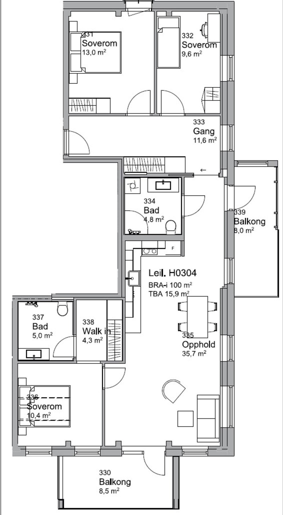
Leiligheten er på ca. 100m² og har tre soverom, to bad og to flotte balkonger. Her kan du nyte morgenkaffen og se ut over havet fra din egen balkong. Leiligheten har god standard med parkett på gulv, fliser på bad, integrerte hvitevarer på kjøkken og vannbåren varme i alle oppholdsrom. Det er i tillegg utvendig solskjerming med fjernkontroller, Porttelefon og downlights i de fleste rom.
Leiligheten ligger sentralt til med kort gangavstand til restauranter, caféer, kulturtilbud, kjøpesenter og det yrende livet på kaia. Fra leiligheten tar du heisen ned og går akkurat dit du vil. Dette er en unik mulighet til å sikre deg en leilighet med fantastisk sjøutsikt og kort vei til alt i Svolvær.
Det er muligheter for å leie garasjeplass i bygningens garasje.
Velkommen til hyggelig visning!
Leiligheten er på ca. 100m² og har tre soverom, to bad og to flotte balkonger. Her kan du nyte morgenkaffen og se ut over havet fra din egen balkong. Leiligheten har god standard med parkett på gulv, fliser på bad, integrerte hvitevarer på kjøkken og vannbåren varme i alle oppholdsrom. Det er i tillegg utvendig solskjerming med fjernkontroller, Porttelefon og downlights i de fleste rom.
Leiligheten ligger sentralt til med kort gangavstand til restauranter, caféer, kulturtilbud, kjøpesenter og det yrende livet på kaia. Fra leiligheten tar du heisen ned og går akkurat dit du vil. Dette er en unik mulighet til å sikre deg en leilighet med fantastisk sjøutsikt og kort vei til alt i Svolvær.
Det er muligheter for å leie garasjeplass i bygningens garasje.
Velkommen til hyggelig visning!
NB: Knappen for å vise hele beskrivelsen har kun en visuell effekt.
NB: Knappen for å vise hele beskrivelsen har kun en visuell effekt.
Salgsoppgaven beskriver vesentlig og lovpålagt informasjon om eiendommen
Se komplett salgsoppgaveNyttige lenker
Nærområdet
EiendomsMegler 1 Leknes
Vi loser deg trygt gjennom hele boligsalget
Annonseinformasjon
| FINN-kode | 345792554 |
|---|---|
| Sist endret | 16. mars 2026 11:31 |
| Referanse | 17240031 |
Annonsene kan være mangelfulle i forhold til lovpålagt opplysningsplikt. Før bindende avtale inngås oppfordres interessenter til å innhente komplett informasjon fra meglerforetaket, selger eller utleier.































